Страница 2 - ПОДДЕРЖКА ПОТРЕБИТЕЛЕЙ И СЕРВИСНОЕ; СВЕДЕНИЯ ПО ТЕХНИКЕ БЕЗОПАСНОСТИ; Перед установкой и эксплуатацией прибора
СОДЕРЖАНИЕ 1. СВЕДЕНИЯ ПО ТЕХНИКЕ БЕЗОПАСНОСТИ................................................... 2 2. УКАЗАНИЯ ПО БЕЗОПАСНОСТИ..................................................................... 6 3. УСТАНОВКА............................................................................................
Страница 4 - Общие правила техники безопасности
• Очистка и доступное пользователю техническое обслуживание прибора не должно производиться без присмотра - детьми. 1.2 Общие правила техники безопасности • ВНИМАНИЕ: Прибор и его доступные для контакта части сильно нагреваются во время эксплуатации. Будьте осторожны и не прикасайтесь к нагревательн...
Страница 6 - УКАЗАНИЯ ПО БЕЗОПАСНОСТИ; электросети
2. УКАЗАНИЯ ПО БЕЗОПАСНОСТИ Данный прибор подходит дляследующих рынков: BY KZ RU UA 2.1 Установка ВНИМАНИЕ! Установка прибора должна осуществляться только квалифицированным персоналом. ВНИМАНИЕ! Это может привести к повреждению прибора или травмам. • Удалите всю упаковку. • Не устанавливайте и не по...
Страница 9 - Подключение к газовой
царапающие губки, растворители или металлические предметы. • Не мойте горелки в посудомоечной машине. 2.6 Сервис • Для ремонта прибора обратитесь в авторизованный сервисный центр. Используйте только оригинальные запасные части. 2.7 Утилизация ВНИМАНИЕ! Существует опасность травмы или удушья. • Для п...
Страница 10 - Замена инжекторов
Убедитесь, что давление подвода газа соответствует рекомендуемым величинам. Регулируемое колено крепится к трубе газовой магистрали с помощью гайки G 1/2 дюйма. Закрутите все детали, не затягивая их, поверните колено в нужном направлении и затяните все резьбовые соединения. A B C A. Вывод трубы с га...
Страница 14 - встраивания
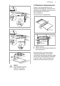
5. min.30 mm min.2 mm min.30 mm min. 2 mm 6. ПРЕДУПРЕЖДЕНИЕ Варочную поверхность следует встраивать только в столешницу с ровной поверхностью. 3.8 Возможности встраивания Панель, установленная под варочной панелью, должна легко сниматься для обеспечения доступа к узлам, нуждающимся в техническом обс...
Страница 15 - Функциональные элементы варочной панели; ЕЖЕДНЕВНОЕ ИСПОЛЬЗОВАНИЕ; Общий вид горелки
4. ОПИСАНИЕ ИЗДЕЛИЯ 4.1 Функциональные элементы варочной панели 3 4 2 1 1 Горелка 2 Горелка с несколькими рассекателями 3 Маленькая горелка 4 Ручки управления 4.2 Ручка управления Символ индикатора отсутствует подача га‐ за / положение выкл положение розжига / максимальной подачи газа Символ индикат...
Страница 16 - Выключение горелки
5.2 Розжиг горелки Всегда зажигайте горелку перед тем, как ставить на нее посуду. ВНИМАНИЕ! Будьте внимательны при использовании открытого огня на кухне. Изготовитель не несет ответственность в случае неправильного обращения с огнем. 1. Нажмите на ручку управления и поверните ее против часовой стрел...
Страница 17 - электроэнергии
несколькими кольцами пламени. При установке держателя для вок- сковороды на место убедитесь в том, что гнезда на раме надежно совпали с выступами держателей для сковороды. При установке решетки горелки с несколькими кольцами пламени убедитесь, что выемка в решетке совпадает с ключом, расположенным н...
Страница 18 - Предлагаемые рецепты
минимума, необходимого для того, чтобы поддерживать медленное кипение жидкости. 6.3 Диаметры посуды ПРЕДУПРЕЖДЕНИЕ Используйте посуду с диаметрами, соответствующими размерам горелок. Горелка Диаметр по‐ суды (мм) С несколькими кольца‐ ми пламени 180–260 Ускоренная 120–220 Вспомогательная 80–180 6.4 ...
Страница 21 - ПОИСК И УСТРАНЕНИЕ НЕИСПРАВНОСТЕЙ
Форма держателей для посуды и количество горелок может отличаться в зависимости от модели прибора. 7.4 Чистка варочной поверхности • Удаляйте немедленно: расплавленную пластмассу, полиэтиленовую пленку, сахар и пищевые продукты, содержащие сахар, иначе данные загрязнения могут привести к повреждению...
Страница 22 - Если решение найти не
8.1 Что делать, если... Неисправность Возможная причина Решение При попытке включения ус‐ тройства розжига газа нет искры. Варочная поверхность не подключена к электропита‐ нию, или подключение про‐ изведено неверно. Проверьте правильность подключения варочной по‐ верхности и наличие на‐ пряжение в ...
Страница 23 - пакет с принадлежностями; ТЕХНИЧЕСКИЕ ДАННЫЕ; Размеры варочной панели; Диаметры обводных клапанов
8.3 Наклейки, вложенные в пакет с принадлежностями Приклейте самоклеющиеся наклейки, как указано ниже: MOD. PROD.NO. SER.NO DATA MOD. PROD.NO. SER.NO DATA MOD. PROD.NO. SER.NO. 03 IT MADE IN ITALY TYPE IP20 0049 A B C A. Приклейте на гарантийный талон и отправьте (если применимо). B. Приклейте на га...
Страница 25 - мбар; ОХРАНА ОКРУЖАЮЩЕЙ СРЕДЫ
9.6 Газовые горелки для сжиженного газа G30/G31 30/30 мбар ГОРЕЛКИ ОБЫЧНАЯ МОЩНОСТЬ, кВт МИНИМАЛЬ‐ НАЯ МОЩ‐ НОСТЬ, кВт ОТМЕТКА ФОРСУНКИ НОМИНАЛЬНЫЙ РАСХОД ГАЗА, г/час С нескольки‐ ми кольцами пламени 3,55 1,4 095 258 Ускоренная 1,9 0,6 71 138 Вспомога‐ тельная 1,0 0,33 50 73 10. ОХРАНА ОКРУЖАЮЩЕЙ СР...