Ariston SUPERLUX FLAT PW 100 V 3700469 - Инструкция по эксплуатации

Ariston SUPERLUX FLAT PW 100 V 3700469

Водонагреватель Ariston SUPERLUX FLAT PW 100 V 3700469 - инструкция пользователя по применению, эксплуатации и установке на русском языке. Мы надеемся, она поможет вам решить возникшие у вас вопросы при эксплуатации техники.

Если остались дополнительные вопросы — свяжитесь с нами через контактную форму.

1 Страница 1
2 Страница 2
3 Страница 3
4 Страница 4
5 Страница 5
6 Страница 6
7 Страница 7
8 Страница 8
9 Страница 9
10 Страница 10
11 Страница 11
12 Страница 12
13 Страница 13
14 Страница 14
15 Страница 15
16 Страница 16
17 Страница 17
18 Страница 18
19 Страница 19
20 Страница 20
21 Страница 21
22 Страница 22
23 Страница 23
24 Страница 24
25 Страница 25
26 Страница 26
27 Страница 27
28 Страница 28
29 Страница 29
30 Страница 30
31 Страница 31
32 Страница 32
33 Страница 33
34 Страница 34
35 Страница 35
36 Страница 36
37 Страница 37
38 Страница 38
39 Страница 39
40 Страница 40
41 Страница 41
42 Страница 42
43 Страница 43
44 Страница 44
Страница: / 44

Содержание:

  • Страница 4 – ЭЛЕКТРИЧЕСКИЕ ВОДОНАГРЕВАТЕЛИ; ЭЛЕКТРИЧЕСКИЕ ВОДОНАГРЕВАТЕЛИ; ГАРАНТИЙНЫЙ ТАЛОН
  • Страница 9 – ОТРЫВНОЙ ТАЛОН 1
  • Страница 11 – ОБЩИЕ ТРЕБОВАНИЯ
  • Страница 12 – Символ Значение
  • Страница 13 – Бактерицидная функция против legionella; принятием душа или ванны.
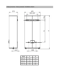
  • Страница 14 – ТЕХНИЧЕСКИЕ ХАРАКТЕРИСТИКИ; - ТР ТС 004/2011 «О безопасности низковольтного оборудования»
  • Страница 16 – ВКЛЮЧЕНИЕ И РАБОТА; Регулировка температуры и активация функций прибора; ТЕХНИЧЕСКОЕ ОБСЛУЖИВАНИЕ И РЕМОНТ
  • Страница 17 – от электрической сети.
  • Страница 35 – Идентификационная табличка; Идентификационная табличка
  • Страница 44 – WE MAKE USE OF
Загрузка инструкции

FLAT PW

RU

Электрический водонагреватель

UA

Електричні водонагрівачі

EN

Electric water heaters

"Загрузка инструкции" означает, что нужно подождать пока файл загрузится и можно будет его читать онлайн. Некоторые инструкции очень большие и время их появления зависит от вашей скорости интернета.

Краткое содержание

Страница 4 - ЭЛЕКТРИЧЕСКИЕ ВОДОНАГРЕВАТЕЛИ; ЭЛЕКТРИЧЕСКИЕ ВОДОНАГРЕВАТЕЛИ; ГАРАНТИЙНЫЙ ТАЛОН

RU 4 ГАРАНТИЙНЫЙ ТАЛОН ЭЛЕКТРИЧЕСКИЕ ВОДОНАГРЕВАТЕЛИ Просим Вас хранить талон в течение всего гарантийного срока. При покупке изделия требуйте заполнения гарантийного талона. Просим Вас осмотреть водонагреватель и проверить комплектность до заполнения гарантийного талона. Претензии по механическим п...

Страница 9 - ОТРЫВНОЙ ТАЛОН 1

RU 9 Фирма-продавец Дата продажи Серийный номер Модель Фирма-продавец Дата продажи Серийный номер Модель Фирма-продавец Дата продажи Серийный номер Модель заполняется фирмой-продавцом заполняется фирмой-продавцом заполняется фирмой-продавцом ОТРЫВНОЙ ТАЛОН 1 ОТРЫВНОЙ ТАЛОН 2 ОТРЫВНОЙ ТАЛОН 3 Данное ...

Страница 11 - ОБЩИЕ ТРЕБОВАНИЯ

RU 11 1. Данная инструкция входит в комплект поставки водонагревателя. Храните инструкцию в доступном месте на случай передачи прибора другому пользователю и/или перемещения на другое место эксплуатации. 2. Внимательно изучите данную инструкцию. В руководстве содержится необходимая информация о мера...

Характеристики

Другие модели - Водонагреватели Ariston

Все водонагреватели Ariston