Zerten SE-9 - Инструкция по эксплуатации

Zerten SE-9

Котел Zerten SE-9 - инструкция пользователя по применению, эксплуатации и установке на русском языке. Мы надеемся, она поможет вам решить возникшие у вас вопросы при эксплуатации техники.

Если остались дополнительные вопросы — свяжитесь с нами через контактную форму.

1 Страница 1
2 Страница 2
3 Страница 3
4 Страница 4
5 Страница 5
6 Страница 6
7 Страница 7
8 Страница 8
9 Страница 9
10 Страница 10
11 Страница 11
12 Страница 12
13 Страница 13
14 Страница 14
15 Страница 15
16 Страница 16
Страница: / 16
Загрузка инструкции

СОДЕРЖАНИЕ

Общие указания

Технические характеристики

Комплектация

Указания мер безопасности

Устройство и принцип работы

Подготовка изделия к работе

Подключение изделия к электрической сети

Подключение котла к системе отопления

Порядок работы

Техническое обслуживание

Правила хранения и транспортировки

Гарантийный талон

Приложение А

Приложение Б

Приложение В

Приложение Г

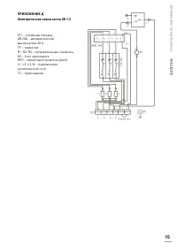
Приложение Д

2

2

2

3

3

4

4

5

7

7

7

9

13

13

14

14

15

Внимательно прочитайте данное руководство

по эксплуатации и сохраните его для

дальнейшего использования.

Р

УК

ОВО

ДС

ТВО ПО ЭК

СПЛУ

АТ

АЦИИ

Р

УК

ОВО

ДС

ТВО ПО ЭК

СПЛУ

АТ

АЦИИ

"Загрузка инструкции" означает, что нужно подождать пока файл загрузится и можно будет его читать онлайн. Некоторые инструкции очень большие и время их появления зависит от вашей скорости интернета.

Характеристики

Другие модели - Котлы Zerten