Вытяжки Smeg KSET61E - инструкция пользователя по применению, эксплуатации и установке на русском языке. Мы надеемся, она поможет вам решить возникшие у вас вопросы при эксплуатации техники.
Если остались вопросы, задайте их в комментариях после инструкции.
"Загружаем инструкцию", означает, что нужно подождать пока файл загрузится и можно будет его читать онлайн. Некоторые инструкции очень большие и время их появления зависит от вашей скорости интернета.

RU
6
60
ХАРАКТЕРИСТИКИ
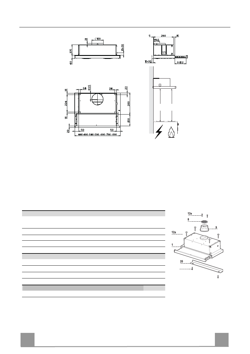
Min.
500mm
Min.
650mm
Части
Об
.
Кол
.
Части
изделия
1
1
Корпус
вытяжки
в
комплекте
с
устройствами
управления
,
ос
-
вещением
,
вентилятором
,
фильтрами
8
1
Регулируемая
решетка
выпуска
воздуха
9
1
Переходной
фланец
ø 150-100
мм
20
1
Затворный
профиль
Об
.
Кол
.
Установочные
элементы
12a
4
Винты
4,2 x 44,4
12b
2
Винты
4,2 x 12,7
12e
2
Винты
2,9 x 9,5
Кол
.
Документы
1
Руководство
по
12b
Содержание
- 3 УКАЗАТЕЛЬ
- 5 RU; СОВЕТЫ
- 6 ХАРАКТЕРИСТИКИ; Части
- 9 ЭКСПЛУАТАЦИЯ
- 10 УХОД












