Вытяжки Miele DA9090W - инструкция пользователя по применению, эксплуатации и установке на русском языке. Мы надеемся, она поможет вам решить возникшие у вас вопросы при эксплуатации техники.
Если остались вопросы, задайте их в комментариях после инструкции.
"Загружаем инструкцию", означает, что нужно подождать пока файл загрузится и можно будет его читать онлайн. Некоторые инструкции очень большие и время их появления зависит от вашей скорости интернета.
Загружаем инструкцию

Монтаж
*INSTALLATION*
26
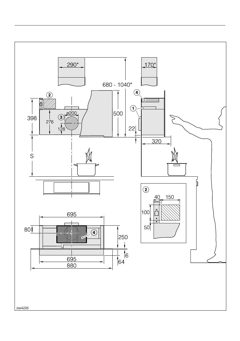
Размеры прибора
Рисунок приведён без соблюдения масштаба
Содержание
- 2 Содержание
- 4 Указания по безопасности и предупреждения; Надлежащее использование; Эта вытяжка предназначена для использования в домашнем
- 5 Если у Вас есть дети
- 6 Техническая безопасность
- 8 Опасность отравления из-за вдыхания продуктов сгорания!
- 10 Правильная эксплуатация
- 11 Надлежащий монтаж
- 12 Чистка и уход
- 13 Ваш вклад в охрану окружающей среды; Утилизация прибора
- 16 Описание функций
- 17 Управление прибором; Включение вентилятора; Остаточный ход
- 18 Защитное отключение
- 19 Рекомендации по экономии электроэнергии
- 20 Корпус
- 22 Угольный фильтр
- 23 Монтаж; Перед монтажом; Снятие защитной пленки
- 27 Расстояние между панелью конфорок и вытяжкой (S)
- 29 Воздуховод
- 31 Электроподключение
- 32 Сервисная служба; Гарантия; Сертификат соответствия
- 34 Гарантия качества товара
- 36 Контактная информация о Miele
- 39 Факс
Характеристики
Остались вопросы?Не нашли свой ответ в руководстве или возникли другие проблемы? Задайте свой вопрос в форме ниже с подробным описанием вашей ситуации, чтобы другие люди и специалисты смогли дать на него ответ. Если вы знаете как решить проблему другого человека, пожалуйста, подскажите ему :)
Часто задаваемые вопросы
Как посмотреть инструкцию к Miele DA9090W?
Необходимо подождать полной загрузки инструкции в сером окне на данной странице
Руководство на русском языке?
Все наши руководства представлены на русском языке или схематично, поэтому вы без труда сможете разобраться с вашей моделью
Как скопировать текст из PDF?
Чтобы скопировать текст со страницы инструкции воспользуйтесь вкладкой "HTML"