Вытяжки Miele DA 6999W - инструкция пользователя по применению, эксплуатации и установке на русском языке. Мы надеемся, она поможет вам решить возникшие у вас вопросы при эксплуатации техники.
Если остались вопросы, задайте их в комментариях после инструкции.
"Загружаем инструкцию", означает, что нужно подождать пока файл загрузится и можно будет его читать онлайн. Некоторые инструкции очень большие и время их появления зависит от вашей скорости интернета.

Монтаж
*INSTALLATION*
44
Рекомендации по прове-
дению монтажа
– При выборе монтажной высоты
учитывайте рост пользователей.
Им должно быть удобно работать у
панели конфорок и управлять вы-
тяжкой.
– Учитывайте, что с увеличением
расстояния до панели конфорок
ухудшается улавливание испаре-
ний.
– Для того, чтобы испарения устра-
нялись как можно лучше, следует
помнить, что вытяжку необходимо
монтировать по центру над па-
нелью конфорок, без смещения в
сторону.
– Панель конфорок должна быть по
возможности уже, чем вытяжка.
По крайней мере, она должна
иметь с ней одинаковую ширину.
– Место монтажа должно быть легко
доступным. В случае сервисного
обслуживания должен быть обес-
печен доступ к вытяжке, а также
возможность ее демонтажа. Учи-
тывайте это, например, при разме-
щении шкафов, полок, потолочных
и декоративных элементов вблизи
вытяжки.
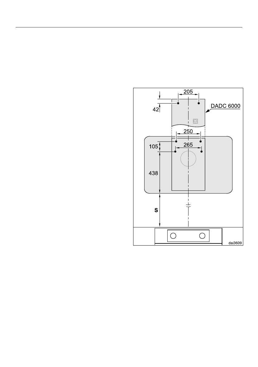
Трафарет для сверления от-
верстий при настенном мон-
таже
При сверлении отверстий примите
во внимание прилагаемый монтаж-
ный план.
Если сначала изготавливается зад-
няя стенка, в которой должны быть
отверстия для крепления, то необ-
ходимо соблюдать указанные на
плане промежутки между отвер-
стиями (шурупы 
5 мм).
Характеристики
Остались вопросы?Не нашли свой ответ в руководстве или возникли другие проблемы? Задайте свой вопрос в форме ниже с подробным описанием вашей ситуации, чтобы другие люди и специалисты смогли дать на него ответ. Если вы знаете как решить проблему другого человека, пожалуйста, подскажите ему :)

 
  
  
  
  
  
  
  
  
  
  
  
  
  
  
  
  
  
  
  
  
  
  
  
  
  
  
  
  
  
  
  
  
  
  
  
  
  
  
  
  
  
  
  
  
  
  
  
  
  
  
  
  
  
  
  
 











