Вытяжки Midea MH60AN350GB - инструкция пользователя по применению, эксплуатации и установке на русском языке. Мы надеемся, она поможет вам решить возникшие у вас вопросы при эксплуатации техники.
Если остались вопросы, задайте их в комментариях после инструкции.
"Загружаем инструкцию", означает, что нужно подождать пока файл загрузится и можно будет его читать онлайн. Некоторые инструкции очень большие и время их появления зависит от вашей скорости интернета.

7
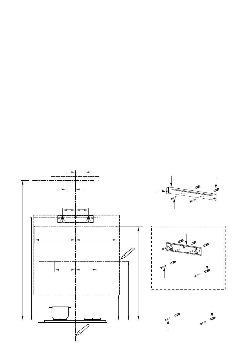
Установка
ВНИМАНИЕ!
Внимательно прочтите инструкцию по установке.
Перед установкой убедитесь, что прибор не подключен к сети. Вилка должна быть
расположена таким образом, чтобы ее можно было легко вынуть из розетки в случае
необходимости.
Все работы по установке и подключению электропроводки должны выполняться
квалифицированным работником (работниками) в соответствии с применимыми нормами и
стандартами, включая требования по огнестойкости.
Нержавеющая сталь и стеклянные поверхности корпуса могут быть легко повреждены
во время монтажа рабочими инструментами. Позаботьтесь о защите поверхности прибора во
время установки.
Также позаботьтесь о поверхности варочной панели, прикрыв ее картоном или иным
плотным материалом на время установки вытяжки.
При сверлении отверстий в стене убедитесь, что они не повредят электропроводку,
линии водо - и газоснабжения.
4
0
21
A
(1)
11
4
0
12
80 80
B
(2)
10
B
(опция)
20
135
135
C
(3)
11
112.5 112.5
10
Опция
11
10
12
7
0 - 1
56
0
887
530
7
17
840
Осевая линия
Рис. 1