Вытяжки Kuppersberg ONDA 50 B 4PB - инструкция пользователя по применению, эксплуатации и установке на русском языке. Мы надеемся, она поможет вам решить возникшие у вас вопросы при эксплуатации техники.
Если остались вопросы, задайте их в комментариях после инструкции.
"Загружаем инструкцию", означает, что нужно подождать пока файл загрузится и можно будет его читать онлайн. Некоторые инструкции очень большие и время их появления зависит от вашей скорости интернета.
/html/pdf_to_image011.png)
Раздел 4.
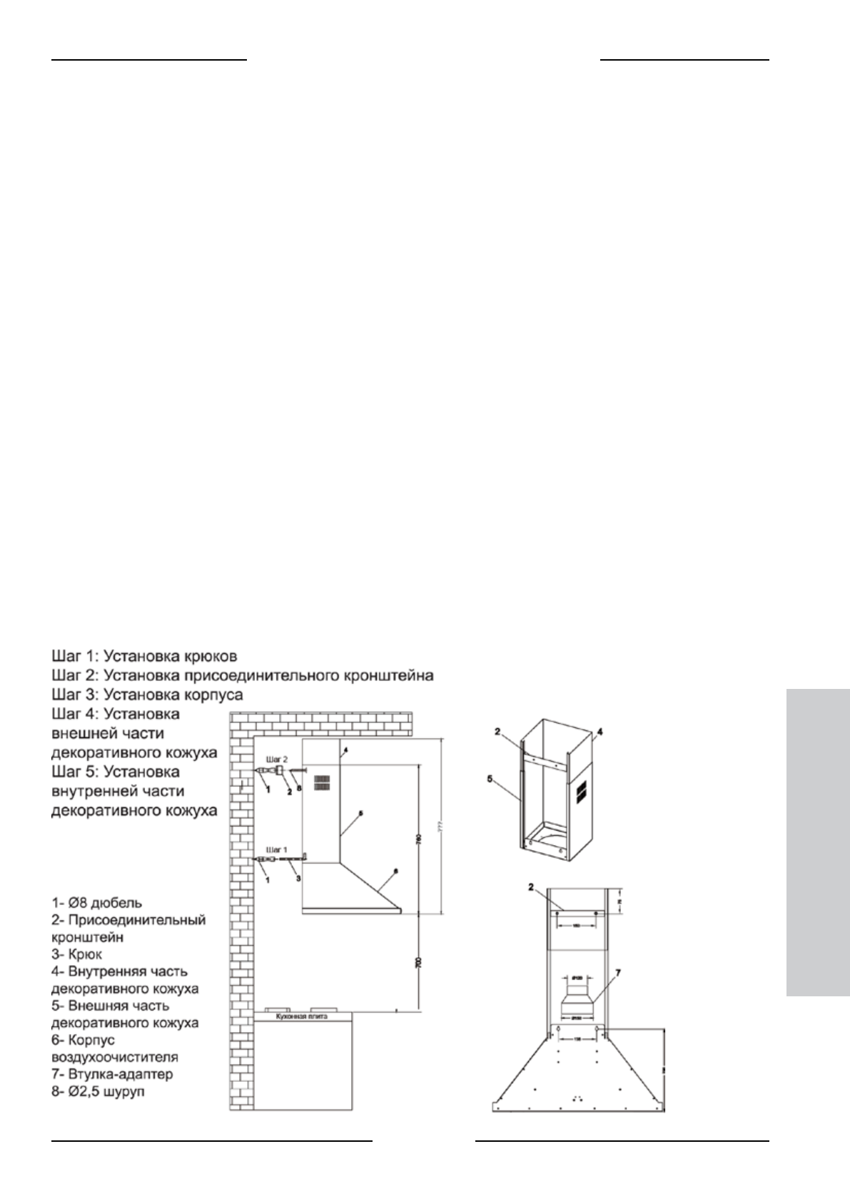
Монтаж и размеры
Пожалуйста, распакуйте и внимательно осмотрите прибор! Перед началом
монтажа, необходимо убедиться в отсутствии видимых повреждений, связанных
с транспортировкой вытяжки. В случае обнаружения подобных дефектов, дальнейшая
установка и подключение прибора к сети запрещены!
1. Для установки воздухоочистителья над плитой,
проведите на стене вертикальную
линию от центра плиты вертикально к потолку. Для соблюдения правил безопасности,
расстояние между варочной поверхностью воздухоочистителя должно составлять
700 мм. Соответственно, на проведенной вами вертикальной линии, сделайте
отметку карандашом на высоте 700+426=1126 мм от поверхности плиты. Через
эту точку проведите на стене горизонтальную линию. На этой линии, справа
и слева от точки пересечения вертикальной и горизонтальной линий, отмерьте
по 100 мм и сделайте отметки карандашом. Используя 6-мм серло, просверлите
по этим отметкам отверстия. В получившиеся отверстия вставьте дюбеля, и закрепите
крюки.
2. Установка декоративного кожуха
Проведите на стене горизонтальную линию, на расстоянии 75 мм от пото-
лка. На этой линии, справа и слева от точки пересечения с вертикальной
линией, отмерьте по 50 мм и сделайте отметки карандашом. По этим
отметкам просверлите отверстия, в которые вставьте 8-мм дюбеля и
завинтите 2,5-мм шурупы, оставив их на 2 мм выступающими из стены.
Стр. 11
Воздухоочиститель кухонный Kuppersberg
Характеристики
Остались вопросы?Не нашли свой ответ в руководстве или возникли другие проблемы? Задайте свой вопрос в форме ниже с подробным описанием вашей ситуации, чтобы другие люди и специалисты смогли дать на него ответ. Если вы знаете как решить проблему другого человека, пожалуйста, подскажите ему :)













