Вытяжки Kuppersberg Daphne 60 B 4HPB - инструкция пользователя по применению, эксплуатации и установке на русском языке. Мы надеемся, она поможет вам решить возникшие у вас вопросы при эксплуатации техники.
Если остались вопросы, задайте их в комментариях после инструкции.
"Загружаем инструкцию", означает, что нужно подождать пока файл загрузится и можно будет его читать онлайн. Некоторые инструкции очень большие и время их появления зависит от вашей скорости интернета.

Раздел 4.
Монтаж и размеры
Пожалуйста,  распакуйте и внимательно осмотрите прибор!  Перед началом 
монтажа, необходимо убедиться в отсутствии видимых повреждений, связанных  
с транспортировкой вытяжки. В случае обнаружения подобных дефектов,  дальнейшая 
установка и подключение прибора к сети запрещены!
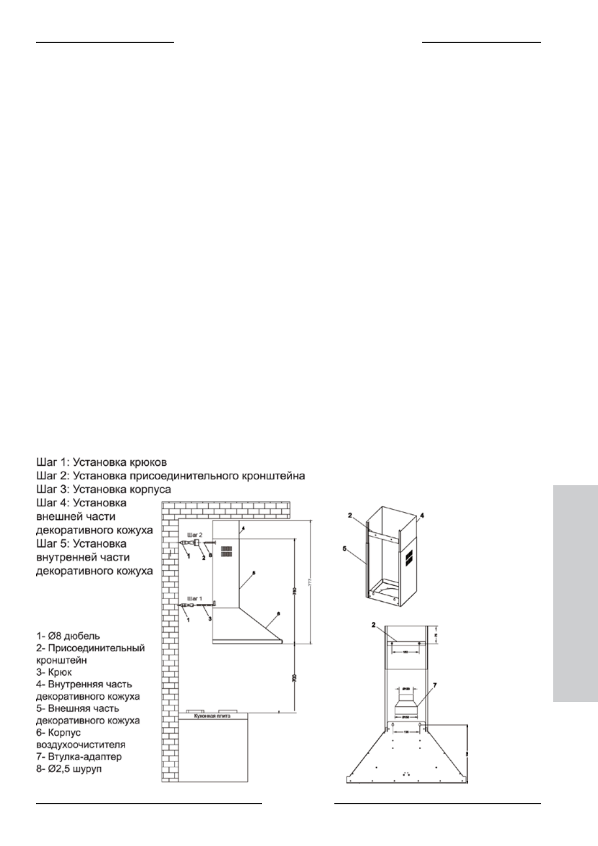
1. Для установки воздухоочистителья над плитой,
проведите на стене вертикальную
линию  от  центра плиты вертикально к потолку.  Для соблюдения правил безопасности,  
расстояние  между варочной  поверхностью воздухоочистителя должно составлять 
700 мм.  Соответственно,  на  проведенной вами  вертикальной  линии, сделайте 
отметку карандашом на высоте 700+426=1126 мм от поверхности плиты. Через 
эту точку проведите на стене  горизонтальную линию. На этой линии, справа 
и слева от точки пересечения вертикальной  и  горизонтальной  линий,  отмерьте 
по 100 мм и сделайте отметки карандашом.  Используя  6-мм серло, просверлите 
по этим отметкам отверстия. В получившиеся отверстия вставьте дюбеля, и закрепите 
крюки.
2. Установка декоративного кожуха
Проведите  на  стене    горизонтальную    линию,  на  расстоянии    75  мм    от    пото-
лка.  На  этой  линии,  справа  и  слева  от  точки  пересечения  с  вертикальной 
линией,  отмерьте  по  50  мм  и  сделайте  отметки  карандашом.  По  этим 
отметкам  просверлите  отверстия,  в  которые  вставьте  8-мм  дюбеля  и 
завинтите  2,5-мм  шурупы,  оставив  их  на  2  мм  выступающими  из  стены. 
Стр. 11
Воздухоочиститель кухонный Kuppersberg
Характеристики
Остались вопросы?Не нашли свой ответ в руководстве или возникли другие проблемы? Задайте свой вопрос в форме ниже с подробным описанием вашей ситуации, чтобы другие люди и специалисты смогли дать на него ответ. Если вы знаете как решить проблему другого человека, пожалуйста, подскажите ему :)

 
 
 
 
 
 
 
 
 
 
 
 
 
 
 
 
 
 
 
 
 
 
 
 
 
 
 
 











