Вытяжки ELEYUS 1200 - инструкция пользователя по применению, эксплуатации и установке на русском языке. Мы надеемся, она поможет вам решить возникшие у вас вопросы при эксплуатации техники.
Если остались вопросы, задайте их в комментариях после инструкции.
"Загружаем инструкцию", означает, что нужно подождать пока файл загрузится и можно будет его читать онлайн. Некоторые инструкции очень большие и время их появления зависит от вашей скорости интернета.
Загружаем инструкцию

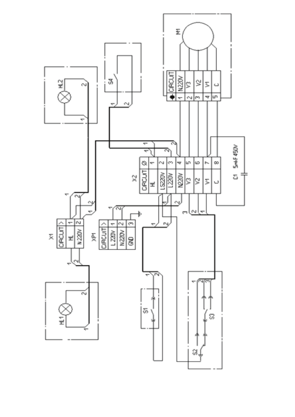
Рис.9
Принципова електросхема витяжки «STORM 1200»
Принципиальная электросхема вытяжки «STORM 1200»
16
Содержание
- 12 ОПИСАНИЕ ВЫТЯЖКИ; «встроенных выдвижных»
- 13 ИНСТРУКЦИЯ ПО МОНТАЖУ ВЫТЯЖКИ; Напоминаем, что высота установки вытяжки
- 14 ИНСТРУКЦИЯ ПО ПОЛЬЗОВАНИЮ ВЫТЯЖКОЙ
- 15 ИНСТРУКЦИЯ ПО УХОДУ ЗА ВЫТЯЖКОЙ; Не устанавливайте фильтры после мойки к их полному высыханию.
- 16 ГАРАНТИИ ПРОИЗВОДИТЕЛЯ; Производитель гарантирует нормальную работу вытяжки; в течение 36 месяцев; со дня продажи
- 20 МОДЕЛЬ; клавішний перемикач; ТИП ВВК - 01.06Ф3Д1; СВІДОЦТВО ПРО ПРИЙМАННЯ ТА ПРОДАЖ; витяжка вентилиційна кухонна вытяжка вентиляционная кухонная
Характеристики
Остались вопросы?Не нашли свой ответ в руководстве или возникли другие проблемы? Задайте свой вопрос в форме ниже с подробным описанием вашей ситуации, чтобы другие люди и специалисты смогли дать на него ответ. Если вы знаете как решить проблему другого человека, пожалуйста, подскажите ему :)
Часто задаваемые вопросы
Как посмотреть инструкцию к ELEYUS 1200?
Необходимо подождать полной загрузки инструкции в сером окне на данной странице
Руководство на русском языке?
Все наши руководства представлены на русском языке или схематично, поэтому вы без труда сможете разобраться с вашей моделью
Как скопировать текст из PDF?
Чтобы скопировать текст со страницы инструкции воспользуйтесь вкладкой "HTML"