Водонагреватели Zanussi ZWH/S 30 Symphony 2.0 - инструкция пользователя по применению, эксплуатации и установке на русском языке. Мы надеемся, она поможет вам решить возникшие у вас вопросы при эксплуатации техники.
Если остались вопросы, задайте их в комментариях после инструкции.
"Загружаем инструкцию", означает, что нужно подождать пока файл загрузится и можно будет его читать онлайн. Некоторые инструкции очень большие и время их появления зависит от вашей скорости интернета.

10
11
Внимание:
Накопление накипи на ТЭНе и наличие
осадка во внутреннем баке могут приве-
сти к выходу из строя водонагревателя
и являются основанием для отказа в
гарантийном обслуживании. Регулярное
техническое обслуживание является
профилактической мерой и не входит в
гарантийные обязательства.
В слу чае не ис прав но с ти тер мо ста та и пе ре гре ва
во до на гре ва те ля сра ба ты ва ет ав то ма ти че с кая
си с те ма от клю че ния, бло ки ру ю щая на грев и
по да чу элек тро энер гии.
В за пре щен ном объ еме не раз ре ша ет ся ус та нав-
ли вать вы клю ча те ли, ро зет ки и ос ве ти тель ные
при бо ры. В за щит ном объ еме ус та нов ка вы клю-
ча те лей за пре ща ет ся, од на ко, мож но ус та нав ли-
вать ро зет ки с за зем ле ни ем.
Во до на гре ва тель сле ду ет ус та нав ли вать за пре-
де ла ми за пре щен но го объ ема, что бы на не го не
по па да ли брыз ги во ды.
Под клю че ние при бо ра к элек тро се ти долж но
быть осу щест в ле но че рез мно го по люс ный пе ре-
клю ча тель, пре ры ва тель или кон так тор.
Для обес пе че ния без опас но с ти ра бо ты во до на-
гре ва те ля дол жен быть ус та нов лен автомат под-
хо дя ще го но ми на ла.
Под клю че ние к элек тро се ти долж но вклю чать
в се бя за зем ле ние. Вил ку ка бе ля пи та ния во до-
на гре ва те ля со спе ци аль ным разъ емом для
за зем ле ния сле ду ет встав лять толь ко в розетку,
имеющую соответствующее заземление.
Регулятор температуры мощ но с ти на гре ва: в
не ко то рых мо де лях пред ус мо т ре на воз мож ность
пе ре клю че ния мощ но с ти на гре ва. По ло же ние
МАХ: мак си маль ная мощ ность на гре ва. По ло же-
ние MIN: ми ни маль ная мощ ность на гре ва.
Ре ко мен ду ет ся все г да дер жать во до на гре ва тель
вклю чен ным в сеть, по сколь ку тер мо стат вклю-
ча ет на грев толь ко то г да, ко г да это тре бу ет ся
для под дер жа ния ус та нов лен ной тем пе ра ту ры.
Слив во ды. Из во до на гре ва те ля сле ду ет пол но-
стью слить во ду, ес ли он не бу дет ис поль зо вать-
ся в те че ние дли тель но го вре ме ни или тем пе-
ра ту ра в по ме ще нии, где он ус та нов лен, мо жет
опу с тить ся ни же 0 °С. Слив мож но про из ве с ти с
по мо щью пред ох ра ни тель но го кла па на, при этом
воз мож но под те ка ние из-под што ка кла па на.
Для сли ва же ла тель но пред ус мо т реть трой ник
с вен ти лем меж ду кла па ном и втул кой. Пе ред
сли вом во ды из во до на гре ва те ля не за будь те:
• от клю чить во до на гре ва тель от се ти;
• за крыть вен тиль;
• от крыть кран го ря чей во ды.
Внимание:
Ни в ко ем слу чае не сни май те крыш ку
во до на гре ва те ля, не от клю чив его пред-
ва ри тель но от элек тро се ти.
Га ран тий ное об слу жи ва ние про из во дит ся в
со от вет ствии с га ран тий ны ми обя за тель ст ва ми,
пе ре чис лен ны ми в га ран тий ном та ло не.
Из го то ви тель ос тав ля ет за со бой пра во на вне-
се ние из ме не ний в кон струк цию и ха рак те ри с ти-
ки при бо ра, без предварительного уведомления.
Срок службы водонагревателя составляет
8 лет.
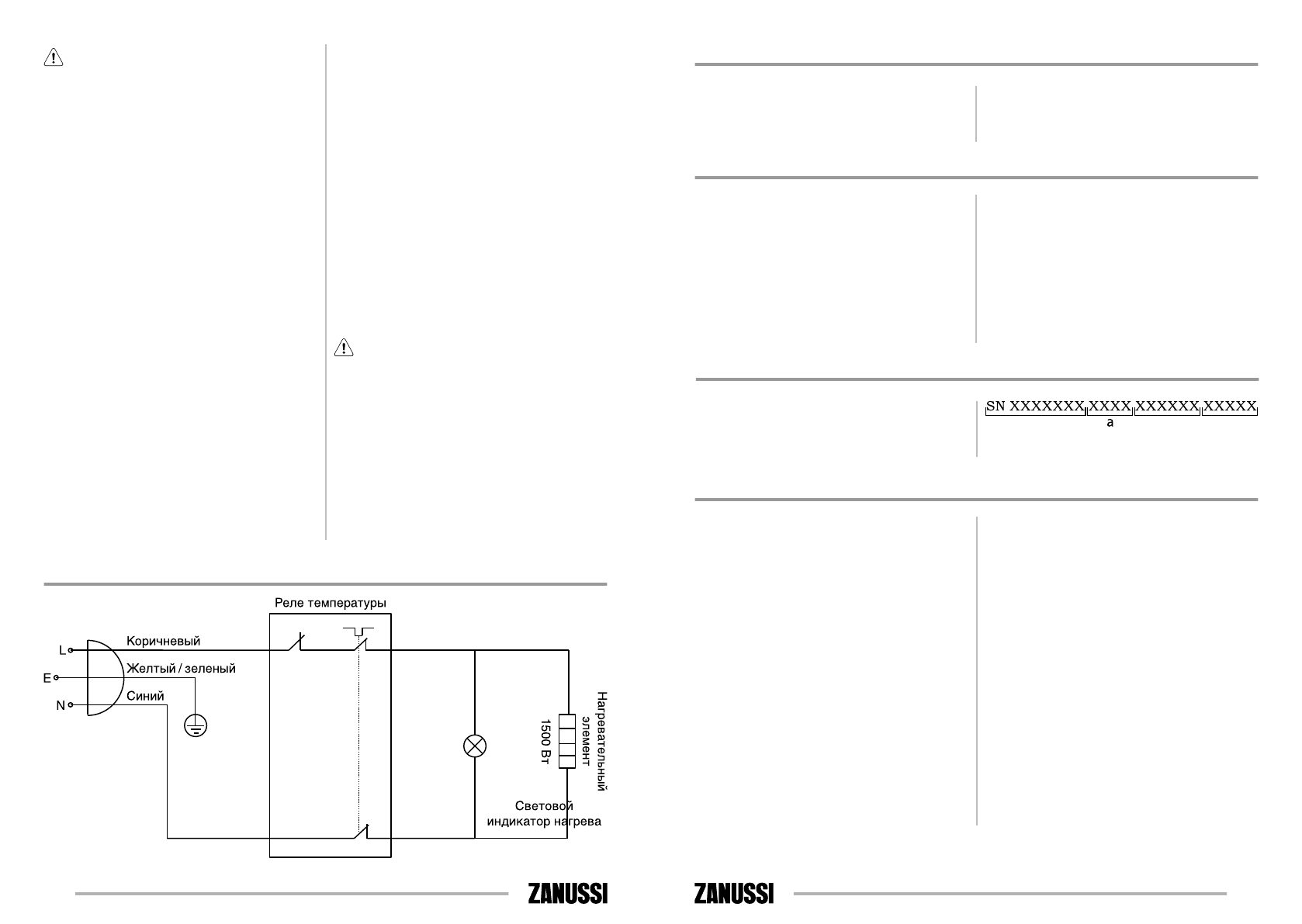
Схема электрических соединений
Утилизация
Дата изготовления
По истечении срока службы прибор должен
подвергаться утилизации в соответствии с нор-
мами, правилами и способами, действующими в
месте утилизации.
Дата изготовления указана на стикере на корпусе
прибора, а также зашифрована в Code-128. Дата
изготовления определяется следующим образом:
Сертификация
Информация о сертификации продукции обнов-
ляется ежегодно. (При отсутствии копии нового
сертификата в коробке спрашивайте копию у
продавца).
Товар соответствует требованиям:
ТР ТС 004/2011 «О безопасности низковольтного
оборудования»
ТР ТС 020/2011 «Электромагнитная совмести-
мость технических средств»
Изготовитель:
СИА «Грин Трейс»
ЛВ-1004 Латвия, Рига, ул. Бикенсалас, 21.
E-mail: info@greentrace.lv
SIA «Green Trace»,
LV-1004, Biekensalas iela, 21, Riga, Latvia.
Импортер и уполномоченное изготовителем
лицо в РФ:
Общество с ограниченной ответственностью
«Ай.Эр.Эм.Си.»
РФ, 119049, г. Москва, Ленинский проспект, д. 6,
стр.7, кабинет 14
Тел./факс: +7 (495) 2587485
e-mail: info@irmc.ru
Дата изготовления указывается на этикетке на
приборе.
Изготовитель оставляет за собой право
на внесение изменений в конструкцию и
характеристики прибора.
Zanussi is a registered trademark used under
license from AB Electrolux (publ).
Занусси – зарегистрированная торговая марка,
используемая в соответствии с лицензией
Electrolux AB (публ.).
Сделано в Китае.
Транспортировка и хранение
Водонагреватели в упаковке изготовителя
могут транспортироваться всеми видами кры-
того транспорта в соответствии с правилами
перевозки грузов, действующими на данном
виде транспорта. Условия транспортирова-
ния при температуре от минус 50 до плюс
50 °С и при относительной влажности до 80
% при плюс 25 °С. При транспортировании
должны быть исключены любые возможные
удары и перемещения упако вок с водона-
гревателями внутри транспортного средства.
Транспортирование и штабелирование произ-
водить в соответствии с манипуляционными
знаками указанными на упа ковке.
Водонагреватели должны храниться в упаков-
ке изготовителя в условиях хранения от плюс
1 °С до плюс 40 °С и относительной влажности
до 80 % при 25 °С.
а – месяц и год производства.
Содержание
- 3 За пре щен ный объ ем
- 4 Экс плу а та ция
- 5 Устранение неполадок; Отказы; Технические характеристики; Модель
- 6 Дата изготовления указана на стикере на корпусе; Сертификация; Товар соответствует требованиям:; Транспортировка и хранение; а – месяц и год производства.