Водонагреватели Zanussi ZWH/S 15 Mini O - инструкция пользователя по применению, эксплуатации и установке на русском языке. Мы надеемся, она поможет вам решить возникшие у вас вопросы при эксплуатации техники.
Если остались вопросы, задайте их в комментариях после инструкции.
"Загружаем инструкцию", означает, что нужно подождать пока файл загрузится и можно будет его читать онлайн. Некоторые инструкции очень большие и время их появления зависит от вашей скорости интернета.

22
23
Догляд та технічне обслуговування
Увага:
Перед обслуговуванням завжди відключай-
те його від електричної мережі.
Для забезпечення тривалого терміну служби і збе-
реження діючої гарантії на внутрішню водовмісну
ємність необхідно не пізніше, ніж через рік після
початку експлуатації провести технічне обслугову-
вання силами кваліфікованих фахівців, які мають
включати в себе обов'язкову перевірку наявності
накипу на ТЕНі і внутрішній порожнині водоміст-
кої ємності, а так само стан магнієвого анода. У
разі 30% і більше зносу магнієвого анода - анод
необхідно замінити на новий, рекомендований
виробником. За результатами огляду водонагріва-
ча при першому технічному обслуговуванні, вста-
новлюється періодичність регулярного, технічного
обслуговування, якого необхідно дотримуватися
протягом всього періоду експлуатації приладу.
У разі зміни адреси експлуатації приладу, а так
само виявлених в результаті чергового технічного
обслуговування змін умов експлуатації (якість
води), регулярність технічного обслуговування
може бути переглянута. Підтвердженням прове-
дення технічного обслуговування є заповнений
пункт в таблиці проведених ТО.
У регіонах з особливо жорсткою водою, з водою,
що включає в себе корозійно активні домішки,
або водою, що не відповідає діючим нормам
ДСТ У, може знадобитися частіше проводити таку
перевірку. Для цього потрібно отримати відповідну
інформацію у фахівця або прямо на підприємстві,
що забезпечує водопостачання! У разі, якщо не
було проведено технічне обслуговування, або при
повному зносі / відсутності магнієвого аноду у
водонагрівачі гарантійні зобов'язання на водона-
грівач анулюються.
Увага:
Накопичення накипу на ТЕНі та
наявність осаду у внутрішньому баку
може привести до виходу з ладу водо-
нагрівача і є підставою, для відмови в
гарантійному обслуговуванні. Регулярне
технічне обслуговування, є профілактич-
ним заходом і не входить до гарантійних
зобов'язань.
В забороненому просторі не дозволяється вста-
новлювати вимикачі, розетки і освітлювальні при-
лади. У захисному просторі установка вимикачів
забороняється, однак, можна встановлювати
розетки із заземленням. (див. визначення захисно-
го і забороненого обсягів (просторів) на стор. 6 і 7.
Водонагрівач слід встановлювати за межами
забороненого обсягу, щоб на нього не потрапляли
струмені води.
Підключення приладу до електромережі повинно
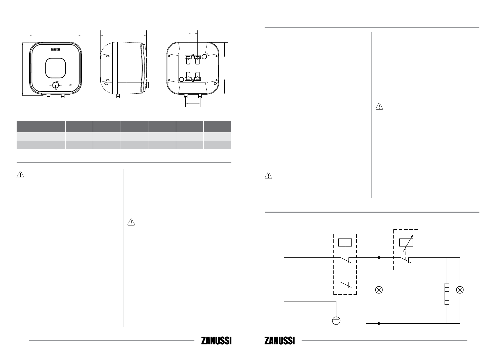
Габаритні розміри
C
A
B
D
F
F
E
A, мм
B, мм
C, мм
D, мм
E, мм
F, мм
ZWH/S 10 Mini O/U
315
315
282
66
100
105
ZWH/S 15 Mini O/U
360
360
312
66
100
162
Догляд та технічне обслуговування
бути здійснено через виділену розетку із зазем-
ленням, підключену до індивідуального автоматич-
ного вимикача в розподільному щиті.
Для забезпечення безпеки роботи водонагрівача
повинен бути встановлений автомат відповідного
номіналу.
Підключення до електромережі повинно включа-
ти в себе заземлення. Штепсель водонагрівача
зі спеціальним роз'ємом для заземлення слід
вставляти тільки в розетку, що має відповідне
заземлення.
Регулятор температури нагріву. Положення high:
максимальний нагрів. Положення low: мінімальний
нагрів.
При щоденному використанні рекомендується три-
мати водонагрівач включеним в мережу, оскільки
термостат включає нагрів тільки тоді, коли це
потрібно для підтримки заданої температури.
Злив води. З водонагрівача слід повністю злити
воду, якщо він не буде використовуватися протя-
гом тривалого часу або температура в приміщенні,
де він встановлений може опуститися нижче 0 °С.
Злив можна зробити за допомогою запобіжного
клапана, при цьому можливо підтікання з-під
штока клапана.
Увага:
Для зливу можна передбачити трійник з
вентилем між клапаном і втулкою.
Перед зливом води з водонагрівача не забудьте:
• від'єднати його від мережі;
• закрити вентиль входу води;
• відкрити кран гарячої води.
Регулярно проводьте технічне обслуговування
вашого водонагрівача за допомогою фахівців
авторизованого сервісного центру.
Увага:
Ні в якому разі не знімайте кришку водона-
грівача, не відключивши попередньо його
від електромережі.
Гарантійне обслуговування здійснюється відповід-
но до гарантійних зобов'язань, перерахованих в
гарантійному талоні. Виробник залишає за собою
право на внесення змін в конструкцію і характери-
стики приладу, без попереднього повідомлення.
Термін служби водонагрівача становить 8
років.
Схема електричних з'єднань
E
N
L
Q
Q
Нагрівальний елем
ент
Світовий індик
атор нагріву
Температурний
контроль
Термостат
Індикатор
роботи
Коричневий
Синій
Жовто-зелений
Содержание
- 2 Инструкция по эксплуатации водонагревателя серии ZWH/S Mini; Мы благодарим Вас за сделанный выбор!; Содержание; Mini
- 3 Монтаж водонагревателя; Панель управления
- 4 Подключение к электрической сети; Запрещенный объем; — это пространство,; Защитный объем; Подключение к водопроводу; Тройник подсоединения холодной воды в бак; Эксплуатация; Наполнение водой; Меры предосторожности; Розетка электропитания должна быть
- 5 Отказы; Обратитесь к сервисному специалисту.; Технические характеристики; Модель; Предохранительный клапан
- 6 Габаритные размеры; Уход и техническое обслуживание; Нагревательный элем
- 7 Срок гарантии на внутренний бак — 5 лет.; Сертификация; Товар соответствует требованиям:; СИА «Грин Трейс»; Адрес изготовителя:; Сделано в Китае; Дата изготовления; месяц и год производства; SN XXXXXXX XXXX XXXXXX; XXXXX
- 14 Га ран тий ный та лон; бесплатный, в будние дни с 8
- 16 Проведение ТО/ Проведення ТО; Дата
Характеристики
Остались вопросы?Не нашли свой ответ в руководстве или возникли другие проблемы? Задайте свой вопрос в форме ниже с подробным описанием вашей ситуации, чтобы другие люди и специалисты смогли дать на него ответ. Если вы знаете как решить проблему другого человека, пожалуйста, подскажите ему :)