Водонагреватели VIESSMANN Vitocell 100-V CVA 300 л - инструкция пользователя по применению, эксплуатации и установке на русском языке. Мы надеемся, она поможет вам решить возникшие у вас вопросы при эксплуатации техники.
Если остались вопросы, задайте их в комментариях после инструкции.
"Загружаем инструкцию", означает, что нужно подождать пока файл загрузится и можно будет его читать онлайн. Некоторые инструкции очень большие и время их появления зависит от вашей скорости интернета.

:
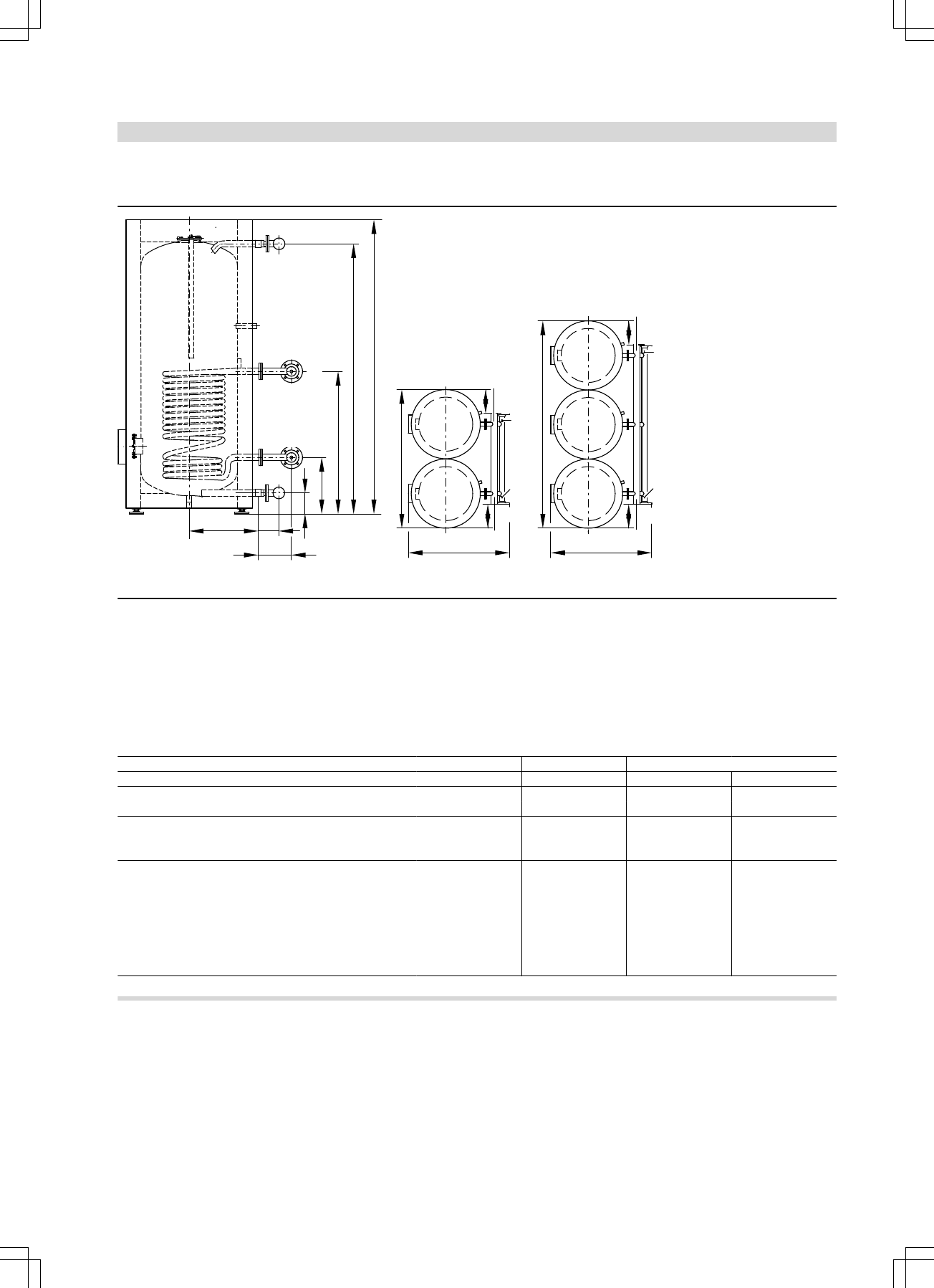
500
HТ
KW
р
р
b
a
HТ
р
р
b
a
а
в
г
д
п
о
з
EL
Е
WW
HТ
EL
Е
WW
HR
HR
KW
KW
Z
WW
EL
Е
HR
c
(
R ½)
EL
(
R ½)
HR
HV
KА/E
Г
300
500
600
1000
1500
К
2
2
3
\\
\\
\\\
К
1461
1838
2826
Л
1109
1218
1218
М
1748
1955
1955
Н
1600
1784
1784
П
875
924
924
Р
260
349
349
С
76
107
107
Ф
343
455
455
r
127
130
135
s
237
237
237
206
315
315
(
750 1000 )
,
2
(750 ) 3
(1000 ).
-
.
,
3
,
,
3
.
-
.
,
-
,
-
.
VТtoМОll 100-V -
(
)
VITOCELL 100-V
VIESMANN
13
5457 959