Водонагреватели TIMBERK SWH FSP1 80 VE - инструкция пользователя по применению, эксплуатации и установке на русском языке. Мы надеемся, она поможет вам решить возникшие у вас вопросы при эксплуатации техники.
Если остались вопросы, задайте их в комментариях после инструкции.
"Загружаем инструкцию", означает, что нужно подождать пока файл загрузится и можно будет его читать онлайн. Некоторые инструкции очень большие и время их появления зависит от вашей скорости интернета.

www.timberk.com • электрический накопительный водонагреватель
5
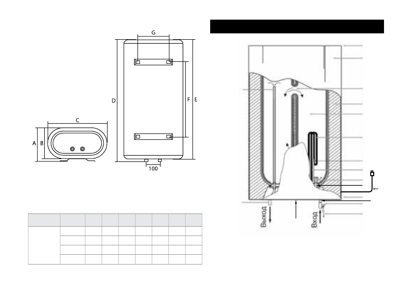
Размерные характеристики
Рис. 1
Размерные характеристики водонагревателя (в мм)
согласно рис. 1 приведены в таблице 2.
Таблица 2
Объем, л
A
B
C
D
E
F
G
SWH FSP1
30
257,5
237,5
436
545
525
240
216
50
257,5
237,5
436
820
800
500
216
80
290
270
496
950
930
450
265
100
290
270
496
1160
1140
550
265
5. ОПИСАНИЕ ВОДОНАГРЕВАТЕЛЯ
3
4
5
6
16
17
7
8
9
10
11
12
1
2
1. Верхняя комбинированная защитная крышка
2. Внешний декоративный корпус
Рис. 2
18
13
14
15