Водонагреватели Timberk SWH FED1 100 V - инструкция пользователя по применению, эксплуатации и установке на русском языке. Мы надеемся, она поможет вам решить возникшие у вас вопросы при эксплуатации техники.
Если остались вопросы, задайте их в комментариях после инструкции.
"Загружаем инструкцию", означает, что нужно подождать пока файл загрузится и можно будет его читать онлайн. Некоторые инструкции очень большие и время их появления зависит от вашей скорости интернета.

www.timberk.com • электрический накопительный водонагреватель
17
Размерные характеристики для серий FSQ1 и FED1
Размерные характеристики водонагревателя (в мм) согласно рис. 1,
рис. 1 приведены в таблице 3.
Таблица 3
Рис. 1
Объем, л
A
B
C
D
E
F
G
H
SWH FED1/
SWH FSQ1 серии
30
573
593
280
235.9
43
13.5
72.3
-
50
858
878
450
235.9
432.9
13.5
72.3
-
80
967
987
500
273.2
492.2
13.5
103.2
-
100
1187
1207
650
273.2
492.2
13.5
103.2
-
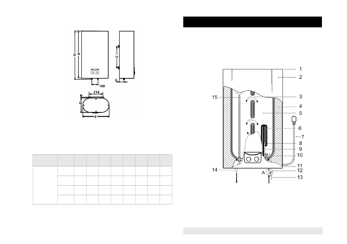
5. ОПИСАНИЕ ВОДОНАГРЕВАТЕЛЯ
Рис. 2
На рис.2 представлено устройство накопительного электрического во-
донагревателя вертикального типа
Вых
од
Вхо
д
Содержание
- 13 Уважаемый покупатель!; Важные меры предосторожности и инструкции, со-; СОДЕРЖАНИЕ
- 14 МЕРЫ ПРЕДОСТОРОЖНОСТИ
- 15 РАБОЧИЕ ХАРАКТЕРИСТИКИ; Основные особенности; НАЗНАЧЕНИЕ ПРИБОРА
- 16 дены в таблице 1. Обращаем ваше внимание на то, что у накопительных; Технические характеристики; дены в таблице 2. Обращаем ваше внимание на то, что у накопительных
- 17 Таблица 3; ОПИСАНИЕ ВОДОНАГРЕВАТЕЛЯ; донагревателя вертикального типа
- 18 КОМПЛЕКТ ПОСТАВКИ; Местоположение
- 19 Способы монтажа водонагревателя; Способ монтажа водонагревателя для одной точки потребления
- 22 УПРАВЛЕНИЕ ВОДОНАГРЕВАТЕЛЕМ; * может не входить в комплект поставки; Панель управления
- 23 Выбор режима мощности; Эксплуатация водонагревателя. Серия FSQ1; Установка температуры нагрева воды; Во время обычной работы кран подачи холод-
- 24 Температурный дисплей
- 25 УСТРАНЕНИЕ НЕИСПРАВНОСТЕЙ
- 26 ЭЛЕКТРИЧЕСКАЯ ПРИНЦИПИАЛЬНАЯ СХЕМА
- 29 Гарантийные обязательства; Если при эксплуатации изделия Вы столкнулись с неполадками в его
- 33 ным письмом Производителя.
- 34 Заполняется фирмой-продавцом; Без подписи покупателя Гарантийный талон является недей-; ности (если прибор провер ялся в его присутствии при продаже) приоб-
- 36 Заполняется сервисным центром
- 40 сообщите нам об этом, связавшись с нами по электронной почте,