Водонагреватели TIMBERK Guardian, , 80 л, LED, SWH FSL5 80 VH - инструкция пользователя по применению, эксплуатации и установке на русском языке. Мы надеемся, она поможет вам решить возникшие у вас вопросы при эксплуатации техники.
Если остались вопросы, задайте их в комментариях после инструкции.
"Загружаем инструкцию", означает, что нужно подождать пока файл загрузится и можно будет его читать онлайн. Некоторые инструкции очень большие и время их появления зависит от вашей скорости интернета.

www.timberk.com • электрический накопительный водонагреватель
5
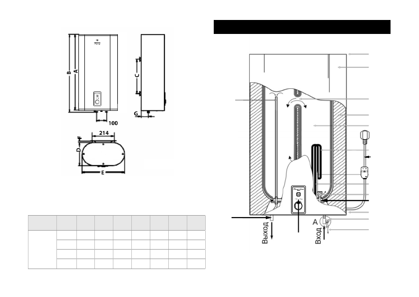
Размерные характеристики
Рис. 1
Размерные характеристики водонагревателя (в мм) со-
гласно рис. 1 приведены в таблице 2.
Таблица 2
Объем,
л
A
B
C
D
E
F
G
SWH FSL5
30
573
593
280
235,9
432,9
13,5
72,3
50
858
878
450
235,9
432,9
13,5
72,3
80
967
987
500
273,2
492,2
13,5
103,2
100
1187
1207
650
273,2
492,2
13,5
103,2
Рис. 2
3
4
5
6
16
17
7
8
9
10
11
12
13
14
1
2
15
5. ОПИСАНИЕ ВОДОНАГРЕВАТЕЛЯ