Водонагреватели Thermex TitaniumHeat 150 V - инструкция пользователя по применению, эксплуатации и установке на русском языке. Мы надеемся, она поможет вам решить возникшие у вас вопросы при эксплуатации техники.
Если остались вопросы, задайте их в комментариях после инструкции.
"Загружаем инструкцию", означает, что нужно подождать пока файл загрузится и можно будет его читать онлайн. Некоторые инструкции очень большие и время их появления зависит от вашей скорости интернета.

2 14
11
12
9
3
7
8
4
1
3
5
6
1
15
19
2
0
2
1
2
2
2
3
2
4
2
5
2
6
1
7
1
8
1
6
2
7
10
Горизонтальная установка /
H
orizontal installation /
Горизонтальна установка /
Көлденең орнату
Модель /
Model /
Моделі
:
TitaniumHeat 80 H
TitaniumHeat 50 H Slim
Рис
. 2 / Fig. 2 /
Рис.
2
/
2
-сурет
4
5
Время нагрева и нормы расхода электроэнергии /
Heating time and energy consumption
rates
/ Час нагріву і норми витрати електроенергії / Жылыту уақыты жəне электр
энергиясын жұмсау нормалары.
Объем, л
Capacity, l
Об'єм, л
Көлемі, л
Время нагрева,
Heating time,
Час нагріву,
Жылыту
уақыты
,
∆
T=45ºС
Постоянные потери,
кВт
•
ч/сут
Constant loss,
kW
•
h/day
Постійні втрати,
кВт
•
год/добу
Тұрақты шығындар,
кВт
•
сағат/тəулік
Фактическое годовое
потребление
электроэнергии, кВт
•
ч
The actual annual
energy consumption, kW
•
h
Фактичне річне споживання
електроенергії, кВт
•
год
Электр энергиясын нақты
жылдық тұтыну, кВт
•
сағат
30
1 hour 05 min
1,08
394,2
50
1 hour
4
5 min
1,
36
496,4
60
2
hour
10
min
1,
54
562,1
80
2
hour
50
min
1,
55
565,75
100
3
hour
30
min
1,
76
642,4
150
4
hour
40
min
2
,
66
970,9
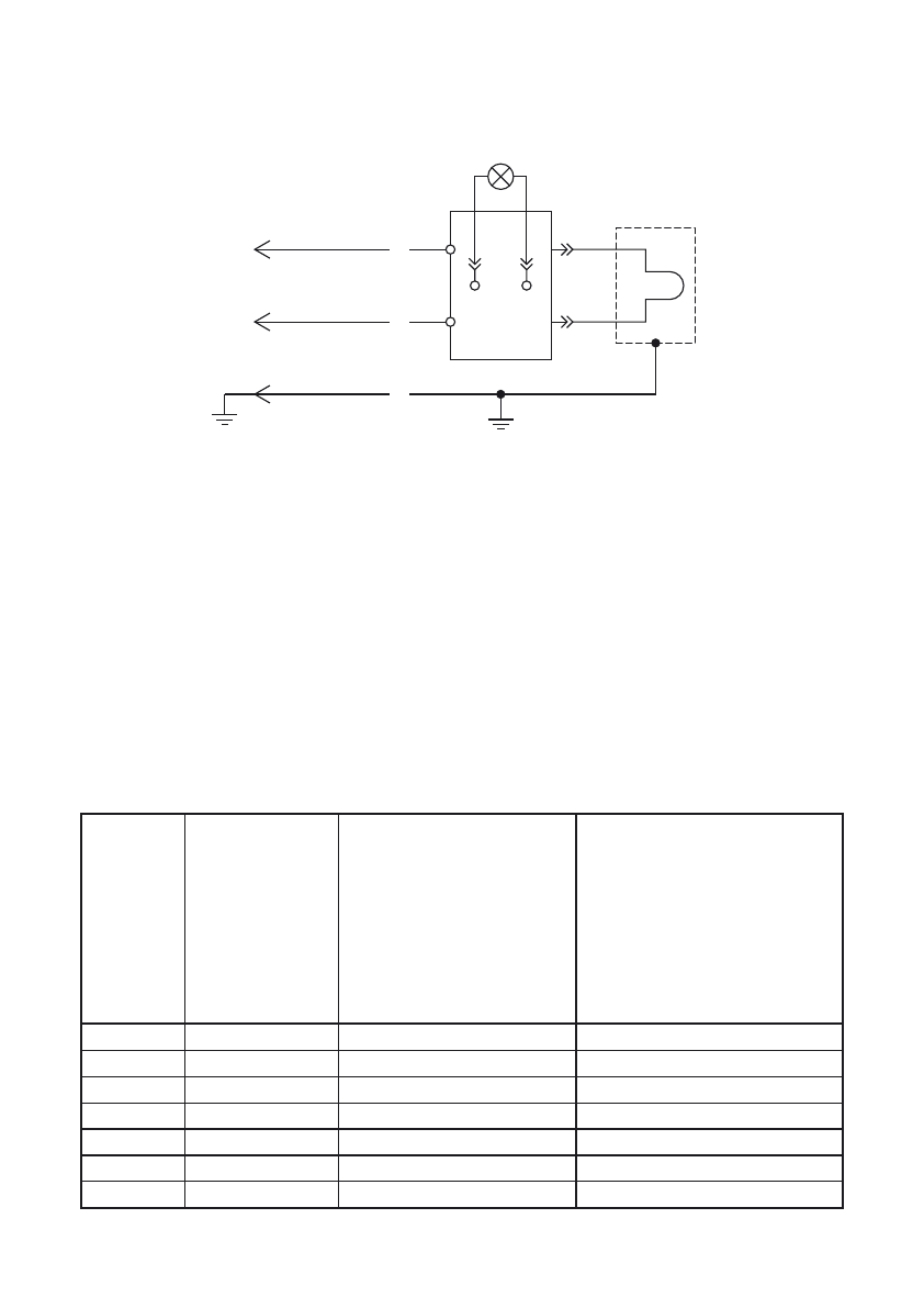
Схема электрических соединений /
Wiring diagram
/
Схема електричних з'єднань /
Электрлік қосылыстар сұлбасы.
Рис.
4
. Схема электрических соединений
Описание Ри
4
c.
1.
Голубой /
Sky blue
/ Блакитний / Көгілдір
2.
Коричневый /
Brown
/ Коричневий / Қоңыр
3.
Желто-зеленый / Yellow-green / Жовто-зелений / Сары-жасыл
4.
Лампа контрольной индикации / Indicator lamp / Лампа контрольної індикації / Бақылау
индикациясының шамы
5.
ТЭН, 1,5 кВт, 230 В / THE 1.5 kW 230 V / ТЕН, 1,5 кВт, 230 В / ТЭЖ,
1,5 кВт, 230 В
6.
Термостат /
Thermostat
/ Термостат
7.
Корпус ЭВН / EWH casing / Корпус ЕВН / ЭВН корпусы
7
5
3
2
1
N
L
E
4
6
7
0
2
hour 3
0
min
1,8
657
Содержание
- 4 Heating time and energy consumption
- 6 Комплект поставки; Thermex
- 8 Описание и принцип действия; Heating; Указание мер безопасности
- 10 Подключение к электросети; За падение ЭВН, связанное с его неправильной установкой; Подключение к водопроводу; ной очистки воды со степенью очистки не менее 200 мкм.
- 12 Возможные неисправности и методы их устранения; отметка с печатью организа
- 14 комплекта поставки ЭВН.; Утилизация; Транспортировка и хранение электроводонагревателей
- 16 Supply Package; mail












