Водонагреватели Thermex TitaniumHeat 100 V - инструкция пользователя по применению, эксплуатации и установке на русском языке. Мы надеемся, она поможет вам решить возникшие у вас вопросы при эксплуатации техники.
Если остались вопросы, задайте их в комментариях после инструкции.
"Загружаем инструкцию", означает, что нужно подождать пока файл загрузится и можно будет его читать онлайн. Некоторые инструкции очень большие и время их появления зависит от вашей скорости интернета.

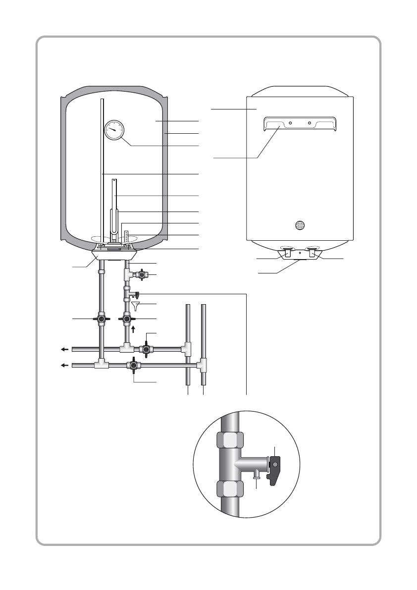
Рис
. 1 / Fig. 1 /
Рис. 1 /
1-сурет
1
2
1
4
1
1
1
5
1
2
9
7
3
1
3
8
4
5
10
6
19
2
0
2
1
2
2
2
3
2
4
2
5
2
6
1
7
1
8
1
6
2
7
Вертикальная установка /
V
ertical installation /
Вертикальна установка /
Тік орнату
Модель /
Model /
Моделі
:
TitaniumHeat 50 – 150 V
TitaniumHeat 30 – 70 V Slim
3
TX_IM_545_04
Содержание
- 4 Heating time and energy consumption
- 6 Комплект поставки; Thermex
- 8 Описание и принцип действия; Heating; Указание мер безопасности
- 10 Подключение к электросети; За падение ЭВН, связанное с его неправильной установкой; Подключение к водопроводу; ной очистки воды со степенью очистки не менее 200 мкм.
- 12 Возможные неисправности и методы их устранения; отметка с печатью организа
- 14 комплекта поставки ЭВН.; Утилизация; Транспортировка и хранение электроводонагревателей
- 16 Supply Package; mail