Водонагреватели Thermex IU 50 V - инструкция пользователя по применению, эксплуатации и установке на русском языке. Мы надеемся, она поможет вам решить возникшие у вас вопросы при эксплуатации техники.
Если остались вопросы, задайте их в комментариях после инструкции.
"Загружаем инструкцию", означает, что нужно подождать пока файл загрузится и можно будет его читать онлайн. Некоторые инструкции очень большие и время их появления зависит от вашей скорости интернета.

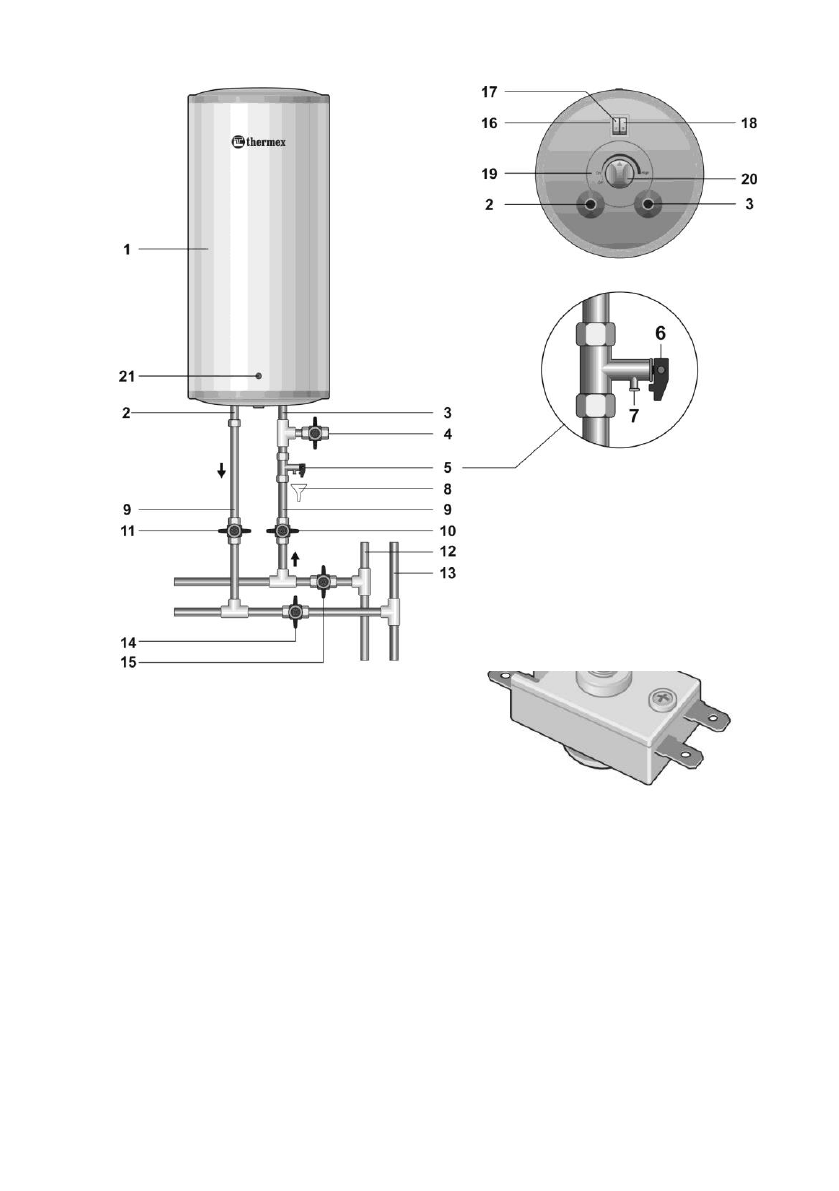
1
1.
Внешний корпус ЭВН
2.
Патрубок выпуска горячей воды
(с красным кольцом)
3.
Патрубок подачи холодной воды
(с синим кольцом)
4.
Сливной вентиль
5.
Предохранительный клапан
6.
Ручка предохранительного
Рисунок 2. Расположение кнопки
клапана
термовыключателя
7.
Выпускная труба
предохранительного клапана
8.
Дренаж в канализацию
9.
Подводка
10.
Вентиль подачи холодной воды
16.
Переключатель режимов мощности
11.
Вентиль подачи горячей воды
17.
Режим мощности
I
– 1,3 кВт
12.
Магистраль холодной воды
18.
Режим мощности
II
– 0,7 кВт
13.
Магистраль горячей воды
19.
Защитная крышка
14.
Запорный вентиль горячей воды
20.
Ручка регулировки температуры
15.
Запорный вентиль холодной воды
21.
Контрольная лампа
Рисунок 1. Схема подключения и элементы управления
Содержание
- 4 предназначен для работы в непрерывно проточном режиме.; ОСНОВНЫЕ ТЕХНИЧЕСКИЕ ХАРАКТЕРИСТИКИ; МПа
- 5 КОМПЛЕКТ ПОСТАВКИ; ЭВН имеет два резьбовых патрубка: для входа холодной воды (
- 7 УСТАНОВКА И ПОДКЛЮЧЕНИЕ; корпусе и в соответствии со следующей таблицей:; Маркировка; – вертикальное, патрубки вниз
- 8 ПОДКЛЮЧЕНИЕ К ВОДОПРОВОДУ
- 10 Для проведения ТО и замены анода необходимо выполнить следую-
- 13 ГАРАНТИЯ ИЗГОТОВИТЕЛЯ; Изготовитель устанавливает срок гарантии на водонагреватель
- 14 СВЕДЕНИЯ ОБ ИЗГОТОВИТЕЛЕ; Импортёр в Российскую Федерацию:
- 15 Представник виробника в Украiнi:
- 16 ОТМЕТКА О ПРОДАЖЕ; Подпись представителя; продавца
- 19 Wi-Fi Motion Wireless Technology; Other products with remote control:; Отопление; Водоснабжение
- 20 рядом с Карловыми Варами.; Встречай












