Водонагреватели Thermex IRP 80 V - инструкция пользователя по применению, эксплуатации и установке на русском языке. Мы надеемся, она поможет вам решить возникшие у вас вопросы при эксплуатации техники.
Если остались вопросы, задайте их в комментариях после инструкции.
"Загружаем инструкцию", означает, что нужно подождать пока файл загрузится и можно будет его читать онлайн. Некоторые инструкции очень большие и время их появления зависит от вашей скорости интернета.

УВАГА!
Несправність запобіжного клапана або шнура живлення не є несправністю власне ЕВН і
не тягне за собою заміну ЕВН. Відповідальність за дотримання правил установки та підключення
несе покупець (у разі самостійного підключення) або монтажна організація, що здійснила
підключення.
Відомості про виробника
Виробник:
«HEATING EQUIPMENT» LTD
ООО «Тепловое Оборудование»
Росія, 187000, Ленінградська область, м. Тосно, Московське шосе, буд. 44
Усі моделі пройшли обов'язкову сертифікацію та відповідають вимогам Технічного
регламенту Митного союзу ТР ТС 004/2011, ТР ТС 020/2011
Сертифікат № ТС RU C-RU.AB72.B.01094
та Європейським директивам 2006/95/ЄС, 2004/108/ЄС.
Служба гарантійної та сервісної підтримки в Росії:
тел.: 8-800-333-50-77 (понеділок−п'ятниця
− з 09:00 до 20:00; субота, неділя − з 10:00 до 18:00 за московським часом; дзвінок по Росії
безкоштовний), e-mail:
service@thermex.ru
Головний сервісний центр − установка та підключення ЕВН, гарантійний і постгарантійний
ремонти:
Росія, 196105, м. Санкт-Петербург, вул. Благодатна, буд. 63, тел.: (812) 313-32-73
Телефони та адреси авторизованих сервісних центрів у інших містах і регіонах Росії можна
дізнатися на сайті
www.thermex.ru
або звернутися до сервісного центру, вказаного фірмою-
продавцем.
Найменування і адреса уповноваженого представника, імпортера:
ООО «Термекс»
58032, м. Чернівці, Україна, вул. Головна, 246
тел.: +38-0327-583-200
OOO «Термекс-Логістік»
73019, м.Херсон, Україна, Карантинний
острів, 1
тел.: +38-0552-490-129
З питань рекламацій, гарантійного і сервісного обслуговування звертайтеся в сервісну
службу:
Сервісний центр
ООО «ТЕРМАЛЬ-06»
, м. Київ, тел.: 8-800-500-610
KZ
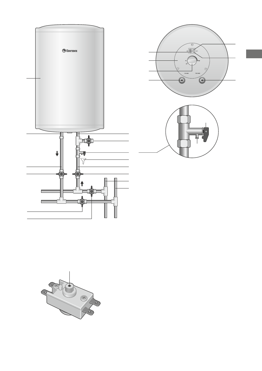
1 Сурет
Қосу схемасы жəне басқару элементтері.
1
2
3
4
5
8
9
14
12
13
10
9
11
6
7
2
3
19
20
16
17
18
2 Сурет
Термосөндіргіш түймесінің орналасуы.
15
ЭСЖ сыртқы корпусы
Ыстық суды шығаруға келте
құбыр (қызыл шығыршықпен)
Суық суды қосуға келте құбыр
(көк шығыршықпен)
Ағызу тетігі
Сақтағыш қақпақша
Сақтағыш қақпақшаның тұтқасы
Сақтағыш қақпақшаның шығару
құбыры
Канализацияға дренаж
Жеткiзу
Суық суды қосу тетігі
Ыстық суды қосу тетігі
Суық су магистралі
Ыстық су магистралі
Ыстық суды бекіту тетігі
Суық суды бекіту тетігі
Қуат тəртiбiн ауыстыру қосқышы
Қуат тəртiбі I - 1.5 кВт
Қуат тəртiбі II - 1 кВт
Қорғаныш қақпағы
Температураны реттеу тұтқасы
1.
2.
3.
4.
5.
6.
7.
8.
9.
10.
11.
12.
13.
14.
15.
16.
17.
18.
19.
20.
Басу
UA
29
28












