Thermex IRP 80 V - Инструкция по эксплуатации - Страница 12

Водонагреватели Thermex IRP 80 V - инструкция пользователя по применению, эксплуатации и установке на русском языке. Мы надеемся, она поможет вам решить возникшие у вас вопросы при эксплуатации техники.

Если остались вопросы, задайте их в комментариях после инструкции.

"Загружаем инструкцию", означает, что нужно подождать пока файл загрузится и можно будет его читать онлайн. Некоторые инструкции очень большие и время их появления зависит от вашей скорости интернета.
Страница:
/ 64
Загружаем инструкцию
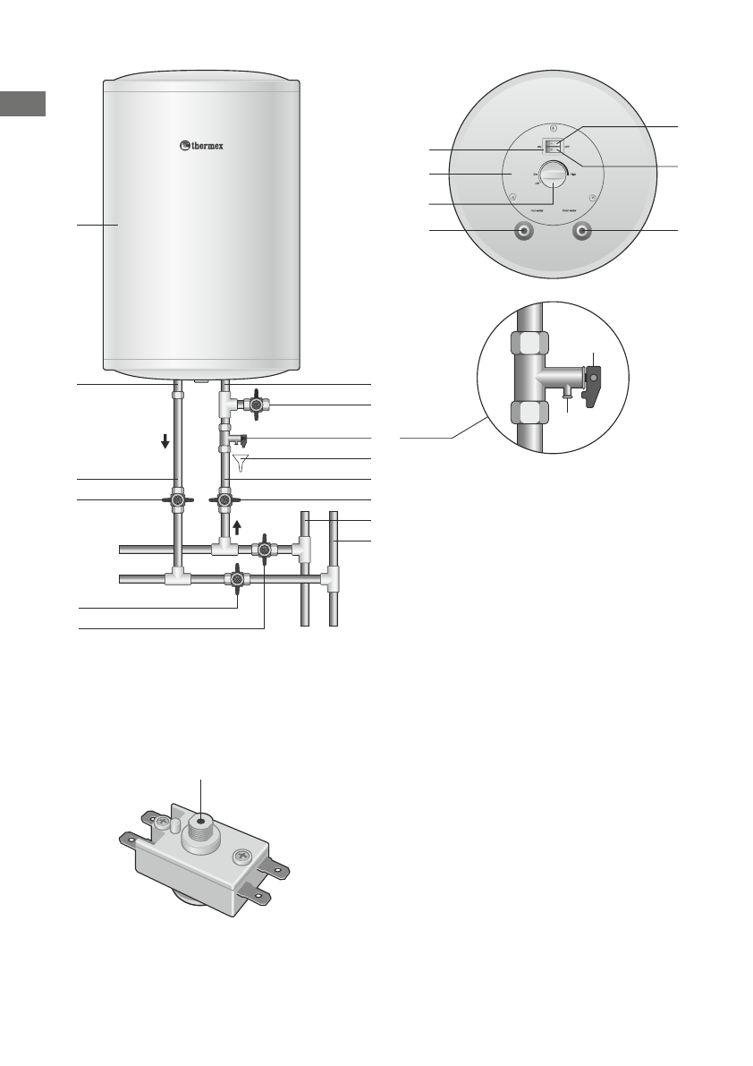
background image

Fig. 1

Connection diagram and controls.

1

2

3

4

5

8

9

14

12

13

10

9

11

6

7

2

3

19

20

16

17

18

Fig

. 2

Thermal switch button location.

 

15

Outer casing of EWH

Hot water exhaust pipe (with red ring)    

Cold water supply pipe (with blue ring)     

Drain valve  

Safety

 

valve

  

Safety valve handle 

Safety

 

valve

 

exhaust

 

pipe

Drainage

Feed

 

pipe

   

Cold water supply valve  

Hot

 

water

 

supply

 

valve

  

Cold water main   

Hot water main   

Hot water shut-off valve   

Cold water shut-off valve    

Power mode switch  

Power mode 

I

 - 1.5 kW  

Power mode 

II

 - 1 kW  

Protective

 

cover

   

Temperature adjustment knob

 

 

1.

2.

3.

4.

5.

6.

7.

8.

9.

10.

11.

12.

13.

14.

15.

16.

17.

18.

19.

20.

Push

EN

13

12

  Before  the  first  using  your  electric  storage  water  heater,  carefully  read  this  operation 
manual and pay special attention to paragraphs marked with «Attention» symbol.  

   

 

Present operation manual applies to ISP and IRP models with capacity from 30 to 120 liters. The full 
name of the heater model is specified on the identification plate on the water heater casing.   

Scope of supply

Water heater .....................................1 pcs.
Safety valve of GP type .....................1 pcs.
Anchors ............................................2 pcs.
Operation manual .............................1 pcs.
Warranty card ...................................1 pcs.
Packaging.........................................1 pcs.

Application

   

Water heater (hereinafter EWH) is designed to provide with hot water for welfare and industrial facilities 
that have cold water supply main with appropriate characteristics.
 
EWH shall be operated in closed heated spaces and is not designed for continuous flowing mode.

Main technical characteristics

 

 

0

.

05 /

 0.6 MPa

2

3

V~

, 50 

Hz

2

.5

 

kW

1/2

IPX4

+

3

...+

40°С

+18…+74°С

 ±5°С

Cold water main pressure, min/max

Supply line - single-phase voltage, frequency

Tubular electric heater (THE)  power 

 

Thread diameter of hot and cold water connecting pipes  

 

Heater protection class 

Operation

 at ambient temperature

Water heating temperature adjustment range

 

Accuracy of temperature maintenance in the storage mode

The manufacturer reserves the right to make changes to the design and specifications of the heater 
without prior notice.  

Information on place of marking and method of determining of the date of manufacture:        

Date of manufacture is coded with a unique serial number on the identification plate (sticker), located at 
the bottom of the casing. Serial number of the product consists of thirteen digits. The third and fourth 
digits  of  the  serial  number  are  year  of  manufacture,  the  fifth  and  sixth  -  month  of  manufacture,  the 
seventh and eighth – date of EWH manufacture.   
 

Principle of operation

  

The outer casing of EWH is made of impact-resistant plastic. Inner tank is made of high quality stainless 
steel, which ensures high corrosion resistance and long life. The space between the outer casing and 
the inner tank is filled with polyurethane foam - a modern, environmentally friendly thermal insulation 

EN

Полезные видео

Характеристики

Оцените статью
tehnopanorama.ru
Остались вопросы?

Не нашли свой ответ в руководстве или возникли другие проблемы? Задайте свой вопрос в форме ниже с подробным описанием вашей ситуации, чтобы другие люди и специалисты смогли дать на него ответ. Если вы знаете как решить проблему другого человека, пожалуйста, подскажите ему :)

Задать вопрос

Часто задаваемые вопросы
Как посмотреть инструкцию к Thermex IRP 80 V?
Необходимо подождать полной загрузки инструкции в сером окне на данной странице
Руководство на русском языке?
Все наши руководства представлены на русском языке или схематично, поэтому вы без труда сможете разобраться с вашей моделью
Как скопировать текст из PDF?
Чтобы скопировать текст со страницы инструкции воспользуйтесь вкладкой "HTML"