Thermex ES 80 V/H - Инструкция по эксплуатации - Страница 2

Водонагреватели Thermex ES 80 V/H - инструкция пользователя по применению, эксплуатации и установке на русском языке. Мы надеемся, она поможет вам решить возникшие у вас вопросы при эксплуатации техники.

Если остались вопросы, задайте их в комментариях после инструкции.

"Загружаем инструкцию", означает, что нужно подождать пока файл загрузится и можно будет его читать онлайн. Некоторые инструкции очень большие и время их появления зависит от вашей скорости интернета.
Страница:
/ 11
Загружаем инструкцию
background image

1

2

15
12
16

13

9

7
3

14

8

11

4

5

10

6

20

21

22

23

24

25

26 27

18

19

17

29

28

Рис

. 1/ Fig. 1/ 

Рис

. 1/ 1 

сур

./ Joonis 1./

 

Att. 1/ 

Pieš. 1

3

3

5

5

4

4

2

2

9

9

10

10

8

8

7

7

6

6

1

1

1

1

Рис.

 

2/ Fig. 2/ Рис.

 

2/

 

2 сур./

 Joonis 2

/

Att. 2/ Pieš. 2

Рис.

 

3/ Fig. 3/ Рис.

 

3/ 3 сур./ Joonis 3/ Att. 3/

Pieš. 3

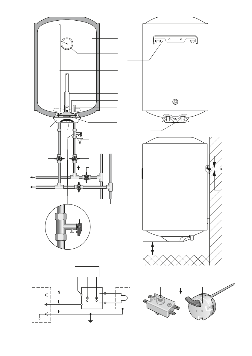
Описание  Рис

.  1/  Description  Fig.  1

/  Опис  Рис

.  1/

 

1

  сур.  Сипаттамасы

/

  Kirjeldus  Joonis  1

Apraksts

 Att

ēls

 1

/

 

Aprašymas Pieš.1

Внешний  корпус/

 

Outer  casing/  Зовнiшнiй  корпус/  Сыртқы  корпус

/

  Välikorpus

/  Ārējais  korpuss/ 

Išorinis korpusas

Внутренний  бак  (емкость)/  Inner  tank  (reservoir)/  Внутрiшнiй  бак  (ємнiсть)/  Ішкі  бак  (сауыт)

Siseanum (mahuti)/ Iekšējā tvertne (tilpne)/ Vidinis bakas (talpykla)

Съемный  фланец/

  Removable  flange/  Знімний  фланець/

  Алмалы  ернемек

/  Äravõetav  flants 

(äärik)Noņemamais atloks/ Nuimama jungė

Защитная крышка/ Protective cover/ Захисна кришка/ Қорғаныс қақпағы

/ Kaitseklapp/ Aizsargvāks/ 

Saugos gaubtas

Патрубок подачи холодной воды (с синим кольцом)/ Cold water inlet pipe (with blue ring)/ Патрубок 
подачі холодної води (з синім кільцем)/ Салқын су жеткізетін келте құбыр (көк сақиналы)

/ Külma 

vee  sisendtoru  (sinise  rõngaga)/  Caurule  aukstā  ūdens  padevei  (ar  zilo  gredzenu)/  Šalto  vandens 
padavimo vamzdis (su mėlynu žiedu)

Патрубок  выпуска  горячей  воды(с  красным  кольцом)/

  Hot  water  outlet  pipe  (with  red  ring)/ 

Патрубок

 

випуску  гарячої  води  (з  червоним  кільцем)/

  Ыстық  су  жеткізетін  келте  құбыр  (қызыл 

сақиналы)

/ Sooja  vee  väljavoolutoru  (punase  rõngaga)/  Caurule  karstā  ūdens  padevei  (ar  sarkano 

gredzenu)/ Karšto vandens išleidimo vamzdis (su raudonu žiedu)

Трубчатый электронагреватель (ТЭН)/

 Tubular electric heater (TEH)

/ Трубчастий електронагрівач 

(ТЕН)/  Түтікшелі  электрлік  жылытқыш  (ТЭЖ)

/  Elektritenn  (elektriline  küttekeha)/  Cauruļveida 

elektriskais sildītājs (CES)/ Vamzdelinis elektrinis šildytuvas (VeŠ)

Термостат/

 Thermostat/ Термостат/

 Термостат

/ Termostaat/ Termostats/ Termostatas

Магниевый анод/

 Magnesium anode/ Магнієвий анод/

 Магний аноды

/ Magneesiumanood/ Magnija 

anods/ Magnio anodas

Ручка терморегулятора/ Thermostat control unit/ Ручка терморегулятора

/

 Термореттегіш тұтқасы

Kütteregulaator/ Termoregulētāja rokturis/ Termostato rankenėlė

Лампы  контрольной  индикации/

  Control  indicator  lamps

/  Лампи  контрольної  індикації/  Бақылау 

индикациясының  шамдары

/  Kontrollnäidikute  lambid/  Kontrolindikācijas  lampas/  Kontrolinio 

indikavimo lemputės

Индик атор  температ уры/  Temperature  indicator/  Індик атор  температ ури/  Температ ура 
индикаторы

/ Temperatuuri näidik/ Temperatūras indikators/ Temperatūros indikatorius

Трубка забора горячей воды/

 Hot water inlet pipe

/ Трубка забору гарячої води/ Ыстық су алатын 

түтік

/ Kuuma vee imutoru/ Karstā ūdens ņemšanas caurule/ Karšto vandens paėmimo vamzdelis

Рассеиватель  холодной  воды/

  Cold  water  disperser

/  Розсіювач  холодної  води/  Салқын  су 

таратқышы

/ Külma vee difuusor/ Aukstā ūdens sajaucējs/ Šalto vandens difuzorius

Теплоизоляция/ 

Thermal  insulation

  /  Теплоізоляція/  Жылулық  оқшаулама

/  Soojusisolatsioon  / 

Termoizolācija/ Šiluminė izoliacija

Кронштейн  для  крепления/ 

Mounting  bracket

/  Кронштейн  для  кріплення/  Бекітуге  арналған 

тіреуіш

/ Kandur paigaldamiseks/ Stiprinājuma kronšteins/ Laikiklis tvirtinimui

Предохранительный  клапан/ 

Relief  valve

/  Запобіжний  клапан/  Сақтандырғыш  клапан

Turvaventiil/ Drošības vārstulis/ Saugos vožtuvas

Ручка  предохранительного  клапана/ 

Relief  valve  control  knob

/  Ручка  запобіжного  клапана/ 

Сақтандырғыш  клапан  тұтқасы

/  Turvaventiili  kang/  Drošības  vārstuļa  rokturis/  Saugos  vožtuvo 

rankenėlė

Выпускная  труба  предохранительного  клапана/

  Relief  valve  exhaust  pipe

/  Випускна  труба 

запобіжного клапана/ Сақтандырғыш клапанның шығару түтігі

/ Turvaventiili väljundtoru/ Drošības 

vārstuļa izplūdes caurule/ Saugos vožtuvo išleidžiamasis  vamzdis

Дренаж/

 Drainage

/ Дренаж/ Дренаж

/ Drenaaž/ Drenāža/ Drenažas

1

2

3

4

5

6

7

8

9

10

11

12

13

14

15

16

17

18

19

20

Полезные видео

Характеристики

Оцените статью
tehnopanorama.ru
Остались вопросы?

Не нашли свой ответ в руководстве или возникли другие проблемы? Задайте свой вопрос в форме ниже с подробным описанием вашей ситуации, чтобы другие люди и специалисты смогли дать на него ответ. Если вы знаете как решить проблему другого человека, пожалуйста, подскажите ему :)

Задать вопрос

Часто задаваемые вопросы
Как посмотреть инструкцию к Thermex ES 80 V/H?
Необходимо подождать полной загрузки инструкции в сером окне на данной странице
Руководство на русском языке?
Все наши руководства представлены на русском языке или схематично, поэтому вы без труда сможете разобраться с вашей моделью
Как скопировать текст из PDF?
Чтобы скопировать текст со страницы инструкции воспользуйтесь вкладкой "HTML"