Водонагреватели Thermex ES 50 V/H - инструкция пользователя по применению, эксплуатации и установке на русском языке. Мы надеемся, она поможет вам решить возникшие у вас вопросы при эксплуатации техники.
Если остались вопросы, задайте их в комментариях после инструкции.
"Загружаем инструкцию", означает, что нужно подождать пока файл загрузится и можно будет его читать онлайн. Некоторые инструкции очень большие и время их появления зависит от вашей скорости интернета.

1
2
15
12
16
13
9
7
3
14
8
11
4
5
10
6
20
21
22
23
24
25
26 27
18
19
17
29
28
Рис
. 1/ Fig. 1/
Рис
. 1/ 1
сур
./ Joonis 1./
Att. 1/
Pieš. 1
3
3
5
5
4
4
2
2
9
9
10
10
8
8
7
7
6
6
1
1
1
1
Рис.
2/ Fig. 2/ Рис.
2/
2 сур./
Joonis 2
/
Att. 2/ Pieš. 2
Рис.
3/ Fig. 3/ Рис.
3/ 3 сур./ Joonis 3/ Att. 3/
Pieš. 3
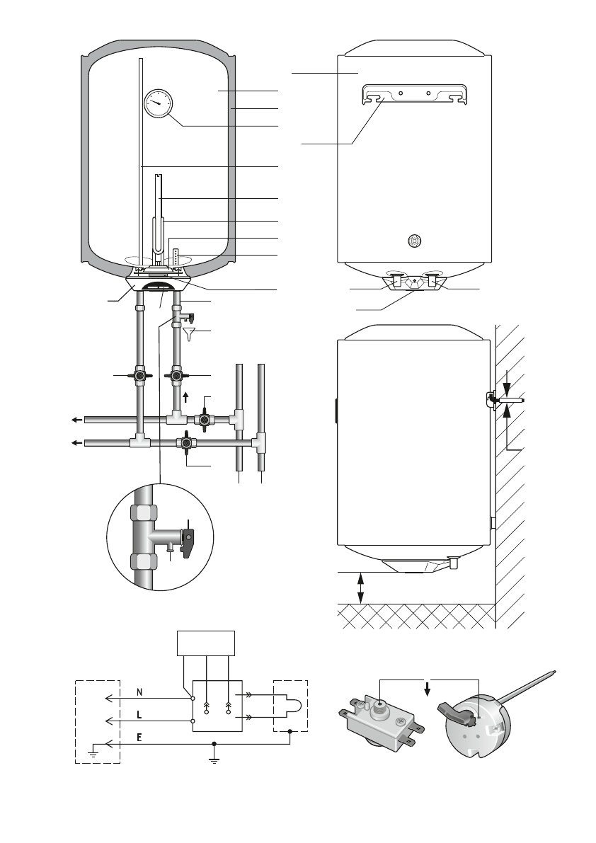
Описание Рис
. 1/ Description Fig. 1
/ Опис Рис
. 1/
1
сур. Сипаттамасы
/
Kirjeldus Joonis 1
/
Apraksts
Att
ēls
1
/
Aprašymas Pieš.1
Внешний корпус/
Outer casing/ Зовнiшнiй корпус/ Сыртқы корпус
/
Välikorpus
/ Ārējais korpuss/
Išorinis korpusas
Внутренний бак (емкость)/ Inner tank (reservoir)/ Внутрiшнiй бак (ємнiсть)/ Ішкі бак (сауыт)
/
Siseanum (mahuti)/ Iekšējā tvertne (tilpne)/ Vidinis bakas (talpykla)
Съемный фланец/
Removable flange/ Знімний фланець/
Алмалы ернемек
/ Äravõetav flants
(äärik)Noņemamais atloks/ Nuimama jungė
Защитная крышка/ Protective cover/ Захисна кришка/ Қорғаныс қақпағы
/ Kaitseklapp/ Aizsargvāks/
Saugos gaubtas
Патрубок подачи холодной воды (с синим кольцом)/ Cold water inlet pipe (with blue ring)/ Патрубок
подачі холодної води (з синім кільцем)/ Салқын су жеткізетін келте құбыр (көк сақиналы)
/ Külma
vee sisendtoru (sinise rõngaga)/ Caurule aukstā ūdens padevei (ar zilo gredzenu)/ Šalto vandens
padavimo vamzdis (su mėlynu žiedu)
Патрубок выпуска горячей воды(с красным кольцом)/
Hot water outlet pipe (with red ring)/
Патрубок
випуску гарячої води (з червоним кільцем)/
Ыстық су жеткізетін келте құбыр (қызыл
сақиналы)
/ Sooja vee väljavoolutoru (punase rõngaga)/ Caurule karstā ūdens padevei (ar sarkano
gredzenu)/ Karšto vandens išleidimo vamzdis (su raudonu žiedu)
Трубчатый электронагреватель (ТЭН)/
Tubular electric heater (TEH)
/ Трубчастий електронагрівач
(ТЕН)/ Түтікшелі электрлік жылытқыш (ТЭЖ)
/ Elektritenn (elektriline küttekeha)/ Cauruļveida
elektriskais sildītājs (CES)/ Vamzdelinis elektrinis šildytuvas (VeŠ)
Термостат/
Thermostat/ Термостат/
Термостат
/ Termostaat/ Termostats/ Termostatas
Магниевый анод/
Magnesium anode/ Магнієвий анод/
Магний аноды
/ Magneesiumanood/ Magnija
anods/ Magnio anodas
Ручка терморегулятора/ Thermostat control unit/ Ручка терморегулятора
/
Термореттегіш тұтқасы
/
Kütteregulaator/ Termoregulētāja rokturis/ Termostato rankenėlė
Лампы контрольной индикации/
Control indicator lamps
/ Лампи контрольної індикації/ Бақылау
индикациясының шамдары
/ Kontrollnäidikute lambid/ Kontrolindikācijas lampas/ Kontrolinio
indikavimo lemputės
Индик атор температ уры/ Temperature indicator/ Індик атор температ ури/ Температ ура
индикаторы
/ Temperatuuri näidik/ Temperatūras indikators/ Temperatūros indikatorius
Трубка забора горячей воды/
Hot water inlet pipe
/ Трубка забору гарячої води/ Ыстық су алатын
түтік
/ Kuuma vee imutoru/ Karstā ūdens ņemšanas caurule/ Karšto vandens paėmimo vamzdelis
Рассеиватель холодной воды/
Cold water disperser
/ Розсіювач холодної води/ Салқын су
таратқышы
/ Külma vee difuusor/ Aukstā ūdens sajaucējs/ Šalto vandens difuzorius
Теплоизоляция/
Thermal insulation
/ Теплоізоляція/ Жылулық оқшаулама
/ Soojusisolatsioon /
Termoizolācija/ Šiluminė izoliacija
Кронштейн для крепления/
Mounting bracket
/ Кронштейн для кріплення/ Бекітуге арналған
тіреуіш
/ Kandur paigaldamiseks/ Stiprinājuma kronšteins/ Laikiklis tvirtinimui
Предохранительный клапан/
Relief valve
/ Запобіжний клапан/ Сақтандырғыш клапан
/
Turvaventiil/ Drošības vārstulis/ Saugos vožtuvas
Ручка предохранительного клапана/
Relief valve control knob
/ Ручка запобіжного клапана/
Сақтандырғыш клапан тұтқасы
/ Turvaventiili kang/ Drošības vārstuļa rokturis/ Saugos vožtuvo
rankenėlė
Выпускная труба предохранительного клапана/
Relief valve exhaust pipe
/ Випускна труба
запобіжного клапана/ Сақтандырғыш клапанның шығару түтігі
/ Turvaventiili väljundtoru/ Drošības
vārstuļa izplūdes caurule/ Saugos vožtuvo išleidžiamasis vamzdis
Дренаж/
Drainage
/ Дренаж/ Дренаж
/ Drenaaž/ Drenāža/ Drenažas
1
2
3
4
5
6
7
8
9
10
11
12
13
14
15
16
17
18
19
20












