Термекс TitaniumHeat 80 H ЭдЭБ01027 - Инструкция по эксплуатации - Страница 4

Водонагреватели Термекс TitaniumHeat 80 H ЭдЭБ01027 - инструкция пользователя по применению, эксплуатации и установке на русском языке. Мы надеемся, она поможет вам решить возникшие у вас вопросы при эксплуатации техники.

Если остались вопросы, задайте их в комментариях после инструкции.

"Загружаем инструкцию", означает, что нужно подождать пока файл загрузится и можно будет его читать онлайн. Некоторые инструкции очень большие и время их появления зависит от вашей скорости интернета.
Страница:
/ 52
Загружаем инструкцию
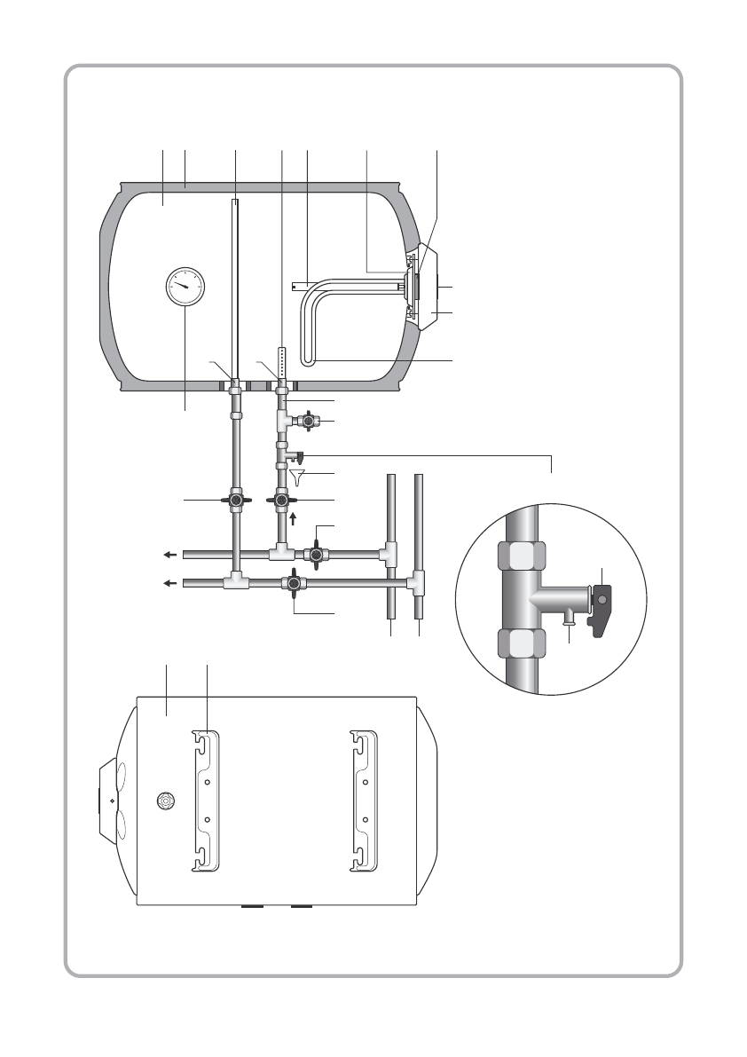
background image

2 14

11

12

9

3

7

8

4

1

3

5

6

1

15

19

2

0

2

1

2

2

2

3

2

4

2

5

2

6

1

7

1

8

1

6

2

7

10

Горизонтальная установка /

H

orizontal installation /

Горизонтальна установка /
Көлденең орнату

Модель / 

Model / 

Моделі

:

TitaniumHeat 80 H
TitaniumHeat 50 H Slim

Рис

. 2 / Fig. 2 / 

Рис. 

2

 /

 2

-сурет

      

4

5

Время нагрева и нормы расхода электроэнергии / 

Heating time and energy consumption 

rates

  /  Час  нагріву  і  норми  витрати  електроенергії  /  Жылыту  уақыты  жəне  электр 

энергиясын жұмсау нормалары.

Объем, л

Capacity, l

Об'єм, л

Көлемі, л

Время нагрева,

Heating time,

Час нагріву,

Жылыту 

уақыты

,

T=45ºС

Постоянные  потери, 

кВт

ч/сут

Constant loss, 

kW

h/day

Постійні втрати, 

кВт

год/добу

Тұрақты шығындар, 

кВт

сағат/тəулік

Фактическое годовое

потребление

электроэнергии, кВт

ч

The actual annual

energy consumption, kW

h

Фактичне річне споживання

електроенергії, кВт

год

Электр энергиясын нақты 

жылдық тұтыну, кВт

сағат

30

1 hour 05 min

1,08

394,2

50

1 hour 

4

5 min

1,

36

496,4

60

2

 hour 

10

 min

1,

54

562,1

80

2

 hour 

50

 min

1,

55

565,75

100

3

 hour 

30

 min

1,

76

642,4

150

4

 hour 

40

 min

2

,

66

970,9

Схема электрических соединений /

 Wiring diagram

 /

 

Схема електричних з'єднань / 

Электрлік қосылыстар сұлбасы.

Рис. 

4

. Схема электрических соединений

Описание Ри  

4

c.

1.

  Голубой / 

Sky blue

 / Блакитний / Көгілдір

2.

  Коричневый /

 Brown

 / Коричневий / Қоңыр

3.

  Желто-зеленый / Yellow-green / Жовто-зелений / Сары-жасыл

4.

  Лампа контрольной индикации / Indicator lamp / Лампа контрольної індикації / Бақылау 

индикациясының шамы

5.

  ТЭН, 1,5 кВт, 230 В / THE 1.5 kW 230 V / ТЕН, 1,5 кВт, 230 В / ТЭЖ, 

1,5 кВт, 230 В

6.

  Термостат /

 Thermostat

 / Термостат

7.

  Корпус ЭВН / EWH casing / Корпус ЕВН / ЭВН корпусы

7

5

3

2

1

N

L

E

4

6

7

0

2

 hour 3

0

 min

1,8

657

Полезные видео

Характеристики

Оцените статью
tehnopanorama.ru
Остались вопросы?

Не нашли свой ответ в руководстве или возникли другие проблемы? Задайте свой вопрос в форме ниже с подробным описанием вашей ситуации, чтобы другие люди и специалисты смогли дать на него ответ. Если вы знаете как решить проблему другого человека, пожалуйста, подскажите ему :)

Задать вопрос

Часто задаваемые вопросы
Как посмотреть инструкцию к Термекс TitaniumHeat 80 H ЭдЭБ01027?
Необходимо подождать полной загрузки инструкции в сером окне на данной странице
Руководство на русском языке?
Все наши руководства представлены на русском языке или схематично, поэтому вы без труда сможете разобраться с вашей моделью
Как скопировать текст из PDF?
Чтобы скопировать текст со страницы инструкции воспользуйтесь вкладкой "HTML"