Водонагреватели Термекс Praktik 30 V Slim ЭдЭ001638 - инструкция пользователя по применению, эксплуатации и установке на русском языке. Мы надеемся, она поможет вам решить возникшие у вас вопросы при эксплуатации техники.
Если остались вопросы, задайте их в комментариях после инструкции.
"Загружаем инструкцию", означает, что нужно подождать пока файл загрузится и можно будет его читать онлайн. Некоторые инструкции очень большие и время их появления зависит от вашей скорости интернета.

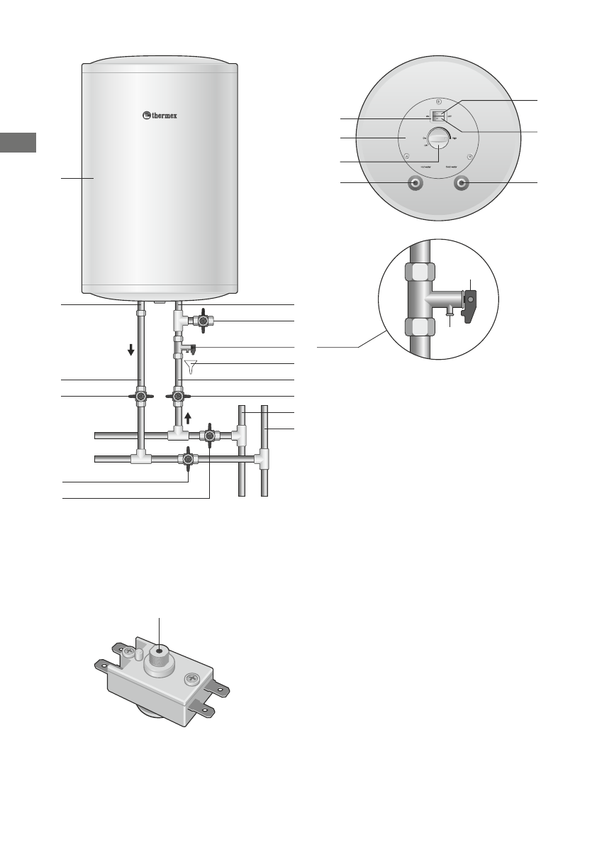
Joonis 1
Ühendusskeem ja juhtosad
1
2
3
4
5
8
9
14
12
13
10
9
11
6
7
2
3
19
20
16
17
18
Joonis 2
Termolüliti nupu asukoht
15
Elektriboileri kere
Sooja vee väljavoolutoru (punase
rõngaga)/
Külma vee sisendtoru (sinise
rõngaga)/
Äravooluventiil
Turvaventiil
Turvaventiili kang
Turvaventiili väljundtoru
Drenaaž kanalisatsiooni
Juurdevoolutoru
Külma vee ventiil
Kuuma vee ventiil
Külmaveetrass
Kuumaveetrass
Kuuma vee sulgurventiil
Külma vee sulgurventiil
Võimsusastmete lüliti
Võimsusaste I - 1,5 kW
Võimsusaste II - 1 kW
Kaitseklapp
Temperatuuri reguleerimishoob
1.
2.
3.
4.
5.
6.
7.
8.
9.
10.
11.
12.
13.
14.
15.
16.
17.
18.
19.
20.
Vajutada
EE
Enne veeboileri esimest kasutust lugege käesolev juhend tähelepanelikult läbi ning
pöörake erilist tähelepanu punktidele, mis on märgistatud sümboliga "TÄHELEPANU!”
Käesolev juhend laieneb veeboileri 30-1
2
0 liitrise mahuga ISP ja IRP mudelitele Soetatud veeboileri
mudeli täisnimetuse leiab veeboileri kerel olevalt märgiskleebiselt.
Tarnekomplekt
Veeboiler
...................................................................
1 tk.
GP-tüüpi turvaventiil
..................................................
1 tk.
Kinnituskonksud
........................................................
2 tk.
Kasutusjuhend
..........................................................
1 tk.
Garantiitalong
...........................................................
1 tk.
Pakend
......................................................................
1 tk.
Kasutusotstarve
Soojaveeboiler (edaspidi veeboiler) on mõeldud vee soojendamiseks ja säilitamiseks kodu- ja
tööstusobjektides, mis on varustatud vajalike parameetritega külmaveetrassiga.
Veeboilerit peab kasutama köetud siseruumides ning see ei ole mõeldud tööks pidevas
läbivoolurežiimis.
Peamised tehnilised näitajad
0
.
05 /
0.6 MPa
2
3
0
V~
, 50
Hz
2
.5
кВт
1/2
“
IPX4
+
3
...+
40°С
+18…+74°С
±5°С
Külmaveetrassi surve, min/max
Vooluvõrk - ühefaasiline, pinge, sagedus
Toruküttekeha (elektritenni) võimsus
Külma ja kuuma vee muhvide diameeter
Veeboileri ohutusklass
Kasutus keskonna temperatuuril vahemikus
Vee kuumutamise temperatuuri reguleerimisvahemik
Veetemperatuuri hoidmise täpsus säilitusrežiimis
Tootja jätab endale õiguse viia veeboileri ülesehitusse ja iseloomustusse muudatusi eelneva
teatamiseta.
Info valmistamiskuupäeva pealekandmisest ja määramise viisist:
Veeboileri väljalaskekuupäev on kodeeritud unikaalsesse seerianumbrisse, mis on näidatud
märgiskleebisel, mis on kleebitud boileri alumisele osale. Seerianumber koosneb kolmeteistkümnest
numbrist. Seerianumbri kolmas ja neljas number märgistavad boileri väljalaskeaastat, viies ja kuues -
väljalaskekuud, seitsmes ja kaheksas - väljalaskepäeva.
Töö põhimõte
Veeboileri kere on löögikindlast plastikust Siseanum valmistatakse kõrgekvaliteetsest roostevabast
terasest, mistõttu mahuti on roostetamiskindel ning pika tööeaga. Siseanuma ja kere vaheline ala on
täidetud vahtpolüuretaaniga - kaasaegse ja keskkonnasõbraliku soojusisolatsiooniga, mis hoiab
EE
39
38













