Водонагреватели Термекс ISP 50 V - инструкция пользователя по применению, эксплуатации и установке на русском языке. Мы надеемся, она поможет вам решить возникшие у вас вопросы при эксплуатации техники.
Если остались вопросы, задайте их в комментариях после инструкции.
"Загружаем инструкцию", означает, что нужно подождать пока файл загрузится и можно будет его читать онлайн. Некоторые инструкции очень большие и время их появления зависит от вашей скорости интернета.

Мал. 1
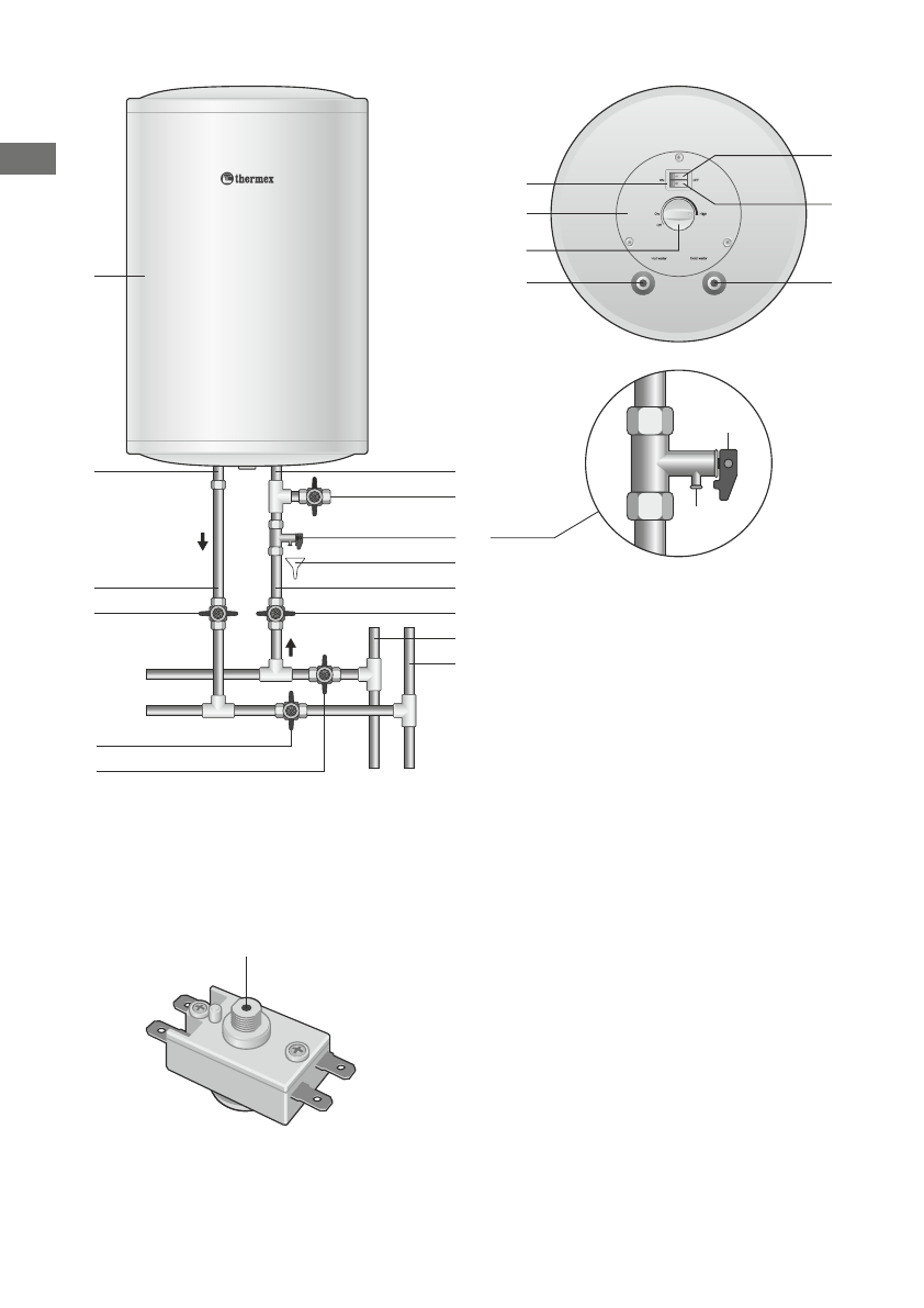
Схема підключення та елементи управління.
1
2
3
4
5
8
9
14
12
13
10
9
11
6
7
2
3
19
20
16
17
18
Мал. 2
Розташування кнопки термовимикача.
15
Зовнішній корпус ЕВН
Патрубок випуску гарячої води
(із червоним кільцем)
Патрубок подачі холодної води
(із синім кільцем)
Зливний вентиль
Запобіжний клапан
Ручка запобіжного клапана
Випускна труба запобіжного
клапана
Дренаж в каналізацію
Підвід
Вентиль подачі холодної води
Вентиль подачі гарячої води
Магістраль холодної води
Магістраль гарячої води
Запірний вентиль гарячої води
Запірний вентиль холодної води
Перемикач режимів потужності
Режим потужності I − 1.5 кВт
Режим потужності II − 1 кВт
Захисна кришка
Ручка регулювання температури
1.
2.
3.
4.
5.
6.
7.
8.
9.
10.
11.
12.
13.
14.
15.
16.
17.
18.
19.
20.
Натиснути
UA
Перед першим використанням електричного накопичувального водонагрівача
уважно прочитайте дане керівництво з експлуатації та зверніть особливу увагу на
пункти, позначені символом «УВАГА!».
Дане керівництво розповсюджується на моделі ISP та IRP обсягом від 30 до 1
2
0 літрів. Повне
найменування моделі придбаного Вами водонагрівача вказане в ідентифікаційній табличці на
корпусі водонагрівача.
Комплект поставки
Водонагрівач
...........................................................
1
шт.
Запобіжний клапан типу GP
....................................
1
шт.
Анкери
.....................................................................
2
шт.
Керівництво з експлуатації
.....................................
1
шт.
Гарантійний талон
..................................................
1
шт.
Упаковка
..................................................................
1
шт.
Призначення
Водонагрівач (далі по тексту ЕВН) призначений для забезпечення гарячою водою побутових і
промислових об'єктів, які мають магістраль холодного водопостачання з необхідними
параметрами.
ЕВН повинен експлуатуватися в закритих опалювальних приміщеннях і не призначений для
роботи в безперервно проточному режимі.
Основні технічні характеристики
0
.
05 /
0.6
МПа
2
3
0 В
~
, 50 Гц
2
.5
кВт
1/2
“
IPX4
+
3
...+
40°С
+18…+74°С
±5°С
Тиск у магістралі холодної води, min/max
Живильна електромережа − однофазна, напруга, частота
Потужність трубчастого електроводонагрівача (ТЕНу)
Діаметр різьблення патрубків підключення холодної та гарячої води
Клас захисту водонагрівача
Робота при температурі навколишнього середовища
Діапазон регулювання температури нагрівання води
Точність підтримання температури в режимі зберігання
Виробник залишає за собою право на внесення змін у конструкцію та характеристики
водонагрівача без попереднього повідомлення.
Інформація про місце нанесення та спосіб визначення дати виробництва:
Дата випуску виробу закодована в унік альному серійному номері, розташованому на
ідентифікаційній табличці (стікері), розташованій у нижній частині на корпусі виробу. Серійний
номер виробу складається з тринадцяти цифр. Третя та четверта цифри серійного номера − рік
випуску, п'ята та шоста − місяць випуску, сьома та восьма − день випуску ЕВН.
UA
21
20