Термекс ISP 30 V - Инструкция по эксплуатации - Страница 20

Водонагреватели Термекс ISP 30 V - инструкция пользователя по применению, эксплуатации и установке на русском языке. Мы надеемся, она поможет вам решить возникшие у вас вопросы при эксплуатации техники.

Если остались вопросы, задайте их в комментариях после инструкции.

"Загружаем инструкцию", означает, что нужно подождать пока файл загрузится и можно будет его читать онлайн. Некоторые инструкции очень большие и время их появления зависит от вашей скорости интернета.
Страница:
/ 64
Загружаем инструкцию
background image

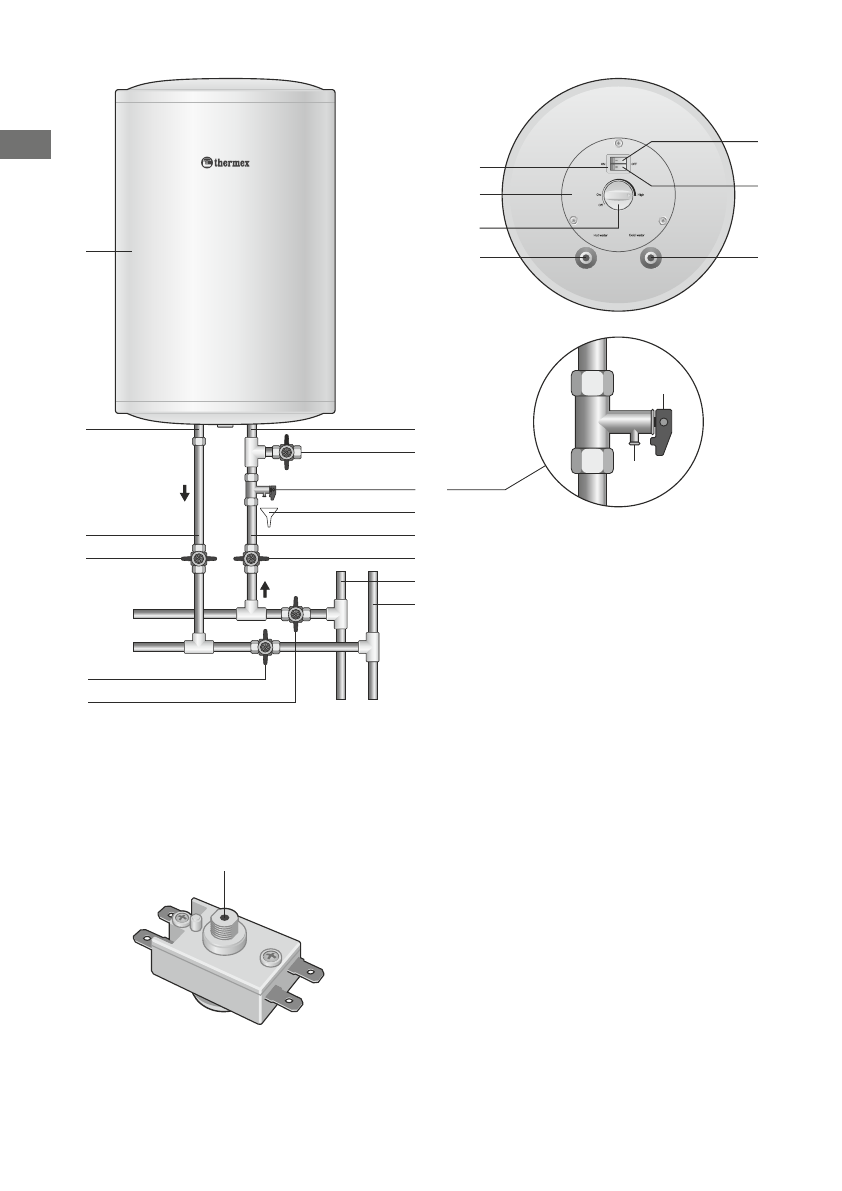
Мал. 1

Схема підключення та елементи управління.

1

2

3

4

5

8

9

14

12

13

10

9

11

6

7

2

3

19

20

16

17

18

Мал. 2

Розташування кнопки термовимикача.

15

Зовнішній корпус ЕВН

Патрубок випуску гарячої води 
(із червоним кільцем)

Патрубок подачі холодної води 
(із синім кільцем)

Зливний вентиль

Запобіжний клапан

Ручка запобіжного клапана

Випускна труба запобіжного 
клапана

Дренаж в каналізацію

Підвід

Вентиль подачі холодної води

Вентиль подачі гарячої води

Магістраль холодної води

Магістраль гарячої води

Запірний вентиль гарячої води

Запірний вентиль холодної води

Перемикач режимів потужності

Режим потужності I − 1.5 кВт

Режим потужності II − 1 кВт

Захисна кришка

Ручка регулювання температури

1.

2.

3.

4.

5.

6.

7.

8.

9.

10.

11.

12.

13.

14.

15.

16.

17.

18.

19.

20.

Натиснути

UA

Перед  першим  використанням  електричного  накопичувального  водонагрівача 
уважно прочитайте дане керівництво з експлуатації та зверніть особливу увагу на 
пункти, позначені символом «УВАГА!».

Дане  керівництво  розповсюджується  на  моделі  ISP  та  IRP  обсягом  від  30  до  1

2

0  літрів.  Повне 

найменування  моделі  придбаного  Вами  водонагрівача  вказане  в  ідентифікаційній  табличці  на 
корпусі водонагрівача.

Комплект поставки

Водонагрівач

...........................................................

1

 

шт.

Запобіжний клапан типу GP

....................................

1

 

шт.

Анкери

.....................................................................

2

 

шт.

Керівництво з експлуатації

.....................................

1

 

шт.

Гарантійний талон

..................................................

1

 

шт.

Упаковка

..................................................................

1

 

шт.

Призначення

Водонагрівач  (далі  по  тексту  ЕВН)  призначений  для  забезпечення  гарячою  водою  побутових  і 
промислових  об'єктів,  які  мають  магістраль  холодного  водопостачання  з  необхідними 
параметрами.

ЕВН  повинен  експлуатуватися  в  закритих  опалювальних  приміщеннях  і  не  призначений  для 
роботи в безперервно проточному режимі.

Основні технічні характеристики

0

.

05 /

 0.6

МПа

2

3

0 В

~

, 50 Гц

2

.5

 кВт

1/2

IPX4

+

3

...+

40°С

+18…+74°С

 ±5°С

Тиск у магістралі холодної води, min/max

Живильна електромережа − однофазна, напруга, частота

Потужність трубчастого електроводонагрівача (ТЕНу)

Діаметр різьблення патрубків підключення холодної та гарячої води

Клас захисту водонагрівача

Робота при температурі навколишнього середовища

Діапазон регулювання температури нагрівання води

Точність підтримання температури в режимі зберігання

Виробник  залишає  за  собою  право  на  внесення  змін  у  конструкцію  та  характеристики 
водонагрівача без попереднього повідомлення.

Інформація про місце нанесення та спосіб визначення дати виробництва:

Дата  випуску  виробу  закодована  в  унік альному  серійному  номері,  розташованому  на 
ідентифікаційній  табличці  (стікері),  розташованій  у  нижній  частині  на  корпусі  виробу.  Серійний 
номер виробу складається з тринадцяти цифр. Третя та четверта цифри серійного номера − рік 
випуску, п'ята та шоста − місяць випуску, сьома та восьма − день випуску ЕВН.

UA

21

20

Полезные видео

Характеристики

Оцените статью
tehnopanorama.ru
Остались вопросы?

Не нашли свой ответ в руководстве или возникли другие проблемы? Задайте свой вопрос в форме ниже с подробным описанием вашей ситуации, чтобы другие люди и специалисты смогли дать на него ответ. Если вы знаете как решить проблему другого человека, пожалуйста, подскажите ему :)

Задать вопрос

Часто задаваемые вопросы
Как посмотреть инструкцию к Термекс ISP 30 V?
Необходимо подождать полной загрузки инструкции в сером окне на данной странице
Руководство на русском языке?
Все наши руководства представлены на русском языке или схематично, поэтому вы без труда сможете разобраться с вашей моделью
Как скопировать текст из PDF?
Чтобы скопировать текст со страницы инструкции воспользуйтесь вкладкой "HTML"