Водонагреватели STIEBEL ELTRON SH 100 A Uni 1.3, 2.6, 3.9 кВт, 230/400 В 975х510х510 мм 073277 - инструкция пользователя по применению, эксплуатации и установке на русском языке. Мы надеемся, она поможет вам решить возникшие у вас вопросы при эксплуатации техники.
Если остались вопросы, задайте их в комментариях после инструкции.
"Загружаем инструкцию", означает, что нужно подождать пока файл загрузится и можно будет его читать онлайн. Некоторые инструкции очень большие и время их появления зависит от вашей скорости интернета.

60
| SH A www.stiebel-eltron.com
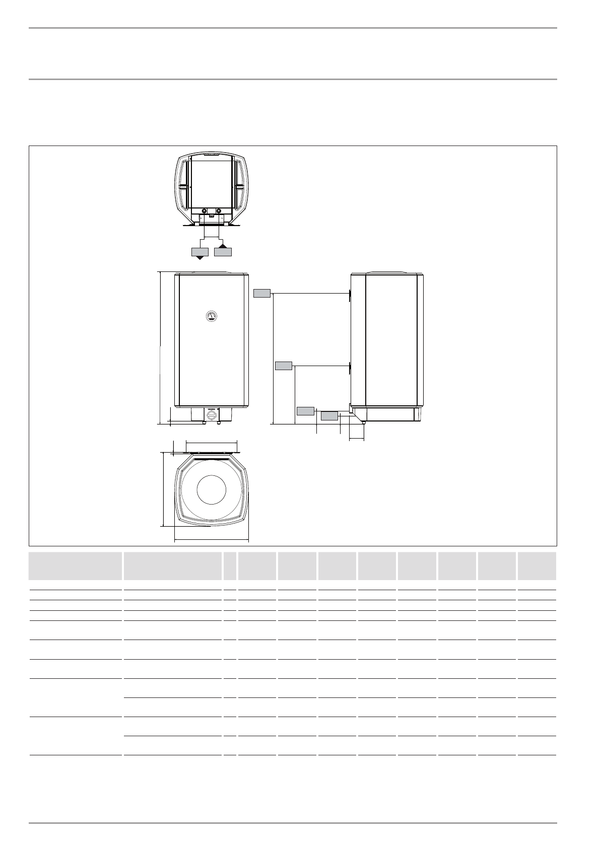
МОНТАЖ
Технические характеристики
15. Технические характеристики
15.1 Размеры и соединения
a10
20
a20
a30
10
350
100
100
87
50
c06 c01
i14
i15
b02 b03
D
00000
24
80
3
SH 50 A 2,0
230
SH 80 A 2,0
230
SH 100 A
2,0 230
SH 120 A
3,0 230
SH 150 A
3,0 230
SH 100 A
UNI 3,9
230/400
SH 120 A
UNI 3,9
230/400
SH 150 A
UNI 3,9
230/400
a10 Прибор
Высота
мм
740
975
975
1100
1280
975
1100
1280
a20 Прибор
Ширина
мм
510
510
510
510
510
510
510
510
a30 Прибор
Глубина
мм
510
510
510
510
510
510
510
510
b02 Кабельный ввод I
Резьбовое соединение
PG 21
PG 21
PG 21
PG 21
PG 21
PG 21
PG 21
PG 21
b03 Ввод для
электропроводки II
c01 Патрубок подачи
холодной воды
Наружная резьба
G 1/2 A
G 1/2 A
G 1/2 A
G 1/2 A
G 1/2 A
G 1/2 A
G 1/2 A
G 1/2 A
c06 Патрубок выхода
горячей воды
Наружная резьба
G 1/2 A
G 1/2 A
G 1/2 A
G 1/2 A
G 1/2 A
G 1/2 A
G 1/2 A
G 1/2 A
i14 Планка для
подвешивания I
Высота
мм
600
900
900
900
1100
900
900
1100
макс. диаметр крепежного
винта
мм
12
12
12
12
12
12
12
12
i15 Настенная
монтажная планка II
Высота
мм
300
300
300
300
макс. диаметр крепежного
винта
мм
12
12
12
12













