Водонагреватели STIEBEL ELTRON SB-VTI 300 200159 - инструкция пользователя по применению, эксплуатации и установке на русском языке. Мы надеемся, она поможет вам решить возникшие у вас вопросы при эксплуатации техники.
Если остались вопросы, задайте их в комментариях после инструкции.
"Загружаем инструкцию", означает, что нужно подождать пока файл загрузится и можно будет его читать онлайн. Некоторые инструкции очень большие и время их появления зависит от вашей скорости интернета.

уСтАНОВкА
технические характеристики
64
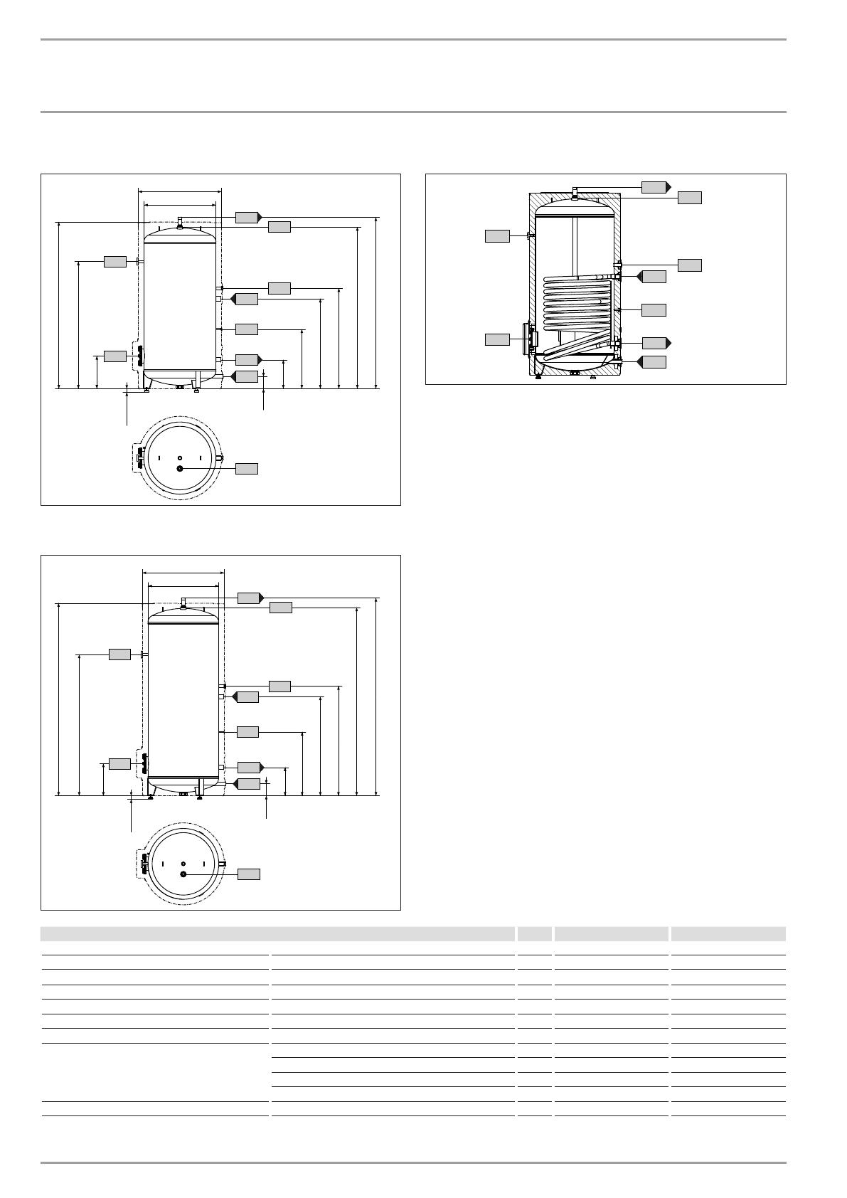
| SB-VTI www.stiebel-eltron.com
SB-VTI 400
650
750
295
1145
11
0
260
810
905
1543
535
1501
1456
i18
c01
d01
i01
h43
h16
c10
d02
i18
c06
22-34
D
00000
82
27
6
SB-VTI 500
650
750
1766
295
1295
11
0
260
585
910
1005
1813
1726
i18
c01
d01
i01
h43
h16
c10
d02
i18
c06
22-34
D
00000
82
27
7
SB-VTI 400
SB-VTI 500
c01 подвод холодной воды
Наружная резьба
G 1
G 1
c06 Выход горячей воды
Наружная резьба
G 1
G 1
c10 Рециркуляция
Наружная резьба
G 3/4
G 3/4
d01 тН подача
Наружная резьба
G 1
G 1
d02 тН обратная линия
Наружная резьба
G 1
G 1
h16 Датчик горячей воды
Диаметр
мм
9,5
9,5
h43 термометр
Диаметр
мм
9,5
9,5
i01 Фланец
Диаметр
мм
180
180
Диаметр окружности центров отверстий
мм
150
150
Винты
M 12
M 12
Момент затяжки
Nm
25
25
i18 Защитный анод
Внутренняя резьба
G 1 1/4
G 1 1/4
Вид в разрезе
c01
d01
i01
h43
h16
c10
d02
i18
c06
D
00000
82
28
7
Содержание
- 3 Техника безопасности
- 4 обслуживание; Образование накипи; Поиск и устранение проблем; уСтАНОВкА; Техника безопасности; Общие указания по технике; Описание устройства; Необходимые принадлежности
- 5 Подготовительные; Штуцер теплообменника
- 6 Монтаж дополнительного
- 7 Подключение воды и установка
- 8 Датчик температуры; Ввод в эксплуатацию; Первый ввод в эксплуатацию; Вывод из эксплуатации
- 9 Техническое обслуживание; Проверка предохранительного клапана
- 10 Технические характеристики; Размеры и соединения
- 12 уСтАНОВкА | ГАРАНтИя | ЗАЩИтА ОкРуЖАЮЩЕЙ СРЕДЫ И утИлИЗАцИя; Характеристики энергопотребления; ГАРАНтИя; Гарантия













