Водонагреватели Stiebel Eltron PSH 50 Universal EL - инструкция пользователя по применению, эксплуатации и установке на русском языке. Мы надеемся, она поможет вам решить возникшие у вас вопросы при эксплуатации техники.
Если остались вопросы, задайте их в комментариях после инструкции.
"Загружаем инструкцию", означает, что нужно подождать пока файл загрузится и можно будет его читать онлайн. Некоторые инструкции очень большие и время их появления зависит от вашей скорости интернета.

РУ
С
С
К
ИЙ
PSH UNIVERSAL EL|
49
МОНТАЖ
ТЕХНИЧЕСКИЕ ХАРАКТЕРИСТИКИ
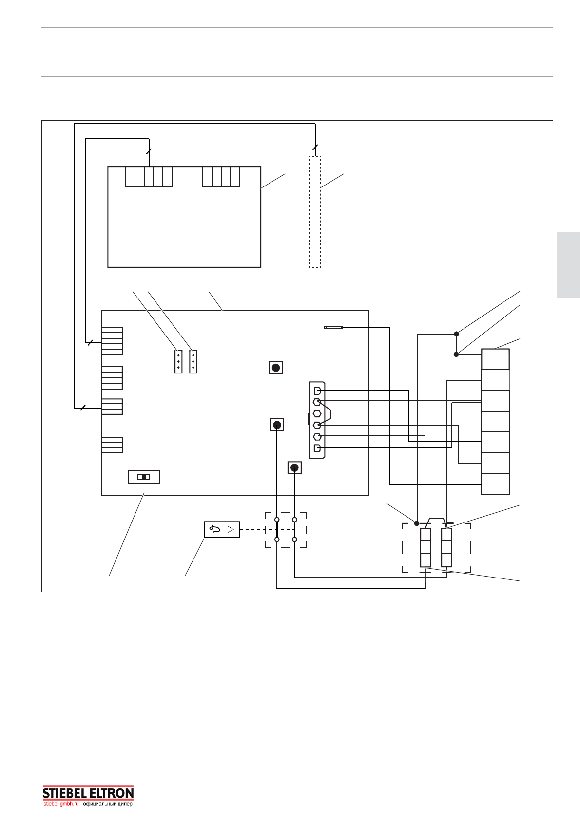
16.2 Электрические схемы и соединения
FB
L1
CB
L3
N
L2
L1
L3
N
L2
PE
5
6
LF
X6
ws
vi
S
E
Z
B
X2
X12
X10
X7
A
E
A
E
X2
X1
X9
R
3
1
12
13
2
5
6
7
9 10
11
8
X2
S
R
S
8
5
_0
2
_0
7
_0
0
2
3
4
1 Анод
2 Резервуар накопителя
3 Клемма подключения к сети
4 Керамический нагревательный элемент в эмалирован-
ной защитной трубе
5 Мощность нагрева
PSH 30 Universal EL: 1,6 кВт ~ 230 В
PSH 50-150 Universal EL: 2 кВт ~ 230 В
6 Дополнительная мощность нагрева 1 кВт ~ 230 В
7 Предохранительный ограничитель температуры
8 Переключатель режимов работы
9 Перемычка режима ECO
10 Перемычка управления рециркуляцией
11 Электронный блок регулирования
12 электронный блок управления
13 Датчик температуры
www.stiebel-gmbh.ru • info@stiebel-gmbh.ru • +7 (495) 565-34-82
г. Москва, Каширский проезд, д. 17, строение 5












