Водонагреватели STIEBEL ELTRON PSH 120 WE-R 236233 - инструкция пользователя по применению, эксплуатации и установке на русском языке. Мы надеемся, она поможет вам решить возникшие у вас вопросы при эксплуатации техники.
Если остались вопросы, задайте их в комментариях после инструкции.
"Загружаем инструкцию", означает, что нужно подождать пока файл загрузится и можно будет его читать онлайн. Некоторые инструкции очень большие и время их появления зависит от вашей скорости интернета.

уСТАНОВкА
Технические характеристики
РУ
СС
КИЙ
www.stiebel-eltron.com
PSH WE |
119
PSH WE-R
d34
d33
c10
i13
b02
b03
c01
c06
265
100
510
520
28
a10
284
557
D
00000
55
32
4
PSH 80 WE-R
PSH 120 WE-R
PSH 150 WE-R
PSH 200 WE-R
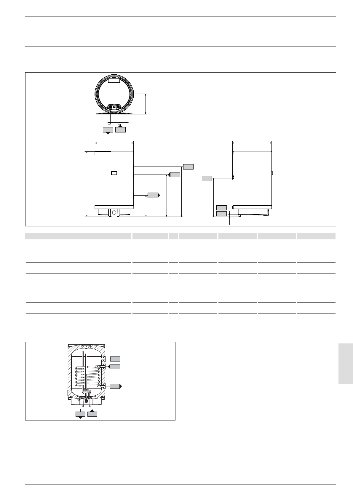
a10 прибор
Высота
мм
871
1178
1410
1715
b02 кабельный ввод для электропроводки I
b03 кабельный ввод для электропроводки II
Резьбовое сое-
динение
PG 16
PG 16
PG 16
PG 16
c01 подвод холодной воды
Наружная
резьба
G 1/2 A
G 1/2 A
G 1/2 A
G 1/2 A
c06 Выпуск горячей воды
Наружная
резьба
G 1/2 A
G 1/2 A
G 1/2 A
G 1/2 A
c10 Рециркуляция
Высота
мм
660
752
907
1112
Наружная
резьба
G 3/4 A
G 3/4 A
G 3/4 A
G 3/4 A
d33 Теплогенератор — подача
Наружная
резьба
G 3/4 A
G 3/4 A
G 3/4 A
G 3/4 A
d34 Теплогенератор — обратная линия
Наружная
резьба
G 3/4 A
G 3/4 A
G 3/4 A
G 3/4 A
i13 Настенная монтажная планка
Высота
мм
505
809
1047
1350
d34
d33
c10
c01
c06
D
00000
37
88
5
Содержание
- 2 СОДЕРЖАНИЕ | СпЕцИАльНыЕ укАзАНИя; СпЕцИАльНыЕ
- 3 ЭкСплуАТАцИя; Указания по технике безопасности
- 4 Техника безопасности
- 5 В период отпуска и отсутствия; обслуживание
- 6 Поиск и устранение проблем; уСТАНОВкА; Техника безопасности; Общие указания по технике; Описание устройства; Комплект поставки
- 7 Подготовительные; Установка настенной монтажной; Подключение к водопроводу
- 8 Электрическое подключение
- 9 Установка индикатора температуры; Ввод в эксплуатацию; Первый ввод в эксплуатацию
- 10 Повторный ввод в эксплуатацию; Вывод из эксплуатации; Техническое обслуживание; Проверка предохранительного клапана
- 11 Удаление накипи; Замена узла регулятора-ограничителя
- 12 Технические характеристики; Размеры и соединения
- 15 Электрическая схема
- 16 Таблица параметров
- 17 ГАРАНТИЯ | ЗАЩИТА ОКРУЖАЮЩЕЙ СРЕДЫ И УТИЛИЗАЦИЯ; ГАРАНТИЯ; Гарантия

 
  
  
  
  
  
  
  
  
  
  
  
  
  
  
  
  
  
 











