Водонагреватели STIEBEL ELTRON PSH 120 Universal EL 2.0/3.0 кВт, 230 В, 1200х475х475 мм 231649 - инструкция пользователя по применению, эксплуатации и установке на русском языке. Мы надеемся, она поможет вам решить возникшие у вас вопросы при эксплуатации техники.
Если остались вопросы, задайте их в комментариях после инструкции.
"Загружаем инструкцию", означает, что нужно подождать пока файл загрузится и можно будет его читать онлайн. Некоторые инструкции очень большие и время их появления зависит от вашей скорости интернета.

48
| PSH UNIVERSAL EL
МОНТАЖ
ТЕХНИЧЕСКИЕ ХАРАКТЕРИСТИКИ
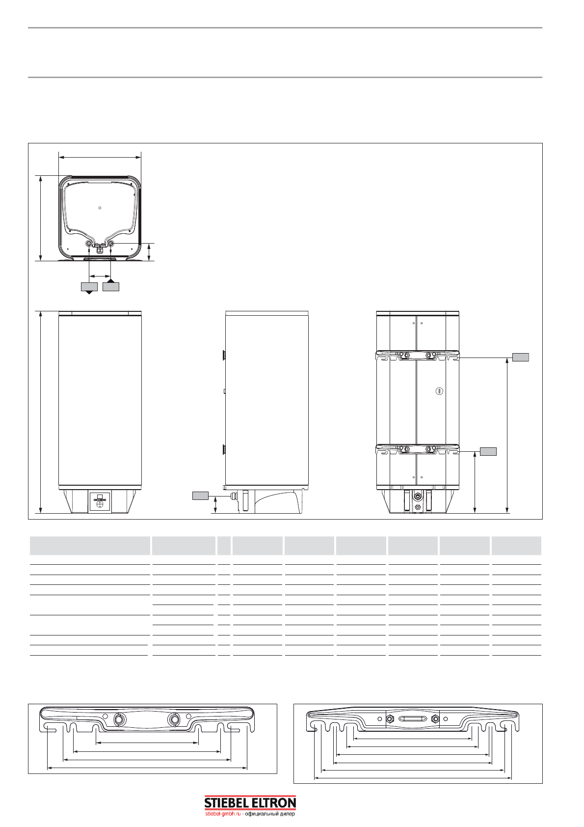
16. Технические характеристики
16.1 Размеры и соединения
D
D
D
F
F
E
L
L
D
00000
1
8
7
0
5
PSH 30
Universal EL
PSH 50
Universal EL
PSH 80
Universal EL
PSH 100
Universal EL
PSH 120
Universal EL
PSH 150
Universal EL
a10 Прибор
Высота
мм
676
931
893
1045
1200
1435
a20 Прибор
Ширина
мм
380
380
475
475
475
475
a30 Прибор
Глубина
мм
380
380
475
475
475
475
b01 Ввод для электропроводки Высота
мм
78,5
78,5
78,5
78,5
78,5
78,5
c01 Подвод холодной воды
Наружная резьба
G ½ A
G ½ A
G ½ A
G ½ A
G ½ A
G ½ A
Расстояние сзади мм
80
80
85
85
85
85
c06 Выпуск. труба горячей воды Наружная резьба
G ½ A
G ½ A
G ½ A
G ½ A
G ½ A
G ½ A
Расстояние сзади мм
80
80
85
85
85
85
i14
Планка для подвешивания 1 Высота
мм
445
705
592
735
870
1090
i15
Планка для подвешивания 2 Высота
мм
210
270
270
300
300
300
Планка для подвешивания
30 - 50 л
8
0
_0
2
_0
7
_0
0
0
5
80 - 150 л
8
0
_
0
2_
0
7
_
0006
www.stiebel-gmbh.ru • info@stiebel-gmbh.ru • +7 (495) 565-34-82
г. Москва, Каширский проезд, д. 17, строение 5













