Водонагреватели STIEBEL ELTRON PER 18/21/24 233990 - инструкция пользователя по применению, эксплуатации и установке на русском языке. Мы надеемся, она поможет вам решить возникшие у вас вопросы при эксплуатации техники.
Если остались вопросы, задайте их в комментариях после инструкции.
"Загружаем инструкцию", означает, что нужно подождать пока файл загрузится и можно будет его читать онлайн. Некоторые инструкции очень большие и время их появления зависит от вашей скорости интернета.

www.stiebel-eltron.com
PER 18/21/24 |
97
РУ
ССКИЙ
УСТАНОВКА
Технические характеристики
Очистить сетчатый фильтр в резьбовом соединении тру-
бопровода холодной воды. Закрыть запорный вентиль в
трубопроводе подачи холодной воды, демонтировать сет-
чатый фильтр, очистить его и установить снова.
15. Технические характеристики
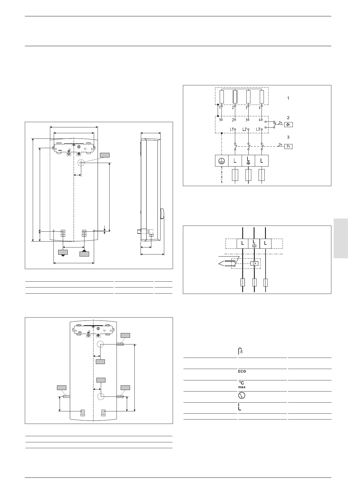
15.1 Размеры и подключения
395
100
485
325
45
5
93
226
190
50
112
190
35
c01
c06
b02
D0000017757
b02 Ввод для электропроводки I
c01 Патрубок холодной воды
Наружная резьба G 1/2 A
c06 Патрубок горячей воды
Наружная резьба G 1/2 A
Варианты подключения
325
50
50
35
40
b03
b02
b04
b04
b04
D0000019778
b02 Ввод для электропроводки I
b03 Ввод для электропроводки II
b04 Ввод для электропроводки III
15.2 Электрические схемы
3/PE ~ 380-415 В
85
�02
�02
�0005
1 Нагрев
2 Предохранительный ограничитель температуры
3 Предохранительный ограничитель давления
Приоритетная схема с LR 1-A
85
�02
�02
�0003
�
2
1
1 Кабель управления к контактору 2-го прибо-
ра (например, электрического накопительного
водонагревателя).
2 Управляющий контакт размыкается при включении
проточного водонагревателя.
15.3 Заводские настройки
Режим «Здоровье»
OFF
Автоматический контроль
расхода воды
OFF / 80 л
ECO
38 °C / 8 л/мин
Защита от детей
OFF / 43,0 °C
Вторая строка дисплея
л/мин
Подсветка
OFF
Подсветка фона
Синий / красный цвет 100 %
Содержание
- 3 ЭКСПЛУАТАЦИЯ; Указания по технике безопасности; Другие обозначения в данной; Единицы измерения; Техника безопасности; Использование по назначению
- 4 Общие указания по технике; Знак технического контроля; Описание устройства
- 5 Настройки и индикация на приборе
- 6 Настройки в меню ИНФОРМАЦИЯ
- 8 Настройка с помощью пульта; Дополнительные функции; обслуживание
- 9 Поиск и устранение проблем
- 10 УСТАНОВКА; Техника безопасности; Общие указания по технике; Описание устройства; Комплект поставки; Подготовительные
- 11 Водопроводные работы; Стандартный монтаж
- 14 Варианты монтажа
- 16 Завершение монтажа; Ввод в эксплуатацию; Первый ввод в эксплуатацию
- 17 Повторный ввод в эксплуатацию; Вывод из эксплуатации
- 18 Режим сервисного обслуживания; Техническое обслуживание
- 19 Технические характеристики; Размеры и подключения; Электрические схемы; Заводские настройки
- 20 Производительность по горячей воде; Возможные неисправности
- 21 Таблицы параметров; ГАРАНТИЯ