Водонагреватели Stiebel Eltron DCE-X 6/8 - инструкция пользователя по применению, эксплуатации и установке на русском языке. Мы надеемся, она поможет вам решить возникшие у вас вопросы при эксплуатации техники.
Если остались вопросы, задайте их в комментариях после инструкции.
"Загружаем инструкцию", означает, что нужно подождать пока файл загрузится и можно будет его читать онлайн. Некоторые инструкции очень большие и время их появления зависит от вашей скорости интернета.

УСТАНОВКА
Техническое обслуживание
56
| DCE-X Premium
www.stiebel-eltron.com
16. Техническое обслуживание
ПРЕДУПРЕЖДЕНИЕ поражение электрическим
током
При любых работах необходимо полное отклю-
чение прибора от сети.
Опорожнение прибора
Для проведения работ по техническому обслуживанию
воду из прибора можно слить.
ПРЕДУПРЕЖДЕНИЕ ожог
Из опорожняемого прибора может вытекать го-
рячая вода.
f
f
Закрыть запорный клапан в трубопроводе подачи хо-
лодной воды.
f
f
Открыть все раздаточные краны.
f
f
Отсоединить трубопроводы подачи воды от прибора.
f
f
Хранить демонтированный прибор в отапливаемом
помещении, поскольку в приборе всегда находятся
остатки воды, которые могут замерзнуть и повредить
его.
Чистка сетчатого фильтра
В случае загрязнения следует очистить сетчатый фильтр
в резьбовом соединении подачи холодной воды. Закрыть
запорный клапан в трубопроводе подачи холодной воды,
демонтировать сетчатый фильтр, очистить его и установить
снова.
17. Технические характеристики
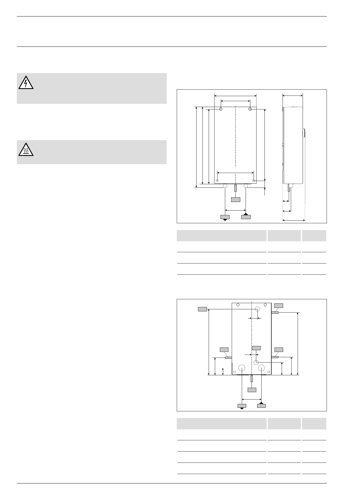
17.1 Размеры и соединения
372
358
343
14
97
217
140
175
100
c01
c06
35
32
109
b02
380
D
00000
73
69
3
DCE-X
Premium
b02 Кабельный ввод для
электропроводки I
Открытый мон-
таж
c01 Подача холодной воды
Наружная
резьба
G 1/2 A
c06 Выпуск горячей воды
Наружная
резьба
G 1/2 A
Варианты подключения
100
c01
c06
b02
72
330
b02
b02
69
35
336
b02
b03
30
61
15
b03
D
00000
73
72
0
DCE-X
Premium
b02 Кабельный ввод для
электропроводки I
Открытый мон-
таж
b03 Кабельный ввод для
электропроводки II
Скрытый мон-
таж
c01 Подача холодной воды
Наружная
резьба
G 1/2 A
c06 Выпуск горячей воды
Наружная
резьба
G 1/2 A
Характеристики
Остались вопросы?Не нашли свой ответ в руководстве или возникли другие проблемы? Задайте свой вопрос в форме ниже с подробным описанием вашей ситуации, чтобы другие люди и специалисты смогли дать на него ответ. Если вы знаете как решить проблему другого человека, пожалуйста, подскажите ему :)