Водонагреватели Stiebel Eltron DCE-S 6/8 - инструкция пользователя по применению, эксплуатации и установке на русском языке. Мы надеемся, она поможет вам решить возникшие у вас вопросы при эксплуатации техники.
Если остались вопросы, задайте их в комментариях после инструкции.
"Загружаем инструкцию", означает, что нужно подождать пока файл загрузится и можно будет его читать онлайн. Некоторые инструкции очень большие и время их появления зависит от вашей скорости интернета.

уСТАНОВкА
Технические характеристики
РУ
СС
КИЙ
www.stiebel-eltron.com
DCE-S Plus |
45
16. Технические характеристики
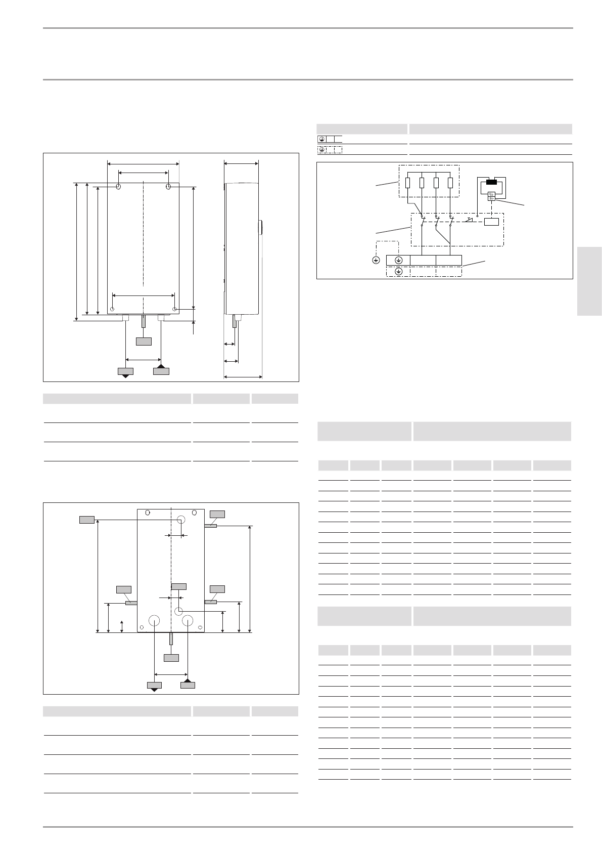
16.1 Размеры и соединения
372
358
343
14
97
217
140
175
100
c01
c06
35
32
109
b02
380
D
00000
73
69
3
DCE-S Plus
b02 кабельный ввод для
электропроводки I
Открытый мон-
таж
c01 подача холодной воды
Наружная
резьба
G 1/2 A
c06 Выпуск горячей воды
Наружная
резьба
G 1/2 A
Варианты подключения
100
c01
c06
b02
72
330
b02
b02
69
35
336
b02
b03
30
61
15
b03
D
00000
73
72
0
DCE-S Plus
b02 кабельный ввод для
электропроводки I
Открытый мон-
таж
b03 кабельный ввод для
электропроводки II
Скрытый мон-
таж
c01 подача холодной воды
Наружная
резьба
G 1/2 A
c06 Выпуск горячей воды
Наружная
резьба
G 1/2 A
16.2 Электрическая схема
DCE-S Plus
L L
2/GRD ~ 220–240 В
L N
1/N/PE ~ 220–240 В
N
L
L
L
D
00000
77
99
1
1
3
4
2
1 Силовая электроника со встроенным предохранитель-
ным выключателем
2 Нагревательная система со спиральным элементом
3 предохранительный ограничитель температуры
4 клемма подключения к сети
16.3 Производительность по горячей воде
производительность по горячей воде зависит от напряже-
ния в сети, потребляемой мощности прибора и темпера-
туры холодной воды на входе. Номинальное напряжение
и номинальная мощность указаны на заводской табличке.
потребляемая мощность,
кВт
производительность по горячей воде
(38 °C) л/мин.
Номинальное напряже-
ние
Температура холодной воды на входе
220 В
230 В
240 В
5 °C
10 °C
15 °C
20 °C
6,0
2,6
3,1
3,7
4,8
8,0
3,5
4,1
5,0
6,3
6,6
2,9
3,4
4,1
5,2
8,7
3,8
4,4
5,4
6,9
7,2
3,1
3,7
4,5
5,7
9,6
4,2
4,9
6,0
7,6
10,0
4,3
5,1
6,2
7,9
12,0
5,2
6,1
7,5
9,5
11,0
4,8
5,6
6,8
8,7
13,1
5,7
6,7
8,1
10,4
12,0
5,2
6,1
7,5
9,5
14,3
6,2
7,3
8,9
11,3
потребляемая мощность,
кВт
производительность по горячей воде
(50 °C) л/мин.
Номинальное напряже-
ние
Температура холодной воды на входе
220 В
230 В
240 В
5 °C
10 °C
15 °C
20 °C
6,0
1,9
2,1
2,4
2,9
8,0
2,5
2,9
3,3
3,8
6,6
2,1
2,4
2,7
3,1
8,7
2,8
3,1
3,6
4,1
7,2
2,3
2,6
2,9
3,4
9,6
3,0
3,4
3,9
4,6
10,0
3,2
3,6
4,1
4,8
12,0
3,8
4,3
4,9
5,7
11,0
3,5
3,9
4,5
5,2
13,1
4,2
4,7
5,3
6,2
12,0
3,8
4,3
4,9
5,7
14,3
4,5
5,1
5,8
6,8
Характеристики
Остались вопросы?Не нашли свой ответ в руководстве или возникли другие проблемы? Задайте свой вопрос в форме ниже с подробным описанием вашей ситуации, чтобы другие люди и специалисты смогли дать на него ответ. Если вы знаете как решить проблему другого человека, пожалуйста, подскажите ему :)