Водонагреватели Royal Clima RWH-V30-RE - инструкция пользователя по применению, эксплуатации и установке на русском языке. Мы надеемся, она поможет вам решить возникшие у вас вопросы при эксплуатации техники.
Если остались вопросы, задайте их в комментариях после инструкции.
"Загружаем инструкцию", означает, что нужно подождать пока файл загрузится и можно будет его читать онлайн. Некоторые инструкции очень большие и время их появления зависит от вашей скорости интернета.

13
Способы монтажа водонагревателя
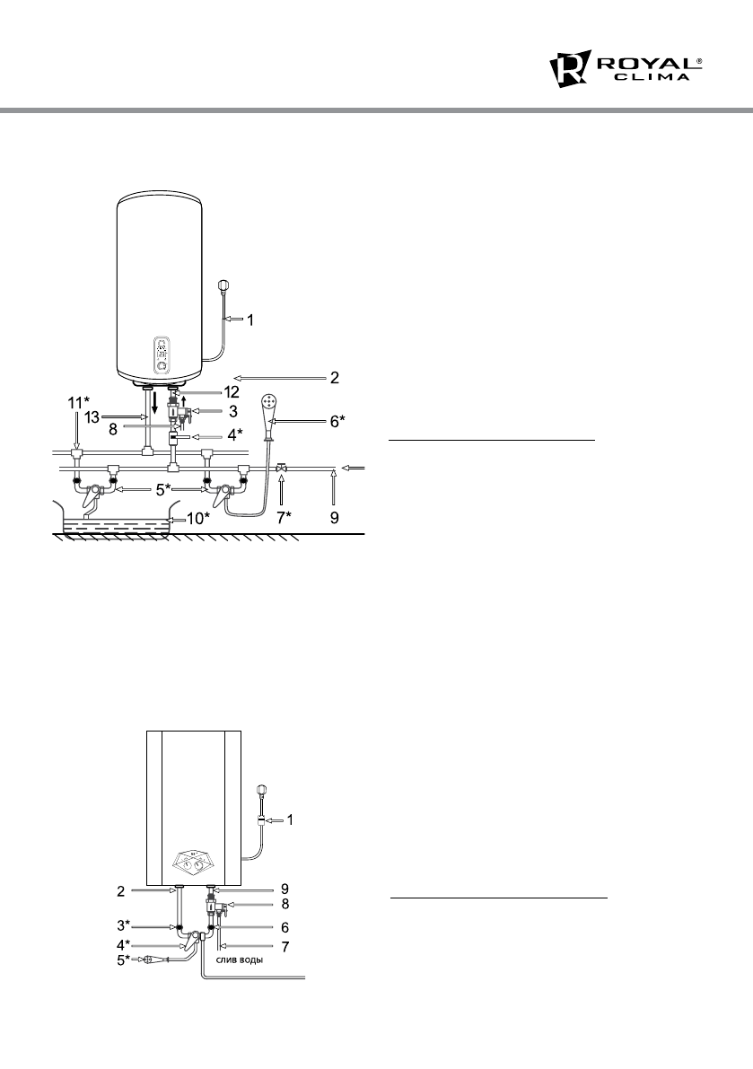
Способ монтажа водонагревателя для нескольких точек потребления представлен на рис. 6.
Рис. 6
1. Сетевой шнур с вилкой
2. Смонтированный водонагреватель
3. Комбинированный предохранительный
клапан
4. Кран входа холодной воды*
5. Смеситель*
6. Душевая насадка*
7. Отсечной кран водопроводной магистрали
8. Сливная трубка
9. Водопроводная магистраль
10. Ванна*
11. Тройник*
12. Входной патрубок
13. Выходной патрубок
* Не входит в комплект поставки
Способы монтажа водонагревателя
Способ монтажа водонагревателя для одной точки потребления представлен на рис. 7.
Рис. 7
1. Сетевой шнур с вилкой и УЗО
2. Выходной патрубок
3. Кран регулировки потока горячей воды*
4. Смеситель*
5. Душевая насадка*
6. Кран регулировки потока холодной воды
7. Сливная трубка
8. Комбинированный предохранительный
клапан
9. Входной патрубок
* Не входит в комплек т поставки
Модели Diamante Сollezione, Diamante Inox Сollezione, и
Diamante Inox Collezione Orizzonte
УСТАНОВКА ВОДОНАГРЕВАТЕЛЯ
слив воды
холодная вода
слив воды
Содержание
- 3 ИСПОЛЬЗУЕМЫЕ ОБОЗНАЧЕНИЯ
- 4 ПРАВИЛА БЕЗОПАСНОСТИ
- 5 НАЗНАЧЕНИЕ
- 6 УСТРОЙСТВО ВОДОНАГРЕВАТЕЛЯ; Серии Viva
- 7 Серия Diamante Сollezione, Diamante Inox Сollezione
- 8 ТЕХНИЧЕСКИЕ ХАРАКТЕРИСТИКИ; ТЕХНИЧЕСКИЕ Х АРАКТЕРИСТИКИ
- 12 УСТАНОВК А ВОДОНАГРЕВАТЕЛЯ; Способы монтажа водонагревателя; Серия Viva; УСТАНОВКА ВОДОНАГРЕВАТЕЛЯ
- 13 Модели Diamante Сollezione, Diamante Inox Сollezione, и
- 14 Монтаж водонагревателя
- 15 Подключение к водопроводной
- 16 УЗО (устройство защитного
- 17 ЭКСПЛУАТАЦИЯ ВОДОНАГРЕВАТЕЛЯ; Включение водонагревателя; Выбор режима мощности
- 18 Выключение; «heat»; Серии Diamante Сollezione,
- 19 ПОИСК И УСТРАНЕНИЕ НЕИСПРАВНОСТЕЙ; ОБСЛУ ЖИВАНИЕ ВОДОНАГРЕВАТЕЛЯ
- 20 ПОИСК И УСТРАНЕНИЕ НЕИСПРАВНОСТЕЙ; ХРАНЕНИЕ И ТРАНСПОРТИРОВК А; ХРАНЕНИЕ И ТРАНСПОРТИРОВКА; ДАТА ИЗГОТОВЛЕНИЯ
- 21 ЭЛЕКТРИЧЕСК АЯ ПРИНЦИПИА ЛЬНАЯ СХЕМА; Для моделей серии Viva; ЭЛЕКТРИЧЕСКАЯ ПРИНЦИПИАЛЬНАЯ СХЕМА; ПРАВИЛА У ТИЛИЗАЦИИ
- 22 СЕРТИФИК АЦИЯ ПРОДУКЦИИ; Товар сертифицирован на терри тории; Срок действия
- 23 щей организации; ПОДПИСЬ ПОКУПАТЕЛЯ; ГАРАНТИЙНЫЕ ОБЯЗАТЕЛЬСТВА
- 24 Уважаемый Покупатель!; Гарантийный срок на водонагреватели составляет:
- 26 Информация о гарантийных ремонтах (заполняется авторизованным