Водонагреватели ROYAL Clima RWH-ST30-FS - инструкция пользователя по применению, эксплуатации и установке на русском языке. Мы надеемся, она поможет вам решить возникшие у вас вопросы при эксплуатации техники.
Если остались вопросы, задайте их в комментариях после инструкции.
"Загружаем инструкцию", означает, что нужно подождать пока файл загрузится и можно будет его читать онлайн. Некоторые инструкции очень большие и время их появления зависит от вашей скорости интернета.

7
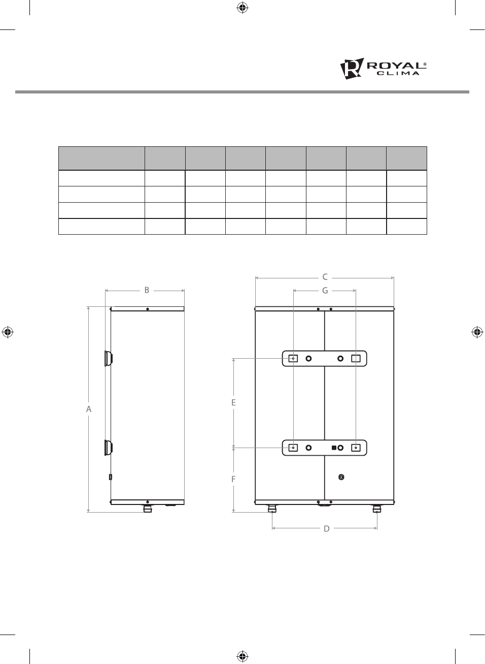
ТЕХНИЧЕСКИЕ ХАРАКТЕРИСТИКИ
Рис. 3
6. ТЕХНИЧЕСКИЕ Х АРАКТЕРИСТИКИ
Размерные характеристики водонагревателя в мм приведены ниже:
STELLA Inox
Объем, л
A
B
C
D
E
F
G
RWH-ST30-FS, 30 л
580
250
435
330
280
175
196
RWH-ST50-FS, 50 л
850
250
435
330
550
175
196
RWH-ST80-FS, 80 л
810
335
555
440
430
215
196
RWH-ST100-FS, 100 л
995
335
555
440
600
215
196
Содержание
- 3 ИСПОЛЬЗУЕМЫЕ ОБОЗНАЧЕНИЯ
- 4 ПРАВИЛА БЕЗОПАСНОСТИ
- 5 НАЗНАЧЕНИЕ
- 7 ТЕХНИЧЕСКИЕ ХАРАКТЕРИСТИКИ; ТЕХНИЧЕСКИЕ Х АРАКТЕРИСТИКИ; Размерные характеристики водонагревателя в мм приведены ниже:
- 9 УСТАНОВКА ВОДОНАГРЕВАТЕЛЯ; УСТАНОВК А ВОДОНАГРЕВАТЕЛЯ; Способы монтажа водонагревателя
- 11 Подключение к водопроводной
- 13 ЭКСПЛУАТАЦИЯ ВОДОНАГРЕВАТЕЛЯ; Включение водонагревателя
- 14 ОБСЛУЖИВАНИЕ ВОДОНАГРЕВАТЕЛЯ; ОБСЛУ ЖИВАНИЕ ВОДОНАГРЕВАТЕЛЯ
- 15 ПОИСК И УСТРАНЕНИЕ НЕИСПРАВНОСТЕЙ; ХРАНЕНИЕ И ТРАНСПОРТИРОВК А
- 16 ЭЛЕКТРИЧЕСКАЯ ПРИНЦИПИАЛЬНАЯ СХЕМА; ПРАВИЛА У ТИЛИЗАЦИИ; Товар сертифицирован на терри тории
- 19 щей организации; ПОДПИСЬ ПОКУПАТЕЛЯ; ГАРАНТИЙНЫЕ ОБЯЗАТЕЛЬСТВА
- 20 Уважаемый Покупатель!; Гарантийный срок на водонагреватели составляет:
- 22 Информация о гарантийных ремонтах (заполняется авторизованным