Водонагреватели ROYAL Clima RWH-SI30-FS - инструкция пользователя по применению, эксплуатации и установке на русском языке. Мы надеемся, она поможет вам решить возникшие у вас вопросы при эксплуатации техники.
Если остались вопросы, задайте их в комментариях после инструкции.
"Загружаем инструкцию", означает, что нужно подождать пока файл загрузится и можно будет его читать онлайн. Некоторые инструкции очень большие и время их появления зависит от вашей скорости интернета.

19
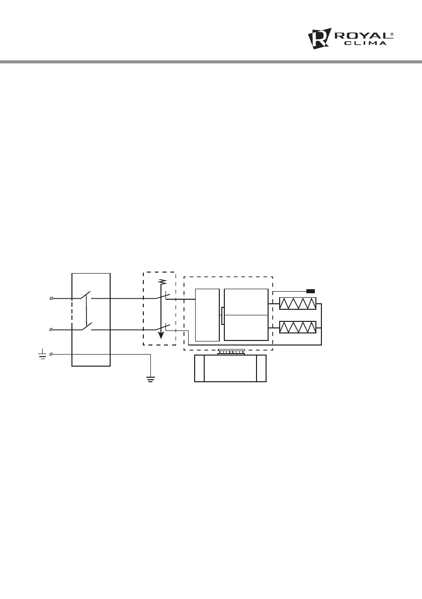
ЭЛЕКТРИЧЕСКАЯ ПРИНЦИПИАЛЬНАЯ СХЕМА
16. ЭЛЕКТРИЧЕСК АЯ ПРИНЦИПИА ЛЬНАЯ СХЕМА
Рис. 11
Tермовыключатель
Исполнительный бак
Датчик t
°
Реле 1
L
N
Реле 2
Реле 3
Нагревательный
элемент 1
Нагревательный
элемент 2
Блок управления
(программатор
контр. t
°
и тд.)
15. ПРАВИЛА У ТИЛИЗАЦИИ
По истечению срока службы прибор должен
подвергаться утилизации в соответствии
с нормами, правилами и способами, дейст-
вующими в месте утилизации. Подробную
информацию по утилизации вы можете полу-
чить у представителя местного органа власти.  
Изготовитель и уполномоченное лицо изго-
товителя снимают с себя ответственность
за возможный вред, нанесенный данным
прибором в случае, если это произошла в ре-
зультате несоблюдения правил и условий экс-
плуатации, установки прибора, умышленных
или неосторожных действий, а также в случа-
ях вызванных природными или антропогенны-
ми форсмажорными явлениями.

 
  
  
  
  
  
  
  
  
  
  
  
  
  
  
  
  
  
  
  
  
  
  
  
  
  
  
  
 











