Водонагреватели Royal Clima RWH-GA100-RE - инструкция пользователя по применению, эксплуатации и установке на русском языке. Мы надеемся, она поможет вам решить возникшие у вас вопросы при эксплуатации техники.
Если остались вопросы, задайте их в комментариях после инструкции.
"Загружаем инструкцию", означает, что нужно подождать пока файл загрузится и можно будет его читать онлайн. Некоторые инструкции очень большие и время их появления зависит от вашей скорости интернета.

8
9
холодная вода
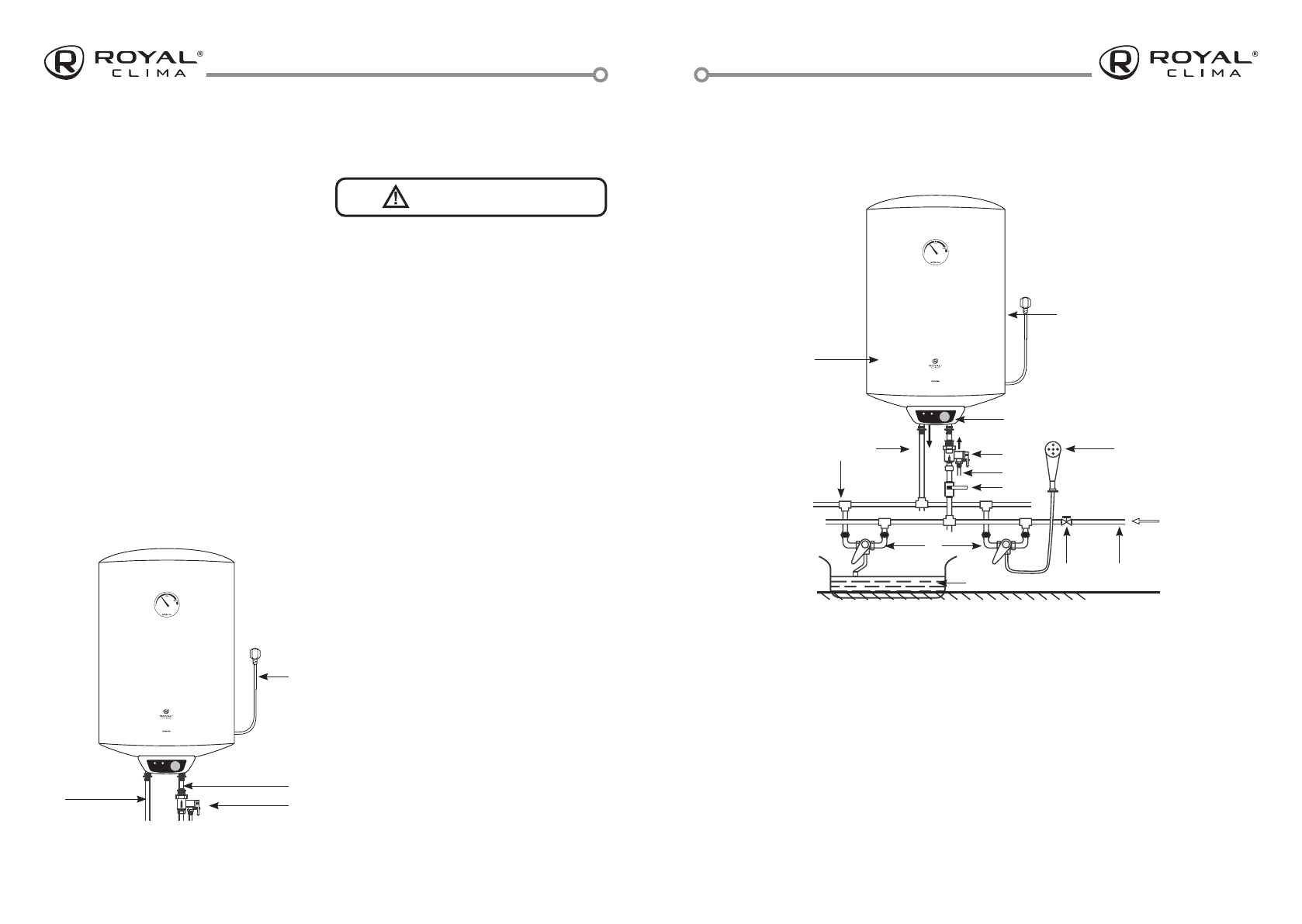
Способ монтажа водонагревателя для нескольких точек потребления
представлен на рис 4
Рис 4
1 Сетевой шнур с вилкой
2 Смонтированный водонагреватель
3 Комбинированный предохранительный
клапан
4 Кран входа холодной воды*
5 Смеситель*
6 Душевая насадка*
7 Отсечной кран водопроводной магистрали
* Не входит в комплект поставки
8 Сливная трубка
9 Водопроводная магистраль
10 Ванна*
11 Тройник*
12 Входной патрубок
13 Выходной патрубок
1
11
7
9
13
6
3
8
4
5
12
10
2
УСТАНОВКА
1 Водонагреватель следует устанавливать
на прочной стене Стена, на которой
устанавливается электрический водо-
нагреватель, должна выдерживать как
минимум двойной вес водонагревате-
ля, полностью заполненного водой, на
стене должны отсутствовать трещины и
другие повреждения В противном слу-
чае необходимо принять меры для уси-
ления крепления или установить водо-
нагреватель на специальной опоре
2 Если ванная комната слишком малень-
кая, водонагреватель можно установить
в другом месте, закрытом от прямого сол-
нечного света и недоступном для попада-
ния влаги Однако для снижения потерь
тепла в трубопроводах место установки
водонагревателя должно находиться как
можно ближе к месту использования го-
рячей воды
холодная вода
1 Сетевой шнур с вилкой
2 Выходной патрубок горячей воды
3 Входной патрубок холодной воды
4 Комбинированный предохранительный
клапан
1
3
4
2
Способы монтажа водонагревателя
Способ монтажа водонагревателя для одной точки потребления представлен на рис 3
Рис 3
Водонагреватель должен быть
установлен на вертикальную стену
строго в вертикальном положении
Установка прибора в любом другом
положении или перекос относительно
вертикали неизбежно приведет к выходу
водонагревателя из строя, созданию
аварийной обстановки и рассматривается
производителем как негарантийный случай
ВНИМАНИЕ!













