Водонагреватели Royal Clima RWH-DIC80-FS - инструкция пользователя по применению, эксплуатации и установке на русском языке. Мы надеемся, она поможет вам решить возникшие у вас вопросы при эксплуатации техники.
Если остались вопросы, задайте их в комментариях после инструкции.
"Загружаем инструкцию", означает, что нужно подождать пока файл загрузится и можно будет его читать онлайн. Некоторые инструкции очень большие и время их появления зависит от вашей скорости интернета.

13
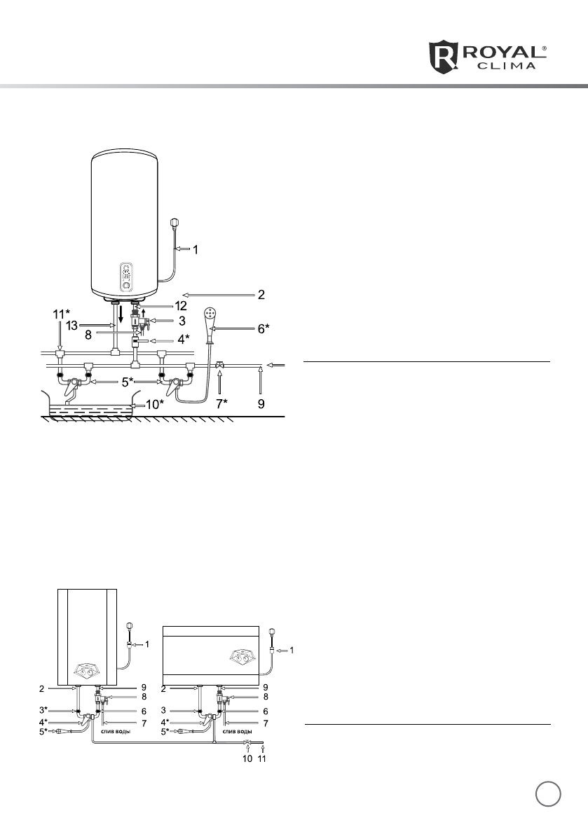
Способы монтажа водонагревателя
Способ монтажа водонагревателя для нескольких точек потребления представлен на рис. 7.
Рис. 7
1
Сетевой шнур с вилкой
2
Смонтированный водонагреватель
3
Комбинированный предохранительный
клапан
4
Кран входа холодной воды*
5
Смеситель*
6
Душевая насадка*
7
Отсечной кран водопроводной магистрали
8
Сливная трубка
9
Водопроводная магистраль
10
Ванна*
11
Тройник*
12
Входной патрубок
13
Выходной патрубок
* Не входит в комплект поставки
Способы монтажа водонагревателя
Способ монтажа водонагревателя для одной точки потребления представлен на рис. 8.
Рис. 8
1
Сетевой шнур с вилкой и УЗО
2
Выходной патрубок
3
Кран регулировки потока горячей воды*
4
Смеситель*
5
Душевая насадка*
6
Кран регулировки потока холодной воды
7
Сливная трубка
8
Комбинированный предохранительный клапан
9
Входной патрубок
10
Отсечной кран водопроводной магистрали
11
Водопроводная магистраль
* Не входит в комплект поставки
Модели Diamante Сollezione, Diamante Inox Сollezione, и Diamante
Inox Collezione Orizzonte
УСТАНОВКА ВОДОНАГРЕВАТЕЛЯ
слив воды
холодная вода
слив воды













