Водонагреватели Royal Clima RWH-BI30-FS - инструкция пользователя по применению, эксплуатации и установке на русском языке. Мы надеемся, она поможет вам решить возникшие у вас вопросы при эксплуатации техники.
Если остались вопросы, задайте их в комментариях после инструкции.
"Загружаем инструкцию", означает, что нужно подождать пока файл загрузится и можно будет его читать онлайн. Некоторые инструкции очень большие и время их появления зависит от вашей скорости интернета.

6
7
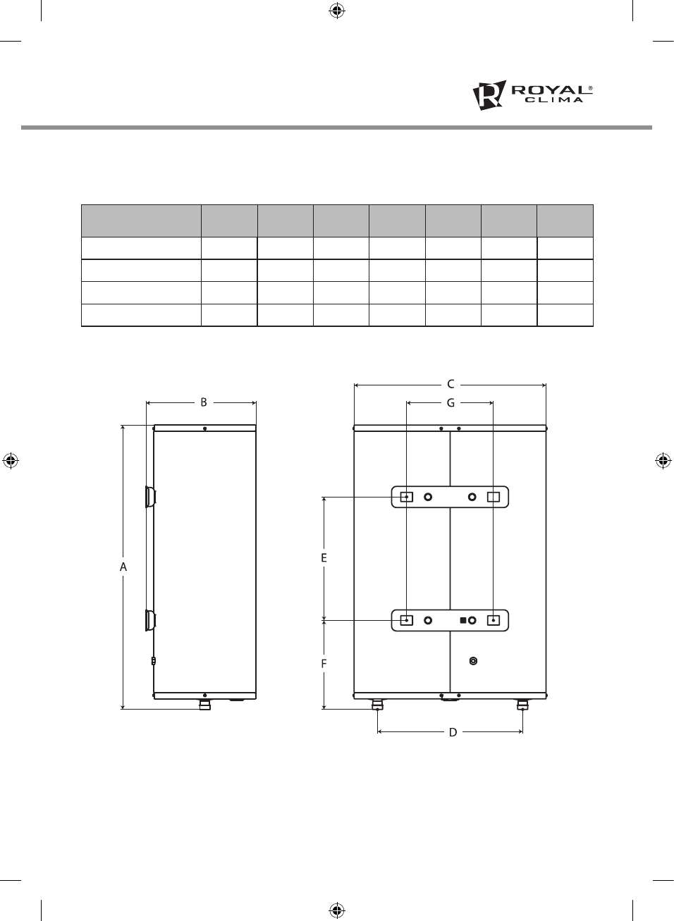
ТЕХНИЧЕСКИЕ ХАРАКТЕРИСТИКИ
Рис. 3
6. ТЕХНИЧЕСКИЕ Х АРАКТЕРИСТИКИ
Размерные характеристики водонагревателей в мм приведены ниже:
BETTA Inox
Объем, л
A
B
C
D
E
F
G
RWH-BI30-FS, 30 л
635
260
435
330
280
200
196
RWH-BI50-FS, 50 л
970
260
435
330
550
200
196
RWH-BI80-FS, 80 л
890
350
555
440
430
267
196
RWH-BI100-FS, 100 л
1075
350
555
440
600
267
196
Содержание
- 3 ИСПОЛЬЗУЕМЫЕ ОБОЗНАЧЕНИЯ
- 4 ПРАВИЛА БЕЗОПАСНОСТИ
- 5 НАЗНАЧЕНИЕ
- 7 ТЕХНИЧЕСКИЕ ХАРАКТЕРИСТИКИ; ТЕХНИЧЕСКИЕ Х АРАКТЕРИСТИКИ; Размерные характеристики водонагревателей в мм приведены ниже:
- 8 • Водонагреватель − 1 шт.
- 9 УСТАНОВКА ВОДОНАГРЕВАТЕЛЯ; УСТАНОВК А ВОДОНАГРЕВАТЕЛЯ; Способы монтажа водонагревателя
- 11 Подключение к водопроводной
- 12 Подключение к электрической сети
- 13 ЭКСПЛУАТАЦИЯ ВОДОНАГРЕВАТЕЛЯ; Включение водонагревателя
- 14 ОБСЛУЖИВАНИЕ ВОДОНАГРЕВАТЕЛЯ; ОБСЛУ ЖИВАНИЕ ВОДОНАГРЕВАТЕЛЯ
- 15 ПОИСК И УСТРАНЕНИЕ НЕИСПРАВНОСТЕЙ; ХРАНЕНИЕ И ТРАНСПОРТИРОВК А
- 16 СЕРТИФИКАЦИЯ ПРОДУКЦИИ; ПРАВИЛА У ТИЛИЗАЦИИ; Товар сертифицирован на терри тории
- 17 ГАРАНТИЙНЫЕ ОБЯЗАТЕЛЬСТВА
- 18 Уважаемый Покупатель!; Гарантийный срок на водонагреватели составляет:
- 20 Информация о гарантийных ремонтах (заполняется авторизованным













