Royal Clima ALFA RWH-A30-FE 112255 - Инструкция по эксплуатации - Страница 7

Водонагреватели Royal Clima ALFA RWH-A30-FE 112255 - инструкция пользователя по применению, эксплуатации и установке на русском языке. Мы надеемся, она поможет вам решить возникшие у вас вопросы при эксплуатации техники.

Если остались вопросы, задайте их в комментариях после инструкции.

"Загружаем инструкцию", означает, что нужно подождать пока файл загрузится и можно будет его читать онлайн. Некоторые инструкции очень большие и время их появления зависит от вашей скорости интернета.
Страница:
/ 26
Загружаем инструкцию
background image

6

ALFA

НАГРЕВ

ПОДДЕРЖАНИЕ t°

Like

МАКС.

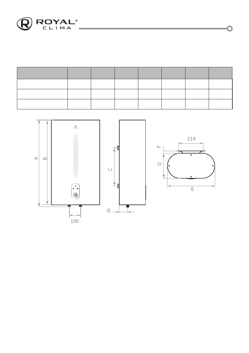
Рис  2

Основные размеры

ALFA  

Объем, л

A

B

C

D

E

F

G

RWH-A30-FE, 30 л

655

635

250

248

458

20

75

RWH-A50-FE, 50 л

950

930

450

248

458

20

75

RWH-A80-FE, 80 л

960

940

405

297

562

20

93,5

ТЕХНИЧЕСКИЕ ХАРАКТЕРИСТИКИ

Полезные видео

Характеристики

Оцените статью
tehnopanorama.ru
Остались вопросы?

Не нашли свой ответ в руководстве или возникли другие проблемы? Задайте свой вопрос в форме ниже с подробным описанием вашей ситуации, чтобы другие люди и специалисты смогли дать на него ответ. Если вы знаете как решить проблему другого человека, пожалуйста, подскажите ему :)

Задать вопрос

Часто задаваемые вопросы
Как посмотреть инструкцию к Royal Clima ALFA RWH-A30-FE 112255?
Необходимо подождать полной загрузки инструкции в сером окне на данной странице
Руководство на русском языке?
Все наши руководства представлены на русском языке или схематично, поэтому вы без труда сможете разобраться с вашей моделью
Как скопировать текст из PDF?
Чтобы скопировать текст со страницы инструкции воспользуйтесь вкладкой "HTML"