Водонагреватели Protherm B500S - инструкция пользователя по применению, эксплуатации и установке на русском языке. Мы надеемся, она поможет вам решить возникшие у вас вопросы при эксплуатации техники.
Если остались вопросы, задайте их в комментариях после инструкции.
"Загружаем инструкцию", означает, что нужно подождать пока файл загрузится и можно будет его читать онлайн. Некоторые инструкции очень большие и время их появления зависит от вашей скорости интернета.

7
Ø b
D
B
J
I
H
G
F
E
t
C
A
2
1
7
6
5
4
3
8
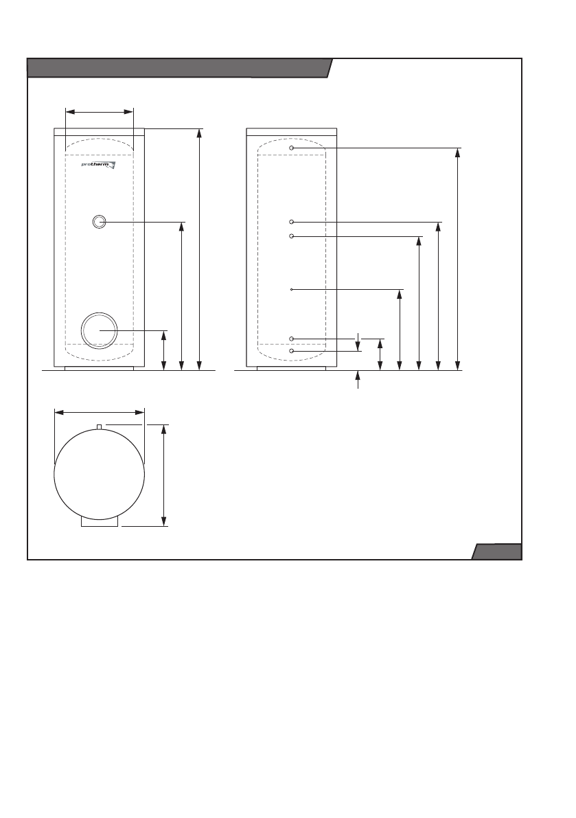
Присоединительные размеры накопительного бака
Рис.1
Обозначения:
1 Подключение нагревательного патрона
(G1 1/2)
2 Контрольное отверстие (O 120)
3 Выход горячей водопроводной воды (R1)
4 Подключение циркуляционной системы
(R3/4)
5 Вход отопительной воды (R1)
6 Патрон датчика отопления (O 12)
7 Выход отопительной воды (R1)
8 Вход холодной водопроводной воды