Водонагреватели Polaris FDS-100V - инструкция пользователя по применению, эксплуатации и установке на русском языке. Мы надеемся, она поможет вам решить возникшие у вас вопросы при эксплуатации техники.
Если остались вопросы, задайте их в комментариях после инструкции.
"Загружаем инструкцию", означает, что нужно подождать пока файл загрузится и можно будет его читать онлайн. Некоторые инструкции очень большие и время их появления зависит от вашей скорости интернета.

46
*FDS (FD) –POLARIS
сауда
белгісінің
жинақтауыш
типті
электр
сужылытқыш
(
тот
баспайтын
болаттан
жасалған
бөшкесімен
).
.
**
Қорғаныс
жіктелімі
– I.
Ескертпе
:
электрэнергиясын
нақты
тұтынуы
,
пайдалану
режиміне
жəне
қоршаған
орта
жағдайларына
байланысты
.
FD-20V
Электр
энергиясын
жыл
бойы
тұтынуы
(
Е
),
кВт
сағ
Бір
тəуліктік
ішіндегі
шығын
(Q),
кВт
сағ
/
тəу
FD-20V
276
0,7
FDS-50V
411
1,1
FDS-80V
502
1,3
FDS-100V
441
1,2
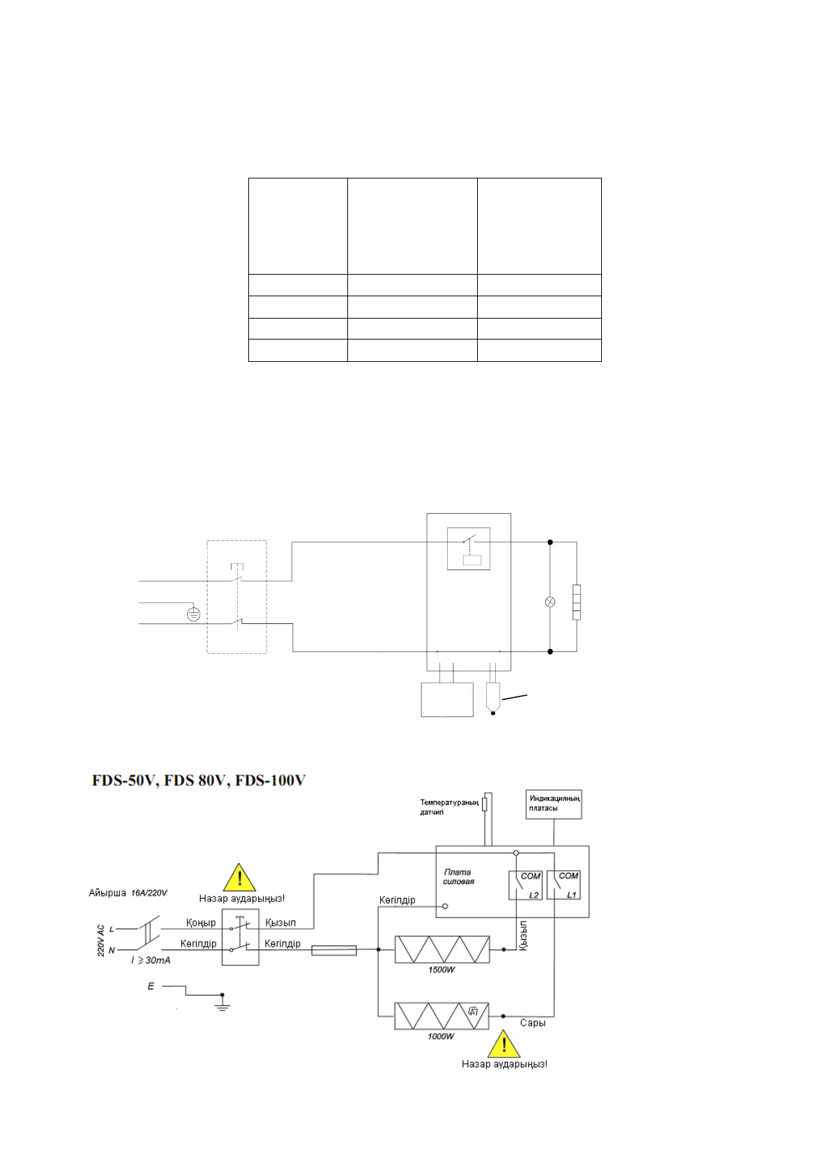
220
В
Сары
/
жасыл
Күюден
сақтау
Қара
қошқыл
Көкшіл
к
Басқару
жады
Қызыл
Көкшіл
Ин
ди
каторл
ы
қ
шам
Жы
лытқ
ыш
элеме
нт
Цифрлық
дисплей
Температура
датчигі
Характеристики
Остались вопросы?Не нашли свой ответ в руководстве или возникли другие проблемы? Задайте свой вопрос в форме ниже с подробным описанием вашей ситуации, чтобы другие люди и специалисты смогли дать на него ответ. Если вы знаете как решить проблему другого человека, пожалуйста, подскажите ему :)