Водонагреватели PHILIPS AWH1615/51(30YB) - инструкция пользователя по применению, эксплуатации и установке на русском языке. Мы надеемся, она поможет вам решить возникшие у вас вопросы при эксплуатации техники.
Если остались вопросы, задайте их в комментариях после инструкции.
"Загружаем инструкцию", означает, что нужно подождать пока файл загрузится и можно будет его читать онлайн. Некоторые инструкции очень большие и время их появления зависит от вашей скорости интернета.

9
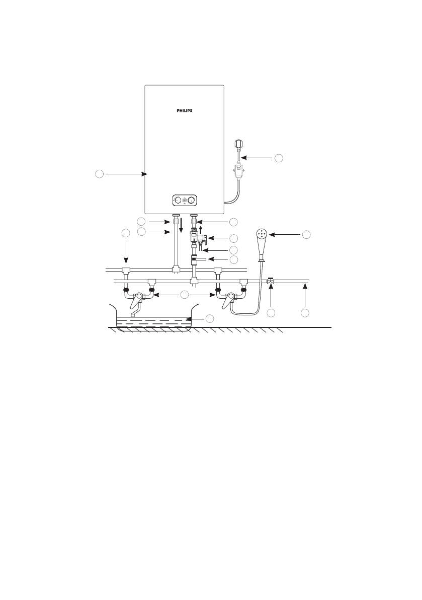
The installation method of the water heater for several consumption points is shown in
fig. 4.
fig
4
1 Power cord with plug and RCD
2 Mounted water heater
3 Combined safety valve
4. Cold water inlet tap*
5. Faucet*
6. Shower head*
7. Water main shut-off valve*
* Not included in the scope of deliver y
8 Drain tube
9 Water supply
10. Bath*
11. Tee*
12 Inlet pipe
13 Outlet pipe
14 Dielectric coupling Static CARE
Cold water
1
2
5
7
6
3
12
8
4
9
10
13
14
11
OptimalTEMP
Содержание
- 26 Используемые обозначения
- 27 Правила безопасности
- 29 Устройство прибора
- 30 Технические характеристики
- 31 Установка; Способы монтажа водонагревателя
- 33 Монтаж
- 34 Подключение к электрической сети
- 35 Эксплуатация
- 36 Установка температуры нагрева воды; Выключение
- 37 Обслуживание
- 40 Сертификация продукции; Товар соответствует требованиям:; ИНФОРМАЦИЯ О ПРОВЕДЕНИИ
- 42 ГАРАНТИЙНЫЕ ОБЯЗАТЕЛЬСТВА
Характеристики
Остались вопросы?Не нашли свой ответ в руководстве или возникли другие проблемы? Задайте свой вопрос в форме ниже с подробным описанием вашей ситуации, чтобы другие люди и специалисты смогли дать на него ответ. Если вы знаете как решить проблему другого человека, пожалуйста, подскажите ему :)













