Водонагреватели Neva 4511 сж газ - инструкция пользователя по применению, эксплуатации и установке на русском языке. Мы надеемся, она поможет вам решить возникшие у вас вопросы при эксплуатации техники.
Если остались вопросы, задайте их в комментариях после инструкции.
"Загружаем инструкцию", означает, что нужно подождать пока файл загрузится и можно будет его читать онлайн. Некоторые инструкции очень большие и время их появления зависит от вашей скорости интернета.

3.7.
Подключение
аппарата
к
дымоходу
3.7.1.
В
целях
удаления
всех
продуктов
сгорания
газа
и
для
обеспечения
безопасной
работы
аппарата
должны
быть
выполнены
следующие
требования
к
дымоходу
и
газоотводящей
трубе
,
соединяющей
аппарат
и
дымоход
:
-
дымоход
должен
быть
герметичным
и
стойким
к
тепловой
нагрузке
и
к
воздействию
продуктов
сгорания
.
Не
допускается
использование
вентиляционных
каналов
для
удаления
продуктов
сгорания
;
-
тяга
в
дымоходе
должна
быть
в
пределах
от
1,96
до
29,40
Па
(
см
.
таблицу
1);
-
материал
газоотводящей
трубы
должен
быть
коррозионостойким
,
негорючим
и
выдерживать
длительную
работу
при
температуре
до
200
°
С
.
Рекомендуемые
материалы
:
нержавеющая
,
оцинкованная
или
эмалированная
сталь
,
алюминий
,
медь
с
толщиной
стенки
не
менее
0,5
мм
;
-
газоотводящая
труба
должна
иметь
внутренний
диаметр
не
менее
110
мм
;
-
длина
вертикального
участка
газоотводящей
трубы
от
аппарата
должна
быть
не
менее
500
мм
;
-
длина
газоотводящей
трубы
от
вертикального
участка
до
дымохода
должна
быть
не
более
2
м
;
-
газоотводящая
труба
должна
иметь
уклон
не
менее
2
°
вверх
по
направлению
к
месту
стыковки
с
дымоходом
и
минимальное
количество
поворотов
(
не
более
трёх
);
-
газоотводящая
труба
и
её
соединение
с
аппаратом
должны
быть
герметичными
.
Соединение
трубы
с
аппаратом
рекомендуется
выполнять
в
соответствии
с
рисунком
7.
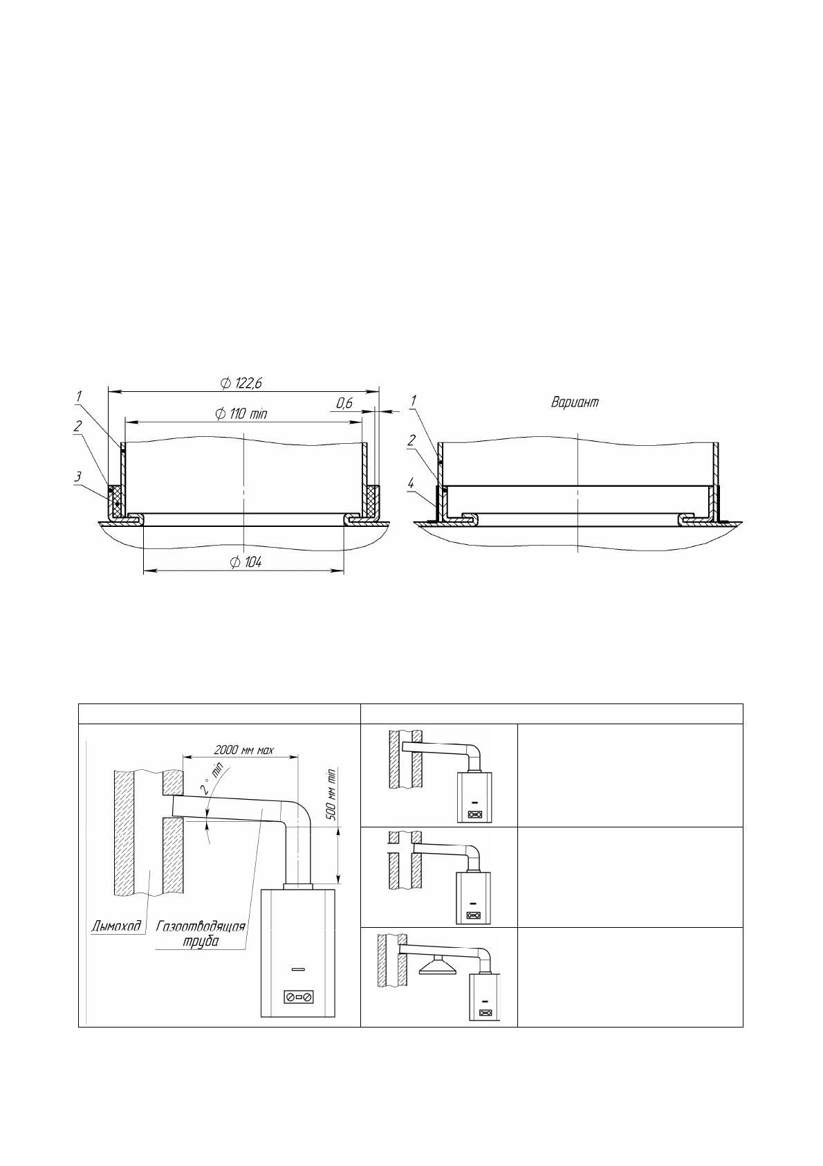
1 –
газоотводящая
труба
; 2 –
патрубок
газоотводящего
устройства
аппарата
; 3 –
уплотнитель
термостойкий
;
4 –
скотч
алюминиевый
термостойкий
.
Рисунок
7.
Схема
подсоединения
газоотводящей
трубы
3.7.2.
Вариант
подключения
аппарата
к
дымоходу
показан
на
рисунке
8.
Правильно
Неправильно
Конец
газоотводящей
трубы
слишком
близок
к
противоположной
стене
дымохода
.
В
дымоходе
на
уровне
подсоединения
газоотводящей
трубы
имеется
отверстие
(
в
том
числе
и
с
подключенным
к
нему
другим
устройством
).
Два
устройства
имеют
одно
подсоединение
к
дымоходу
Рисунок
8.
Подключение
аппарата
к
дымоходу
13