Водонагреватели Neoclima Varadero 100 33662 - инструкция пользователя по применению, эксплуатации и установке на русском языке. Мы надеемся, она поможет вам решить возникшие у вас вопросы при эксплуатации техники.
Если остались вопросы, задайте их в комментариях после инструкции.
"Загружаем инструкцию", означает, что нужно подождать пока файл загрузится и можно будет его читать онлайн. Некоторые инструкции очень большие и время их появления зависит от вашей скорости интернета.

www.timberk.com • электрический накопительный водонагреватель
5
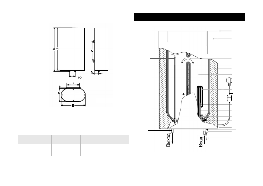
Размерные характеристики
Рис. 1
Размерные характеристики водонагревателя (в мм)
согласно рис. 1 приведены в таблице 2.
Таблица 2
Объем,
л
A
B
C
D
E
F
G
I
FSE1
50
935
958
500
230
434
20
65
210
80
1045 1065 450
270
514
20
85
210
5. ОПИСАНИЕ ВОДОНАГРЕВАТЕЛЯ
Рис. 2
3
4
5
6
16
17
7
8
9
10
11
12
13
14
1
2
1. Верхняя комбинированная защитная крышка
2. Внешний декоративный корпус
15
HEATING
POWER






