Hyundai SLS1 ., 50 л H-SLS1-50V-UI707 - Инструкция по эксплуатации - Страница 8

Водонагреватели Hyundai SLS1 ., 50 л H-SLS1-50V-UI707 - инструкция пользователя по применению, эксплуатации и установке на русском языке. Мы надеемся, она поможет вам решить возникшие у вас вопросы при эксплуатации техники.

Если остались вопросы, задайте их в комментариях после инструкции.

"Загружаем инструкцию", означает, что нужно подождать пока файл загрузится и можно будет его читать онлайн. Некоторые инструкции очень большие и время их появления зависит от вашей скорости интернета.
Страница:
/ 40
Загружаем инструкцию
background image

8

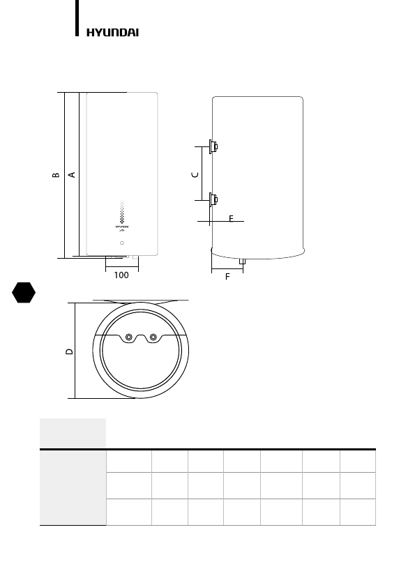
Электрический накопительный водонагреватель

RU

Габаритные и установочные размеры*

Объем, л

 A

B

C

D

E

F

H-SLS1

30

770

758

320

280

14

77,5

40

976

958

450

280

14

77,5

50

1176

1168

600

280

14

77,5

* Размеры указаны в мм, допускаются отклонения 1–5 мм

Полезные видео

Характеристики

Оцените статью
tehnopanorama.ru
Остались вопросы?

Не нашли свой ответ в руководстве или возникли другие проблемы? Задайте свой вопрос в форме ниже с подробным описанием вашей ситуации, чтобы другие люди и специалисты смогли дать на него ответ. Если вы знаете как решить проблему другого человека, пожалуйста, подскажите ему :)

Задать вопрос

Часто задаваемые вопросы
Как посмотреть инструкцию к Hyundai SLS1 ., 50 л H-SLS1-50V-UI707?
Необходимо подождать полной загрузки инструкции в сером окне на данной странице
Руководство на русском языке?
Все наши руководства представлены на русском языке или схематично, поэтому вы без труда сможете разобраться с вашей моделью
Как скопировать текст из PDF?
Чтобы скопировать текст со страницы инструкции воспользуйтесь вкладкой "HTML"