Hajdu ID 190 литров, 18.5 кВт ID 50 A - Инструкция по эксплуатации - Страница 39

Водонагреватели Hajdu ID 190 литров, 18.5 кВт ID 50 A - инструкция пользователя по применению, эксплуатации и установке на русском языке. Мы надеемся, она поможет вам решить возникшие у вас вопросы при эксплуатации техники.

Если остались вопросы, задайте их в комментариях после инструкции.

"Загружаем инструкцию", означает, что нужно подождать пока файл загрузится и можно будет его читать онлайн. Некоторые инструкции очень большие и время их появления зависит от вашей скорости интернета.
Страница:
/ 44
Загружаем инструкцию
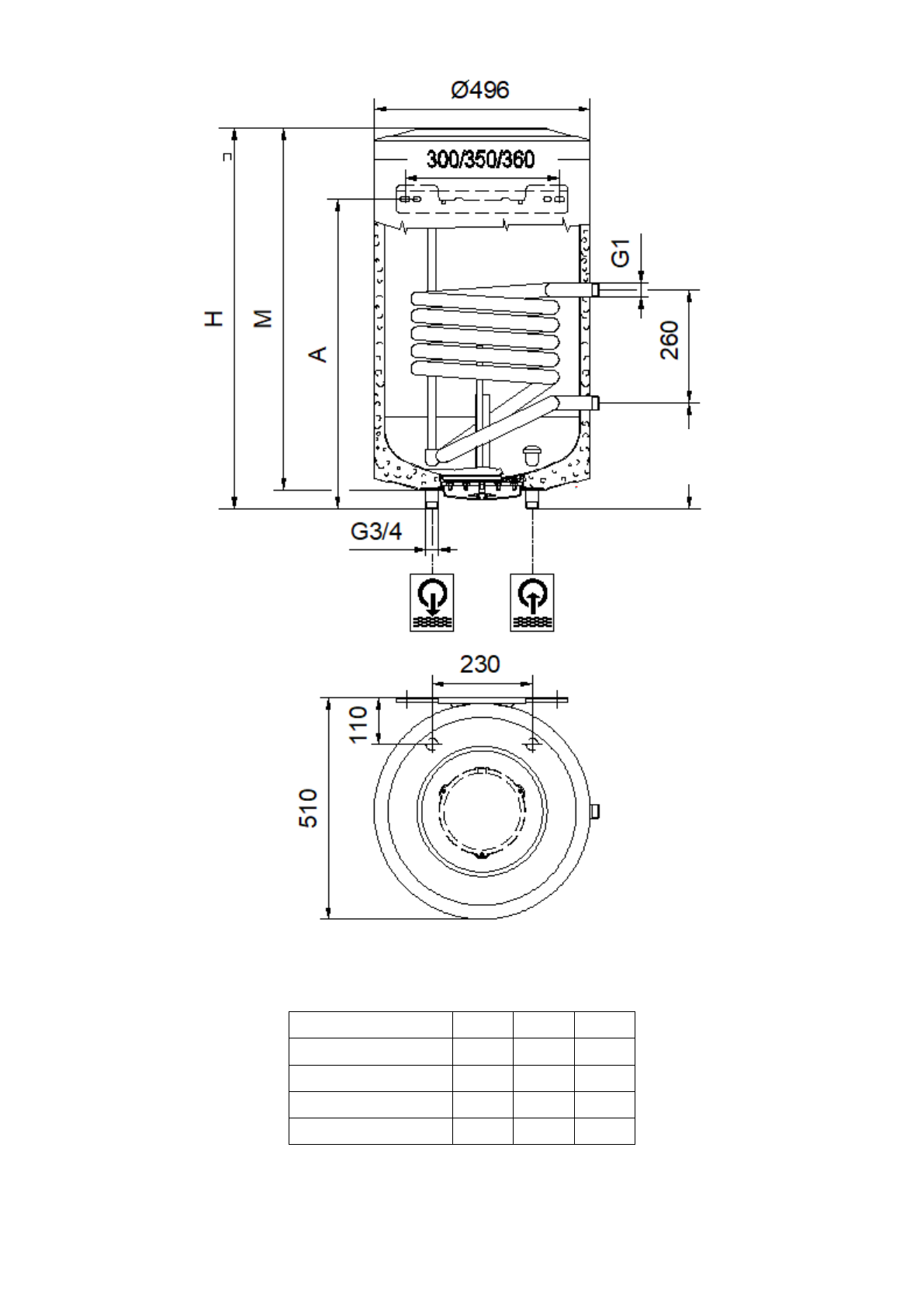
background image

 

39 

 

 

1.a ábra / Figure 1.a /

 

Pис.1.a 

 
 
 
 
 
 
 
 

HU/EN/RU

 

 

Típus/Type 

ID20A

 

691 

670 

481 

ID25A

 

851 

830 

551 

ID40A

 

1181  1160  1031 

ID50A

 

1391  1370  1031 

224

 

Полезные видео

Характеристики

Оцените статью
tehnopanorama.ru
Остались вопросы?

Не нашли свой ответ в руководстве или возникли другие проблемы? Задайте свой вопрос в форме ниже с подробным описанием вашей ситуации, чтобы другие люди и специалисты смогли дать на него ответ. Если вы знаете как решить проблему другого человека, пожалуйста, подскажите ему :)

Задать вопрос

Часто задаваемые вопросы
Как посмотреть инструкцию к Hajdu ID 190 литров, 18.5 кВт ID 50 A?
Необходимо подождать полной загрузки инструкции в сером окне на данной странице
Руководство на русском языке?
Все наши руководства представлены на русском языке или схематично, поэтому вы без труда сможете разобраться с вашей моделью
Как скопировать текст из PDF?
Чтобы скопировать текст со страницы инструкции воспользуйтесь вкладкой "HTML"