Водонагреватели HAJDU 200л, 32кВт AQ IND SC 200 2142414001 - инструкция пользователя по применению, эксплуатации и установке на русском языке. Мы надеемся, она поможет вам решить возникшие у вас вопросы при эксплуатации техники.
Если остались вопросы, задайте их в комментариях после инструкции.
"Загружаем инструкцию", означает, что нужно подождать пока файл загрузится и можно будет его читать онлайн. Некоторые инструкции очень большие и время их появления зависит от вашей скорости интернета.

6
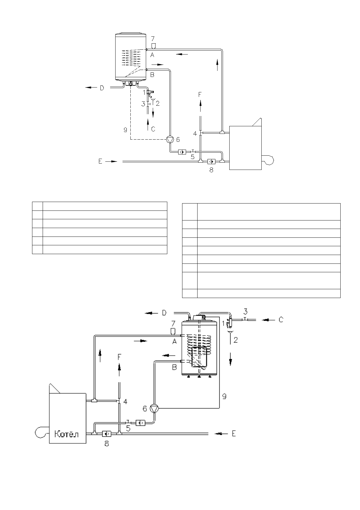
Схема № 1
Схема №
2
A
Вход первичной системы
B
Выход первичной системы
C
Вход холодной воды
D
Выход горячей воды
E
Трубопровод возврата отопления
F
Трубопровод отопления
1
Комбинированный предохранительный
клапан
2
Слив
3
Затворный клапан
4
Трехходовой клапан
5
Вентиль прямого действия
6
Циркуляционный насос
7
Автоматический клапан удаления воздуха
8
Клапан обратного хода
трубопровода
возврата
отопления
9
Место термостата насоса
котел
www.RoomKlimat.ru
(495) 646-888-0













